Handleiding
Je bekijkt pagina 56 van 80

~ 56 ~
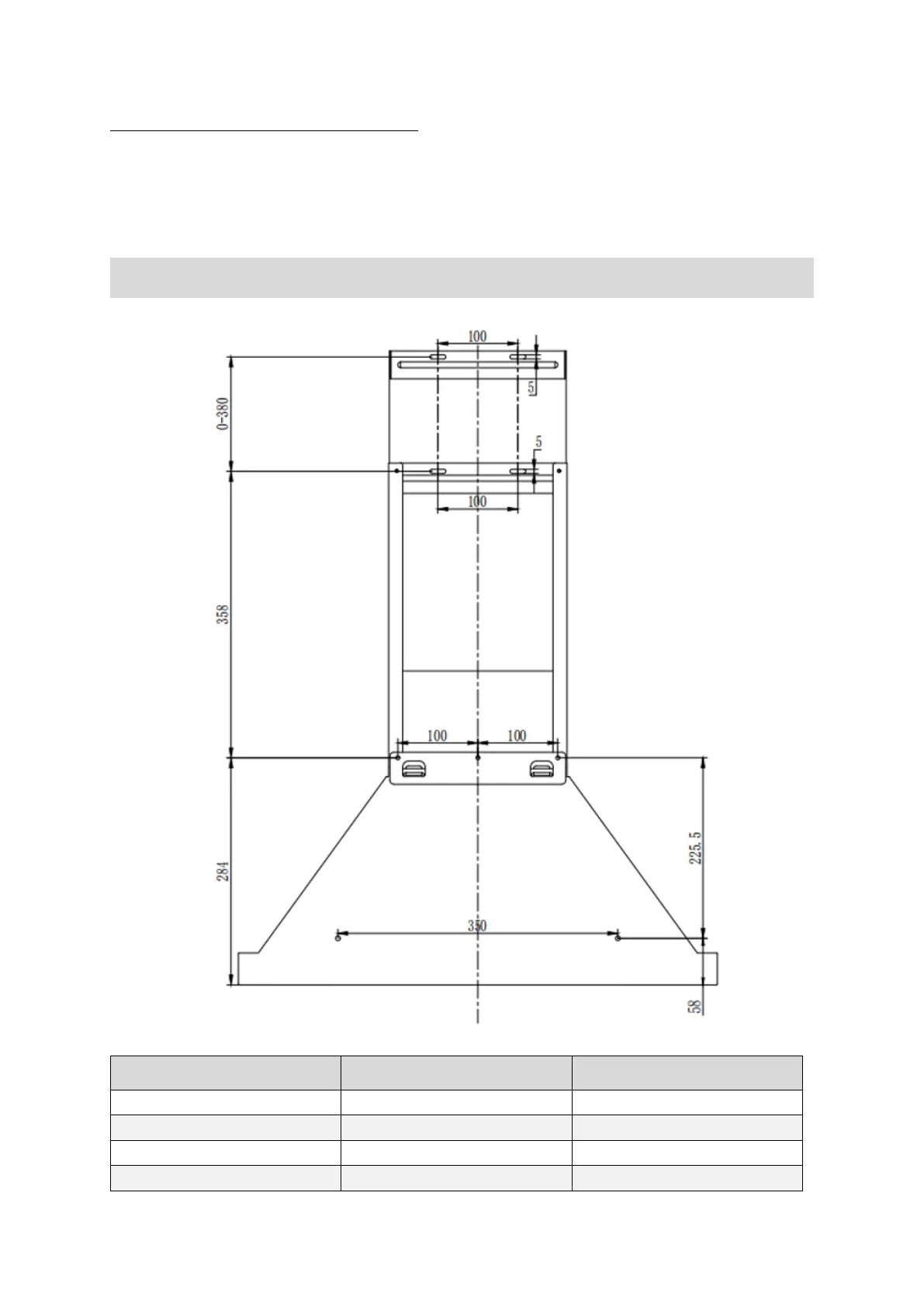
2.5.2 Installing the extractor hood
❖ The minimum distance between the extractor hood and an electric hob must be
at least 65.00 cm.
INSTALLATION DRAWING
OPTION
FIREPLACE
X
1
400+ 0 mm
/
2
400 + 300 mm
410 - 650 mm
3
400 + 390 mm
410 - 740 mm
4
500 + 490 mm
510 - 940 mm
Bekijk gratis de handleiding van PKM 6090BV, stel vragen en lees de antwoorden op veelvoorkomende problemen, of gebruik onze assistent om sneller informatie in de handleiding te vinden of uitleg te krijgen over specifieke functies.
Productinformatie
| Merk | PKM |
| Model | 6090BV |
| Categorie | Afzuigkap |
| Taal | Nederlands |
| Grootte | 12304 MB |







