Panasonic ET-PKD521B handleiding
Handleiding
Je bekijkt pagina 5 van 24

ENGLISH
- 5
<When using a lens other than the ET‑D3LEW200 Zoom lens, the ET‑D3LEU100
/ ET‑D75LE95 / ET‑D75LE90 Fixed‑focus lens, or ET‑D3LEF70 Fisheye lens>
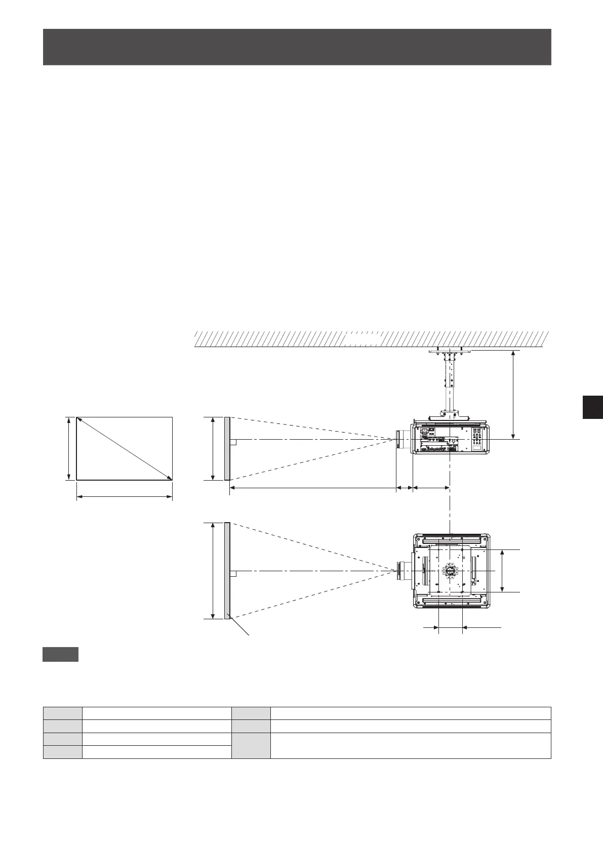
The dimensional relationship between the screen and the projector is shown below.
Establish the dimensions after assessing the area possible for installation.
The zoom function of the lens allows you to adjust the projection distance. Fine adjust while checking the
projected image.
When any of the following lens is attached, the dimensional relationship between the screen and the projector will
differ from that of other lens.
z
Zoom lens (model number: ET-D3LEW200)
z
Fixed-focus lens (model number: ET-D3LEU100 / ET-D75LE95 / ET-D75LE90)
z
Fisheye lens (model number: ET-D3LEF70)
For details, refer to the following.
“<When using the ET-D3LEU100 Fixed-focus lens / ET-D3LEW200 Zoom lens>” (
page 12)
“<When using the ET-D75LE95 / ET-D75LE90 Fixed-focus lens>” (
page 15)
“<When using the ET-D3LEF70 Fisheye lens>” (
page 18)
■ Dimensional reationship diagram
z
The illustration shows the ET-PKD520H ceiling mount bracket mounted on a projector.
SD
SW
SH
SW
SH
L (LW/LT)
H1
L5L1
(Units: mm ("))
Screen
314
(12-3/8")
175 (6-7/8")
Ceiling
Projected image
Note
z
This illustration assumes that the projector will be installed so that the projected image lls the screen and is
properly aligned with it.
z
This drawing is not in exact scale.
SH Image height L1 Lens protrusion dimension (from front of set to tip of lens)
SW Image width L5 From front center of the attachment plate to front of projector
SD Projected image size
H1
From lens center to attachment plate (includes the thickness of
the attachment plate)
L Projection distance
Standard installation dimensions
Bekijk gratis de handleiding van Panasonic ET-PKD521B, stel vragen en lees de antwoorden op veelvoorkomende problemen, of gebruik onze assistent om sneller informatie in de handleiding te vinden of uitleg te krijgen over specifieke functies.
Productinformatie
| Merk | Panasonic |
| Model | ET-PKD521B |
| Categorie | Niet gecategoriseerd |
| Taal | Nederlands |
| Grootte | 3315 MB |







