Nibe ERS S40-350 handleiding
Handleiding
Je bekijkt pagina 15 van 32

NOTE
All electrical connections must be carried out by
an authorised electrician.
Electrical installation and wiring must be carried
out in accordance with national provisions.
ERS S40 must not be powered during installation.
NOTE
If the supply cable is damaged, only NIBE, its ser-
vice representative or similar authorised person
may replace it to prevent any danger and damage.
• To prevent interference, sensor cables to external connec-
tions must not be laid close to high voltage cables.
• The minimum area of communication and sensor cables
to external connections must be 0.5 mm² up to 50 m, for
example EKKX, LiYY or equivalent.
For electrical wiring diagram, see page 27.
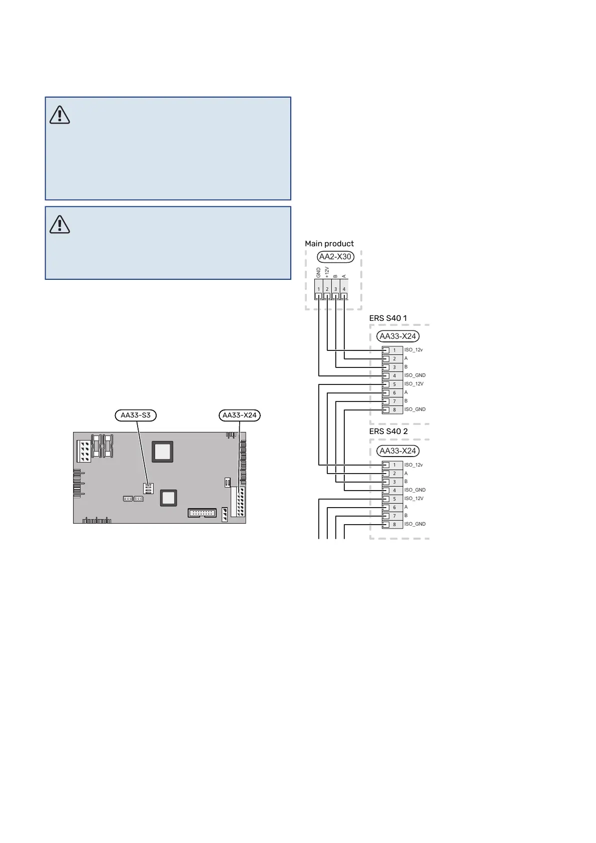
Overview, AJB board (AA33)
AA33-S3 AA33-X24
Supply
ERS S40 is connected to a earthed single-phase wall socket
or a permanent installation. For permanent installations,
ERS S40 must be preceded by a circuit breaker with at least
a 3 mm breaking gap.
Connecting to main product
CONNECTING TO THE HEAT PUMP
ERS S40 contains an accessory board (AA33) that connects
directly to the main product’s input board (terminal block
AA2-X30).
The communication cable (W119) is connected to the AJB
board (AA33) from the factory.
If several accessories are to be connected, or are already
installed, the boards are connected in series.
B
A
GND
+12V
AA2-X30
1 2 3 4
AA33-X24
AA33-X24
1
2
3
4
5
6
7
8
ISO_12v
A
B
B
ISO_GND
ISO_GND
ISO_12V
A
ISO_12v
A
B
B
ISO_GND
ISO_GND
ISO_12V
A
1
2
3
4
5
6
7
8
ERSS40 1
Main product
ERSS40 2
15Chapter 5 | Electrical connectionNIBE ERS S40-400
Electrical connection
Bekijk gratis de handleiding van Nibe ERS S40-350, stel vragen en lees de antwoorden op veelvoorkomende problemen, of gebruik onze assistent om sneller informatie in de handleiding te vinden of uitleg te krijgen over specifieke functies.
Productinformatie
| Merk | Nibe |
| Model | ERS S40-350 |
| Categorie | Niet gecategoriseerd |
| Taal | Nederlands |
| Grootte | 4070 MB |