Neff V68YYX4C1-AG handleiding

8 pagina's
PDF beschikbaar

Handleiding

Je bekijkt pagina 5 van 8
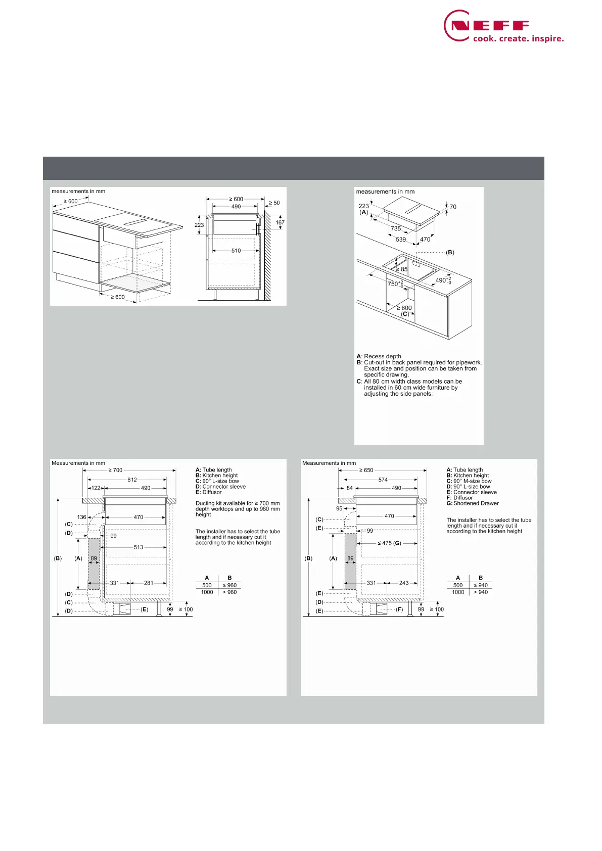
N 90, INductIoN cooktop, 80 cm, Flex desIgN
V68YYx4c0
N 90, INductIoN cooktop, 80 cm, Flex desIgN
V68YYx4c0
5 /

Bekijk gratis de handleiding van Neff V68YYX4C1-AG, stel vragen en lees de antwoorden op veelvoorkomende problemen, of gebruik onze assistent om sneller informatie in de handleiding te vinden of uitleg te krijgen over specifieke functies.

Productinformatie

MerkNeff
ModelV68YYX4C1-AG
CategorieFornuis
TaalNederlands
Grootte1417 MB