Middle Atlantic DWR-10-22PD handleiding
Handleiding
Je bekijkt pagina 8 van 12

Page 8
• Use hook and loop slots and/or cable ties
provided on top, bottom, and sides of center
section (B) for cable management. (FIGURE I)
• Use hook and loop slots and/or cable ties in
Z-bracket for cable management.
• Use hook and loop slots and/or cable ties in
bridge lances on backpan (A) for cable
management.
• Laser knockouts are located in the center of the
backpan for large electrical boxes. (FIGURE J)
• Knockouts provided in top/bottom of backpan for
electrical fittings, UHF/VHF antenna, and cable entry.
NOTE: Use a hammer to carefully clear any knockouts
you wish to use.
CABLE MANAGEMENT
NOTE:
• Optional grommets (Model No. GR-30) are available to protect wiring when using knockouts.
• The side of your backpan also includes knockouts for a variety of uses as shown. (FIGURE K)
• Use a hammer to carefully clear any knockouts you wish to use.
UCP knockouts accommodate Middle Atlantic Products UCP
modules, which provide interfaces for most input and output
control panel connections.
Some of our UCP modules (Model Number: UNIV4 and XLR)
provide the following control panel connections:
• UNIV4 fits Neutrik FP, MP, MDL and other connectors.
• XLR fits Neutrik MPL, LNEMP and other connectors.
For more information about UCP modules, refer to
www.legrandav.com or contact support at 1-800-266-7225.
Middle Atlantic User Control Panel (UCP) Modules
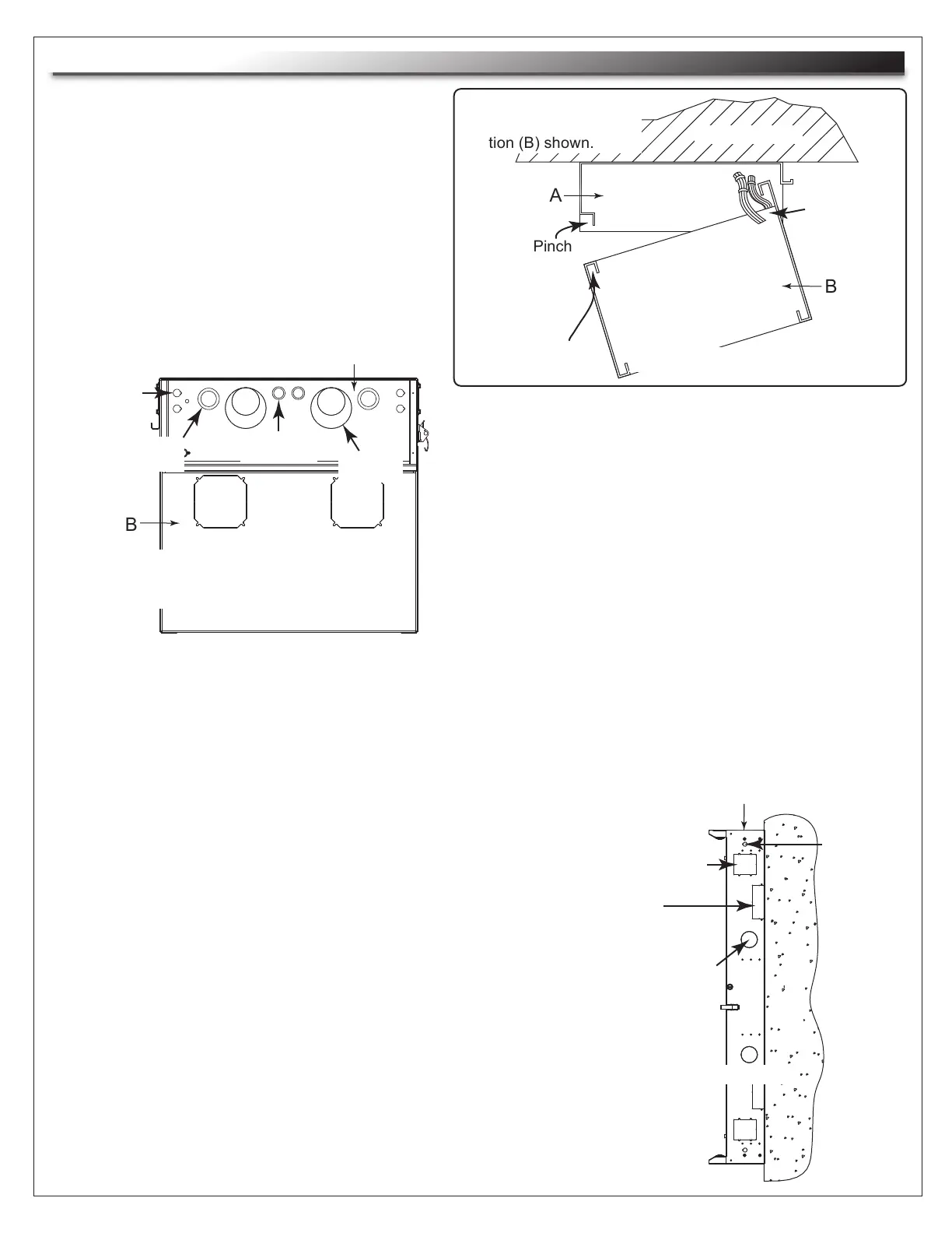
Dress wires
on pivot side
as shown.
Pinch
Point
Do not
dress wires
on this side.
FIGURE I
Mounting Wall
NOTE: Top view of
backpan (A) and center
section (B) shown.
FIGURE K
⅝” UHF/VHF
Antenna KO
User Control Panel
(UCP) KO
4” Cable Duct
(Accommodates Wiremold™ 4000 Series)
2” LKO
NOTE: 2” LKO
only on 21 RU
racks and up.
Mounting Wall
NOTE: Side view of backpan shown.
A
A
A
B
B
FIGURE J
NOTE: Top view of
backpan and center
section shown.
½” and ¾”
EKO
1” and 1½”
EKO
⅝” UHF/VHF
Antenna KO
2” and 3”
EKO
Bekijk gratis de handleiding van Middle Atlantic DWR-10-22PD, stel vragen en lees de antwoorden op veelvoorkomende problemen, of gebruik onze assistent om sneller informatie in de handleiding te vinden of uitleg te krijgen over specifieke functies.
Productinformatie
Merk | Middle Atlantic |
Model | DWR-10-22PD |
Categorie | Niet gecategoriseerd |
Taal | Nederlands |
Grootte | 1699 MB |