Middle Atlantic DWR-10-22PD handleiding
Handleiding
Je bekijkt pagina 7 van 12

Page 7
GROUNDING AND BONDING
Protective Earth Terminals (PET) are located in backpan of the wall rack. These terminals are marked with the symbol
Wall rack parts, center section and door, contain or are provided with bonding points for connection to the backpan / PET.
Protective earth and bonding connections shall be in accordance with Article 250 of the National Electric Code.
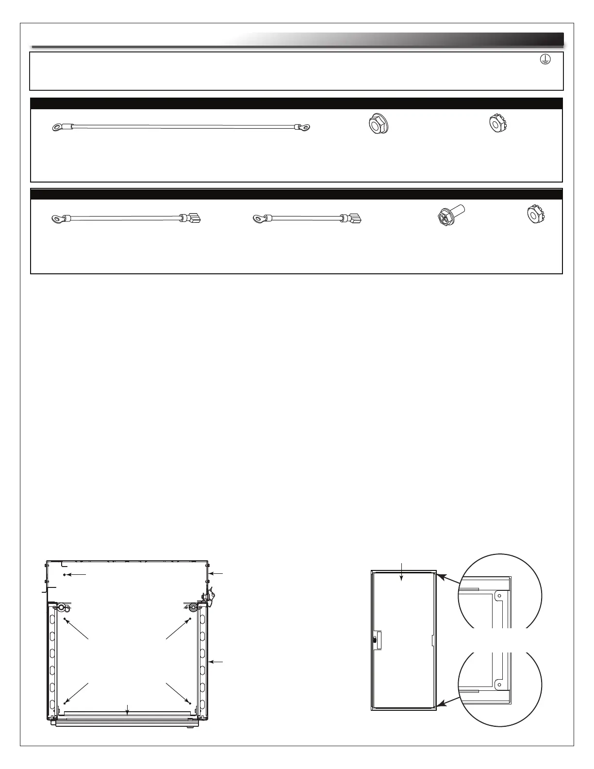
1/4-20
Flange
Nut
12 Gauge Backpan Bonding Wire
14” (356 mm) Length
(#10 to 1/4” ring terminals)
10-32
Locking
Nut
PROTECTIVE EARTH TERMINAL KIT (MODEL NO. PET-K-D/EWR, OPTIONAL)
PROTECTIVE EARTH TERMINAL KIT (MODEL NO. PET-K-D/EWRD, OPTIONAL)
M4 x 0.7
Thread Forming
Screw
10-32
Locking
Nut
12 Gauge Door Bonding Wire
4” (102 mm) Length
(#10 ring terminal to female disconnect)
12 Gauge Door Bonding Wire
6” (152 mm) Length
(#10 ring terminal to male disconnect)
1. Use 7/16” wrench and ¼”-20 flange nut to attach the larger ring terminal on the backpan bonding wire
to the protective earth terminal (PET) in your backpan (A). (FIGURE H)
2. Use 3/8” wrench and 10-32 nut to attach the other end of the backpan bonding wire to the nearest
10-32 center section (B) bonding stud.
NOTE:
• The main protective earth ground needs to be the first terminal placed on the PET and this
terminal needs to be secured on its own with a nut. The bonding wire for the center section can
be added to the PET after securing the nut for the main ground.
• Use the remaining steps to attach the optional door, if applicable.
3. Use #2 Phillips screwdriver and the M4 x 0.7 thread forming screw to attach the ring terminal end of a
door bonding wire to one of the door bonding point holes. (FIGURE H)
4. Use 3/8” wrench and 10-32 nut to attach the ring terminal end of the other door bonding wire to one of
the center section bonding studs.
5. Attach the disconnect ends of your door bonding wires together.
B
Center Section
10-32 Bonding Studs
(4 Upper and 4 Lower)
A
Door
FIGURE H
Door Bonding Point Holes
(1 Upper and 1 Lower)
Backpan PET Stud
NOTE: View of bottom
from inside of enclosure.
Door
NOTE:
Front
view of
enclosure.
Bekijk gratis de handleiding van Middle Atlantic DWR-10-22PD, stel vragen en lees de antwoorden op veelvoorkomende problemen, of gebruik onze assistent om sneller informatie in de handleiding te vinden of uitleg te krijgen over specifieke functies.
Productinformatie
| Merk | Middle Atlantic |
| Model | DWR-10-22PD |
| Categorie | Niet gecategoriseerd |
| Taal | Nederlands |
| Grootte | 1699 MB |







