Master-Bilt QS2 handleiding
Handleiding
Je bekijkt pagina 38 van 104

38
8/22 Rev. R 132617 ©2022 Refrigerated Solutions Group. All rights reserved.
WALK-IN MAINTENANCE
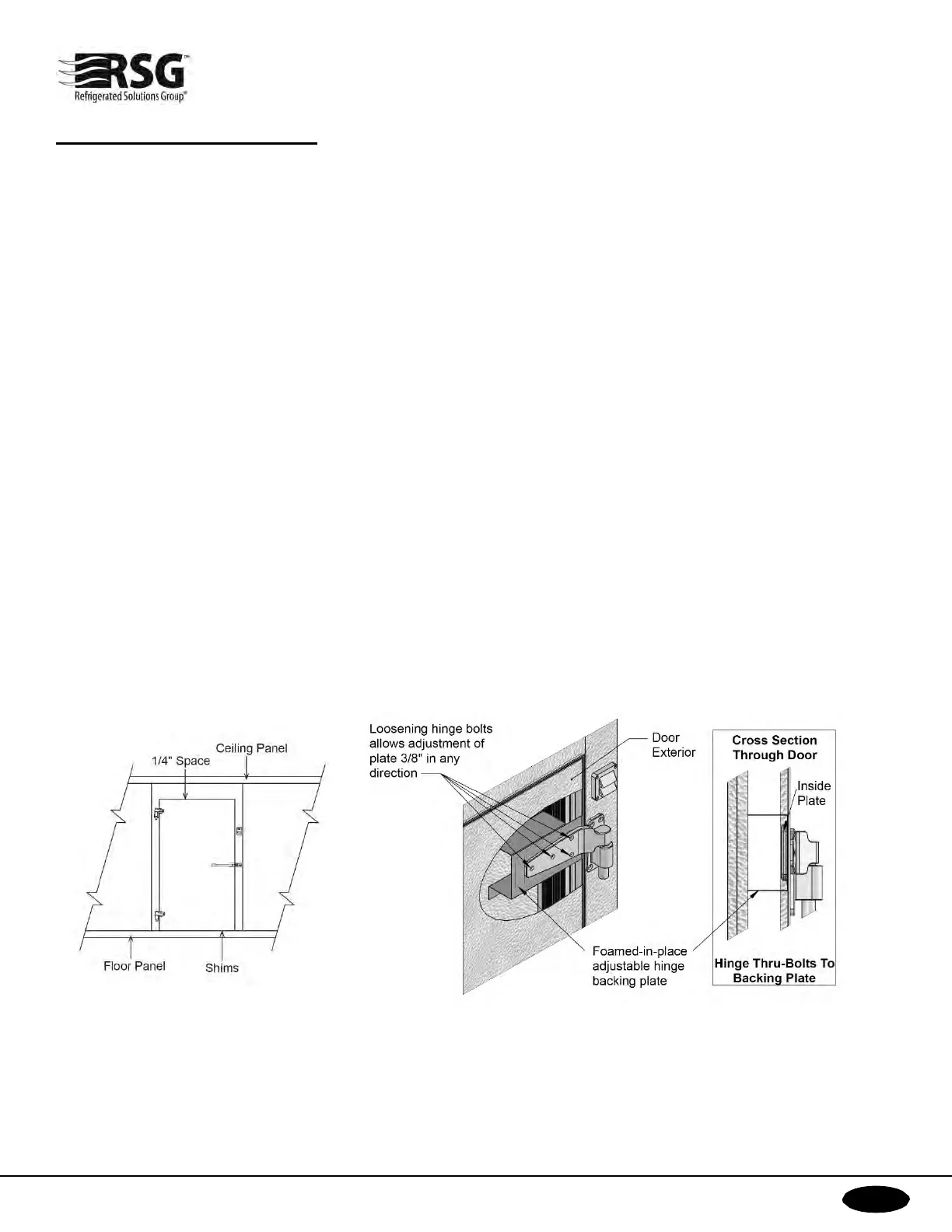
ADJUSTING DOOR HINGE ON NORLAKE WALK-INS
RSG 26”, 30”, & 36” wide walk-in doors are provided with an adjustable hinge. The adjustable hinge provides the
ability to square a door within the door jamb.
If a door requires adjustment:
Open the door and you will find a small chrome plug button, on the edge of the door behind the upper hinge. Before
any adjustment you must first slightly loosen the screws on the hinge strap on the door. Then pop off the chrome
plug button. Now you can access the adjustment screw. You should only make minor adjustments and then close
the door to view if the adjustment rectified the situation. When complete replace the chrome plug and re-tighten the
screws on the hinge strap.
NOTE: On doors with a kick plate you may have a center (3rd) hinge. In this case there is a 2nd adjustable hinge.
You will need to loosen the screws on both the top and center hinge(s) and make minor adjustments in both areas.
ADJUS
TING DOOR HINGE ON MASTER-BILT WALK-INS
• Place shims under door (see figure 1 below).
• If adjusting the door, loosen but do not remove the screws that attach the hinge blade to the door (see
figure 2 below for location of screws).
• If replacing hinges, remove the hinge blade screws.
• Shim under door as necessary to provide a 1/4" space between top of door and the door frame to ensure
square fit (see figure 1).
• Tighten or reinstall screws attaching the hinge blade to the door.
• After adjusting or replacing the hinges, remove shims and check the space at the top of the door periodically
for proper alignment.
Figure 1
Figure 2
Bekijk gratis de handleiding van Master-Bilt QS2, stel vragen en lees de antwoorden op veelvoorkomende problemen, of gebruik onze assistent om sneller informatie in de handleiding te vinden of uitleg te krijgen over specifieke functies.
Productinformatie
| Merk | Master-Bilt |
| Model | QS2 |
| Categorie | Koelkast |
| Taal | Nederlands |
| Grootte | 40845 MB |