Lutron Caseta DVRF-6L-WH handleiding
Handleiding
Je bekijkt pagina 28 van 30

®
SPECIFICATION SUBMITTAL Page
Job Name:
Job Number:
Model Numbers:
Caséta by Lutron Load Controls
369987l 28 2.24.23
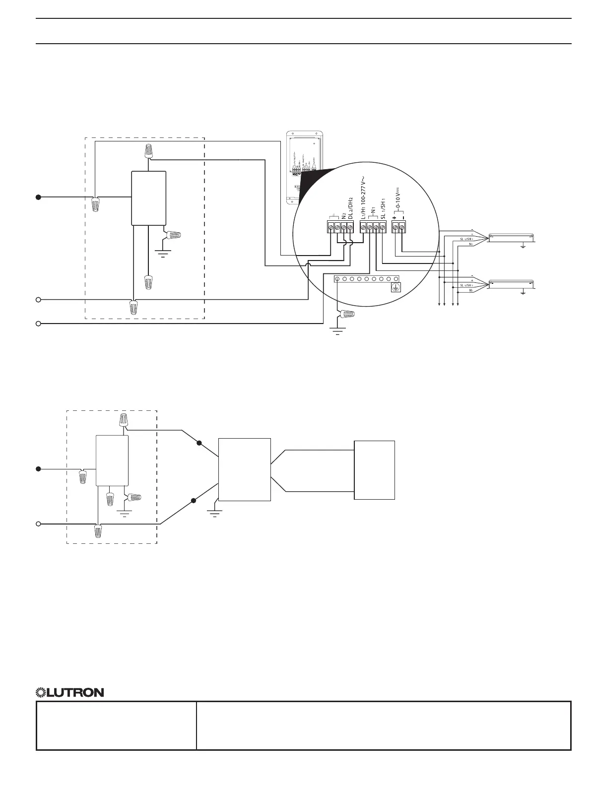
Wiring Diagrams - Dimmers (continued)
Option 3: Hi-lume 1% 2-wire LED Drivers
L
2
/H
2
100-277 V~
Dimmer
Line / Hot
120 V~
60 Hz
Neutral
Neutral 2
Black
White
Blue
2
Ground
Green
Red
Ground
GR X-T VI
PD-10NXD or PD-5NE
PD-10NXD or PD-5NE
1
See Lutron P/N 369247 for additional wiring diagrams.
2
Blue wire is only present on the PD-10NXD model.
Dimmer
Line / Hot
Neutral
Black
White
White
Black
Black with
White Stripes
Green
Red
Red
Ground
Hi-lume 1%
2-wire LED
Driver
LED Light
Engine
Note: For more information on Hi-lume 1% 2-wire LED drivers, see www.lutron.com
Location 1
Blue
2
Installation With Power Interfaces and LED Drivers - Neutral Required (continued)
Option 2: GRX-TVI
1
28
Bekijk gratis de handleiding van Lutron Caseta DVRF-6L-WH, stel vragen en lees de antwoorden op veelvoorkomende problemen, of gebruik onze assistent om sneller informatie in de handleiding te vinden of uitleg te krijgen over specifieke functies.
Productinformatie
| Merk | Lutron |
| Model | Caseta DVRF-6L-WH |
| Categorie | Niet gecategoriseerd |
| Taal | Nederlands |
| Grootte | 3733 MB |

