Handleiding
Je bekijkt pagina 62 van 72

Section 2 Installation
Numéro de Pièce: LIN_EOGO_IOM_24APERION_4605890FR – Rev 1 – 01/24 11
PP
PP
PP
PP
PP
PP
PP
PP
PP
PP
PP
PP
PP
PP
PP
PP
PP
PP
PP
PP
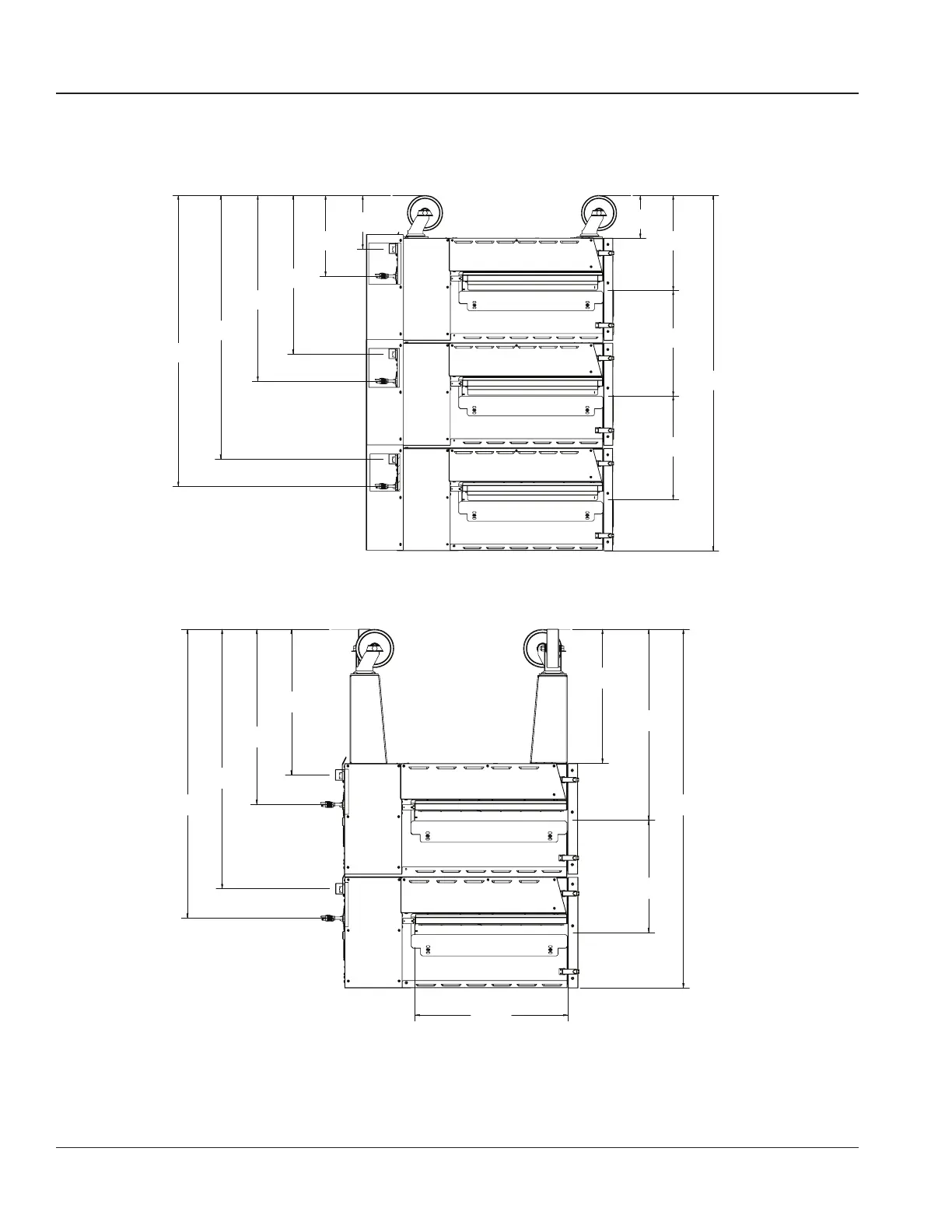
VUE LATÉRALE D’UN EMPILAGE DE DEUX FOURS À GAZ 2424
VUE LATÉRALE D’UN EMPILAGE DE TROIS FOURS À GAZ 2424
Emplacements des raccords de gaz de l’appareil
REMARQUE : TOUTES LES VUES LATÉRALES SONT APPLICABLES AUX FOURS ÉLECTRIQUES ET AUX FOURS À GAZ (À L’EXCEPTION
DES DIMENSIONS DES EMPLACEMENTS DE RACCORD DE GAZ).
Bekijk gratis de handleiding van Lincoln Aperion 2424, stel vragen en lees de antwoorden op veelvoorkomende problemen, of gebruik onze assistent om sneller informatie in de handleiding te vinden of uitleg te krijgen over specifieke functies.
Productinformatie
| Merk | Lincoln |
| Model | Aperion 2424 |
| Categorie | Oven |
| Taal | Nederlands |
| Grootte | 23734 MB |
