Legrand Ensto Pro EVF200 handleiding
Handleiding
Je bekijkt pagina 25 van 40

RAK112B_ENG / 2023-06-27
25 / 40
9. Commissioning
Before commissioning the charging station must be installed according to the installation instructions.
By default all charging stations are operating in free charging mode (standalone operation). In this free
charging mode external communication (Ethernet, 4G, LAN or WiFi) is not active. If you connect the charg-
ing station to some back-oce (online mode), rst make sure that the basic function ality is working be-
fore establishing communication.
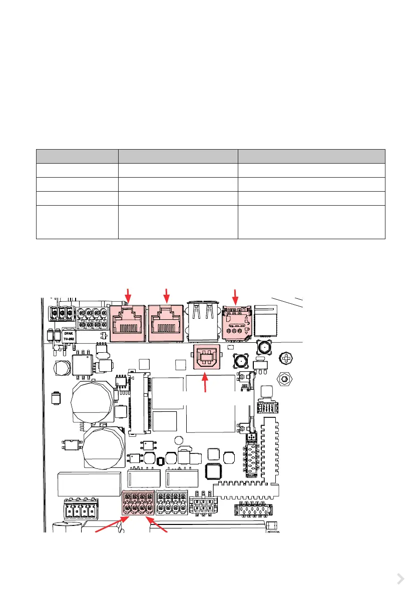
9.1. View of the component layout on the control unit
Component Connection Note
USB B Service port Computer to the charging station Connect to the right side
Ethernet 1 / 2 Ethernet communication cable Connect input to the left side
Micro SIM card holder Connection to mobile network The holder is on the left side
Optocoupler input
(+ / - 12V)
Control of charging event via
external device / input
External input operation must be cong-
ured on charging station settings. Please
ask your Ensto representative for details.
USB B service port
Micro SIM card holder
Ethernet 1Ethernet 2
Opto1- / Opto1+
Optocoupler input 12V
Opto2- / Opto2+
Optocoupler input 12V
Control unit on the left side
Do not remove any pre-
installed USB devices from
the controller units!
Bekijk gratis de handleiding van Legrand Ensto Pro EVF200, stel vragen en lees de antwoorden op veelvoorkomende problemen, of gebruik onze assistent om sneller informatie in de handleiding te vinden of uitleg te krijgen over specifieke functies.
Productinformatie
| Merk | Legrand |
| Model | Ensto Pro EVF200 |
| Categorie | Niet gecategoriseerd |
| Taal | Nederlands |
| Grootte | 4463 MB |

