Juki MF-3580 handleiding
Handleiding
Je bekijkt pagina 125 van 440

− 53 −
^
.
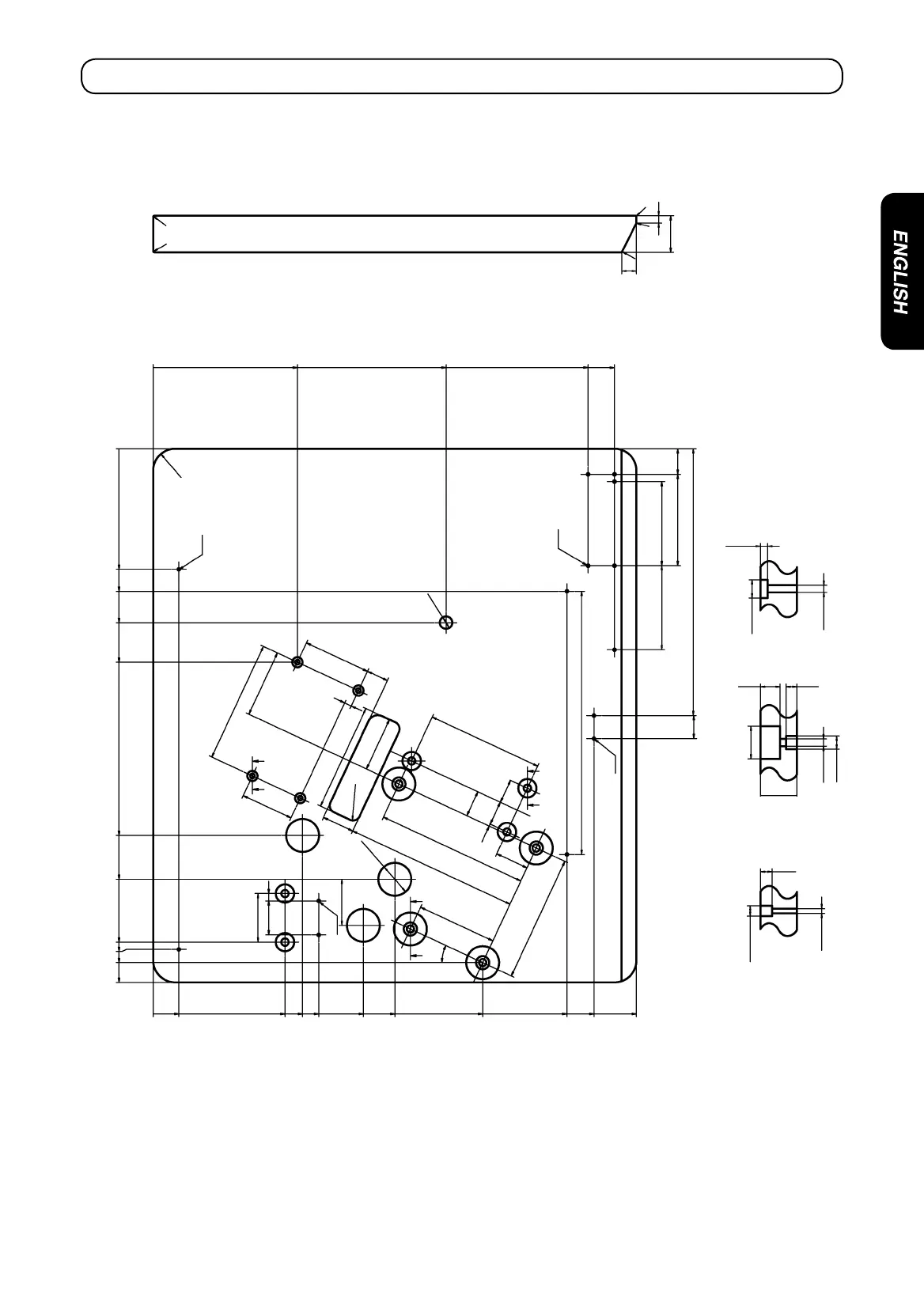
DRAWING OF THE TABLE
JUKI Part No. : 40107535 (separately available)
C
D
B
5×ø25
Y - Y X - XZ - Z
4×ø45
5×ø10
4×ø10
4×ø18
5×10
4×274×15
4×16
4×ø6.5
4×ø14
A
115 115
125 35
36531.5
165
195
238
(292)
529
589
675
685
703
730
(197)
400
594
630
R2
R2
R2
20
R2
R2
ø17
4×R30
35
180
204
226
287
330
450
565
602
660
63
46.5 10
360
YY
XX
ZZ
66.5
167
92.5
72
10
147
92
30
74.5
44
36
33
(3)
33
237
207
159
109
25°
173
45.5
3×ø45
4×R10
A
4×ø3.4 on the bottom surface depth 20
(For table stand)
B
2×ø3.4 on the bottom surface depth 10
(For pedal switch)
C
2×ø3.4 on the bottom surface depth 10
(For CP-18)
D
6×ø3.4 on the bottom surface depth 10
(For power switch)
10
50
Bekijk gratis de handleiding van Juki MF-3580, stel vragen en lees de antwoorden op veelvoorkomende problemen, of gebruik onze assistent om sneller informatie in de handleiding te vinden of uitleg te krijgen over specifieke functies.
Productinformatie
| Merk | Juki |
| Model | MF-3580 |
| Categorie | Naaimachine |
| Taal | Nederlands |
| Grootte | 79694 MB |







