Jackson DynaStar handleiding
Handleiding
Je bekijkt pagina 12 van 86

07610-004-66-53-F
5
DynaStar
False Panel Option
05700-004-67-60
False Panel/Corner
Installation Instructions
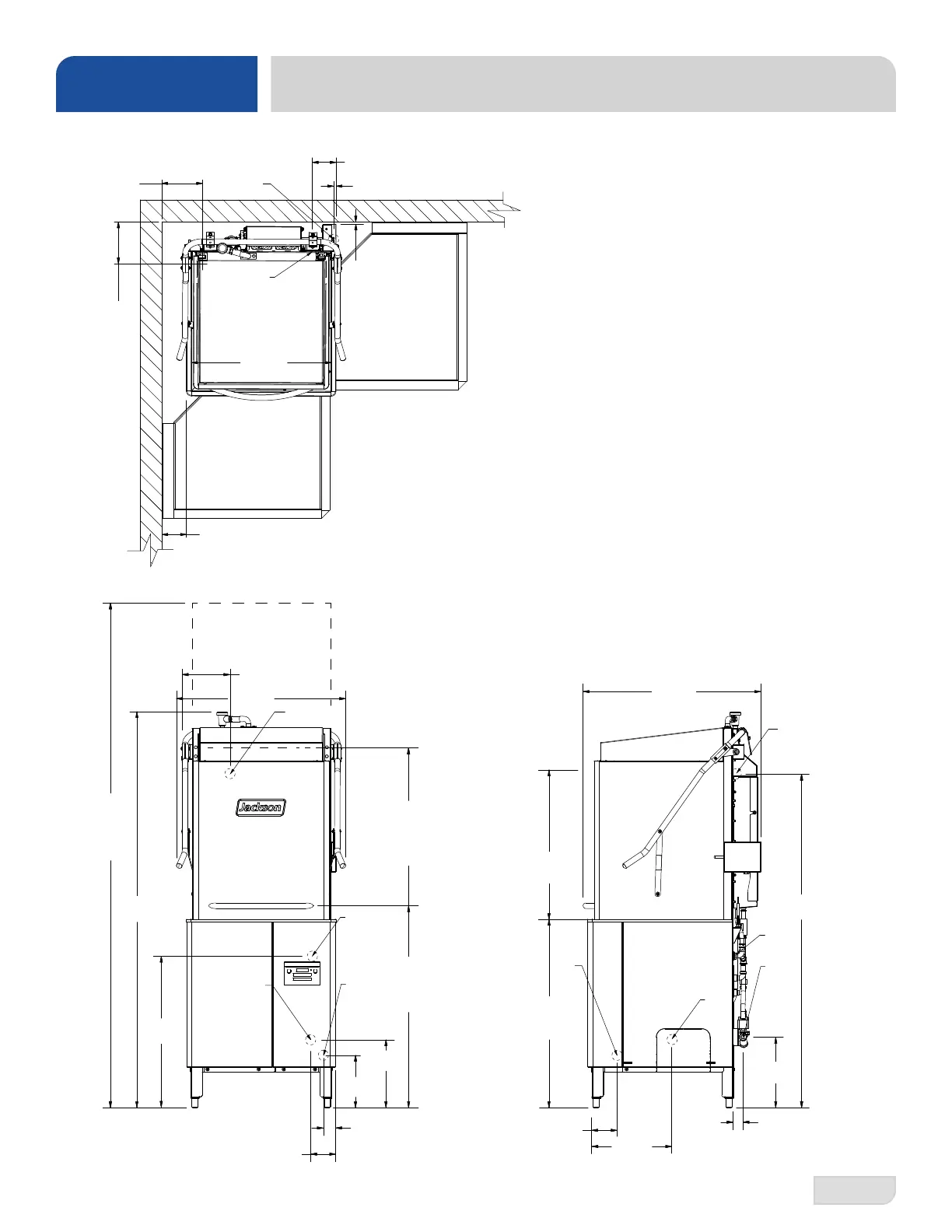
SPECIFICATIONS
HH-E VER DIMENSIONS
A
C
B
E
E
8 11/16
[221 mm]
30 1/2
[775 mm]
91 1/4
[2318 mm]
HEIGHT
WITH
DOOR
RAISED
65
[1651 mm]
DOOR
HANDLE
HEIGHT
RAISED
36 1/2
[927 mm]
DOOR
HANDLE
HEIGHT
71 1/2
[1816 mm]
4 1/2
[114 mm]
2 1/4
[57 mm]
9 1/2
[241 mm]
12 1/4
[311 mm]
4 1/4
[108 mm]
MIN
25 1/4
[641 mm]
8 5/16
[211 mm]
DISTANCE
FROM WALL
TO REAR
RACK RAIL
8 5/16
[211 mm]
DISTANCE
FROM WALL
TO LEFT
RACK RAIL
D
27 3/8
[696 mm]
12 3/4
[324 mm]
1 7/8
[46 mm]
60 1/2
[1537 mm]
32 1/8
[816 mm]
34 1/4
[871 mm]
TABLE
HEIGHT
27
[686 mm]
CLEARANCE
4 1/2
[114 mm]
C
A
D
14 1/2
[368 mm]
D
7/16”
[11 mm]
MIN
4 3/16
[106 mm]
1/2
[13 mm]
B
LEGEND
A - Drain Connection (1 1/2” NPT)
B - Water Inlet (1/2” male NPT)
(Connect to true 1/2" ID line or larger)
C - Electrical Connection
D - Detergent Connection
E - Rinse-aid Connection
All dimensions from floor can be
increased 1 1/8” using the machine’s
adjustable feet.
Dish tables are stationary, so the
machine must be moved until rack rails
line-up properly. As a result, distances
from wall to rack rails might vary.
HH-E
False Panel Option
06401-004-89-11
False Panel/Corner
Installation Instructions
Bekijk gratis de handleiding van Jackson DynaStar, stel vragen en lees de antwoorden op veelvoorkomende problemen, of gebruik onze assistent om sneller informatie in de handleiding te vinden of uitleg te krijgen over specifieke functies.
Productinformatie
| Merk | Jackson |
| Model | DynaStar |
| Categorie | Vaatwasser |
| Taal | Nederlands |
| Grootte | 12043 MB |







