Intergas Xtend Split handleiding
Handleiding
Je bekijkt pagina 26 van 88

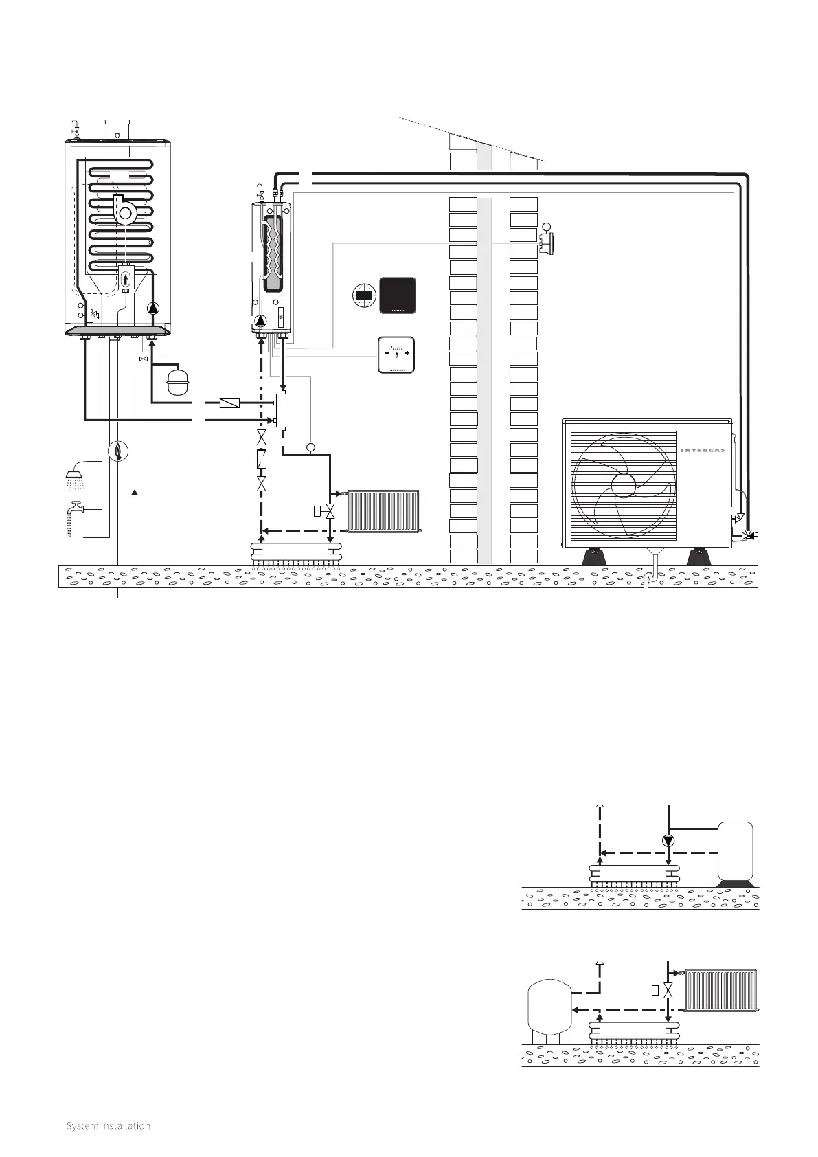
Outdoor unit
Pm03
07
08 09
V10
V11
T
TT
T
T
T
10
HE03
T
TT
TT
TT
TT
V02
(required)
04
03
01
V04
TT
05
02
43
V03
(required)
Pm01
V01
V08
P
P01
Indoor
Outdoor
Gateway
DHW side
Condensation drain
Indoor unit
Boiler
Pm02
HE02
Thermostat
*
(optional)
*
V09
HE01
F01
T
42
(optional)
Underfloor heating option
WWW
L01
L04
L02
L05
L06
LLH01
*
*
+
+
V07
(optional)
V07
(optional)
L03
V05
3 bar
V06
Combined condensate
& PRV discharge
Mains cold
water supply
M V
CH circuit
1. Components marked with an (*) are oered as optional accessories; see §3.2.
2. Components marked with an (+) are mandatory items which can be found in accessories; see §3.2.
26
SYSTEM INSTALLATION
8.1 Installation overview
Buitenunit
Pm03
07
08 09
V10
V11
T
TT
T
T
T
10
HE03
T
TT
TT
TT
TT
V02
04
03
01
V04
TT
05
02
43
V07
V07
V03
Pm01
V01
V08
P
P01
Binnen
Buiten
Gateway
Tapwaterzijde
Condensafvoer
Binnennunit
CV-ketel
Pm02
HE02
Thermostaat
*
*
V09
HE01
F01
T
42
Heat emitters
*
*
WWW
L01
L03
L04
L02
L05
L06
LLH01
Buer vessel
*
Pm03
*
Buer tank (install parallel)
When using a buer tank:
► Has a minimum capacity of 40 litres.
► Install a CH-pump aer the separation from the buer
tank, see option A. (Connect the wiring to connector X13
(contacts 4 and 5) on the indoor unit and set parameter
P068 to "10". Also see §8.8.10
Intermediate vessel (install in series)
It is advisable to install an insulated intermediate vessel with a
minimum volume of 20 litres, see option B.
Buitenunit
Pm03
07
08 09
V10
V11
T
TT
T
T
T
10
HE03
T
TT
TT
TT
TT
V02
04
03
01
V04
TT
05
02
43
V07
V07
V03
Pm01
V01
V08
P
P01
Binnen
Buiten
Gateway
Tapwaterzijde
Condensafvoer
Binnennunit
CV-ketel
Pm02
HE02
Thermostaat
*
*
V09
HE01
F01
T
42
Underfloor heating option
*
*
WWW
L01
L03
L04
L02
L05
L06
LLH01
Intermediate vessel
*
M V
CH circuit
The system must have a minimum volume of heating water.
The standard flow is 15 l/min. It is advisable to install a central
heating buer tank to comply with the minimum flow, to prevent
the outdoor unit from switching on and o too oen and to ensure
that there is suicient energy to complete the defrost cycle of the
outdoor unit when required.
Below are two possible installation options:
Option A
Option B
Remote expansion
vessel option
Bekijk gratis de handleiding van Intergas Xtend Split, stel vragen en lees de antwoorden op veelvoorkomende problemen, of gebruik onze assistent om sneller informatie in de handleiding te vinden of uitleg te krijgen over specifieke functies.
Productinformatie
| Merk | Intergas |
| Model | Xtend Split |
| Categorie | Niet gecategoriseerd |
| Taal | Nederlands |
| Grootte | 11570 MB |




