Handleiding
Je bekijkt pagina 46 van 140

3/
8
"
T
O
E
DG
E
T
r
i
m
t
h
e
r
e
a
r
w
a
ll
te
mpl
at
e al
o
n
g t
h
e
do
tte
d
l
in
e
.
Trim
t
h
e
r
e
a
r
wa
l
l
temp
l
a
te
al
o
n
g
t
h
e
do
t
ted
lin
e.
1
2
"
4
"
Darl
e
v
u
e
l
ta
a
l
a
h
o
j
a
p
a
r
a c
o
ns
u
l
ta
r la
v
e
r
s
i
ón
e
n E
s
p
a
ñ
o
l.
3
/8
"
TO
E
D
GE
Tr
im
th
e
r
e
ar wall
te
m
plate
a
l
ong
the dotted lin
e.
1
2
"
4
"
46
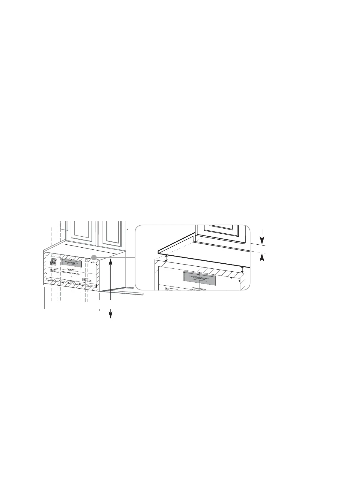
1 For flat cabinet bottoms and framed recess cabinet bottoms, tape the rear wall
template onto the wall matching the centerline and touching the cabinet bottom and
framed bottom.
ENGLISH
1/4 in. min.
(6.35 mm)
clearance
1 For a recessed cabinet bottom with a front overhang, draw a horizontal line on the
wall the same distance from the cabinet bottom as the bottom of the overhang.
ENGLISH
30 in. (76.2 cm) to cook top
Satuation 4: Plate position - beneath a recessed cabinet bottom with a front
overhang
1 Pour les fonds de caisson plats et les fonds de caisson à cadre, posez un ruban
adhésif sur le mur arrièresur le mur en suivant l’axe central et en touchant le fond de
l’armoire et le fond du cadre.
FRANÇAIS
Dégagement
6,35mm
min. (1/4po)
1 Dans le cas d’un fond de meuble encastré avec un dépassement avant, tracez une
ligne horizontale sur le mur à la même distance du fond du meuble que le bas du
dépassement.
FRANÇAIS
76,2cm (30po) à la table de cuisson
Situation4: Position de la plaque - sous un fond d’armoire encastré avec un
débord frontal
1 Para fondos de gabinetes planos y fondos de armario empotrados y enmarcado,
pegue la plantilla en la pared traserahaciendo coincidir la línea central y tocando la
parte inferior del gabinete y la parte inferior enmarcada.
ESPAÑOL
Espacio libre
mínimo de
1/4 pulg.
(6.35 mm)
1 Para un gabinete empotrado con voladizo frontal, dibuje una línea horizontal en la
pared a la misma distancia desde el fondo del gabinete que la parte inferior del
voladizo.
ESPAÑOL
A 30 pulg. (76.2 cm) de la superficie de cocción
Situación 4: Posición de la placa: debajo de la parte inferior de un gabinete
empotrado con voladizo frontal
Bekijk gratis de handleiding van IKEA LAGAN 505.876.25, stel vragen en lees de antwoorden op veelvoorkomende problemen, of gebruik onze assistent om sneller informatie in de handleiding te vinden of uitleg te krijgen over specifieke functies.
Productinformatie
| Merk | IKEA |
| Model | LAGAN 505.876.25 |
| Categorie | Magnetron |
| Taal | Nederlands |
| Grootte | 14339 MB |





