Huawei SUN2000-25KTL-M5 handleiding
Handleiding
Je bekijkt pagina 32 van 97

5.2 Preparing Cables
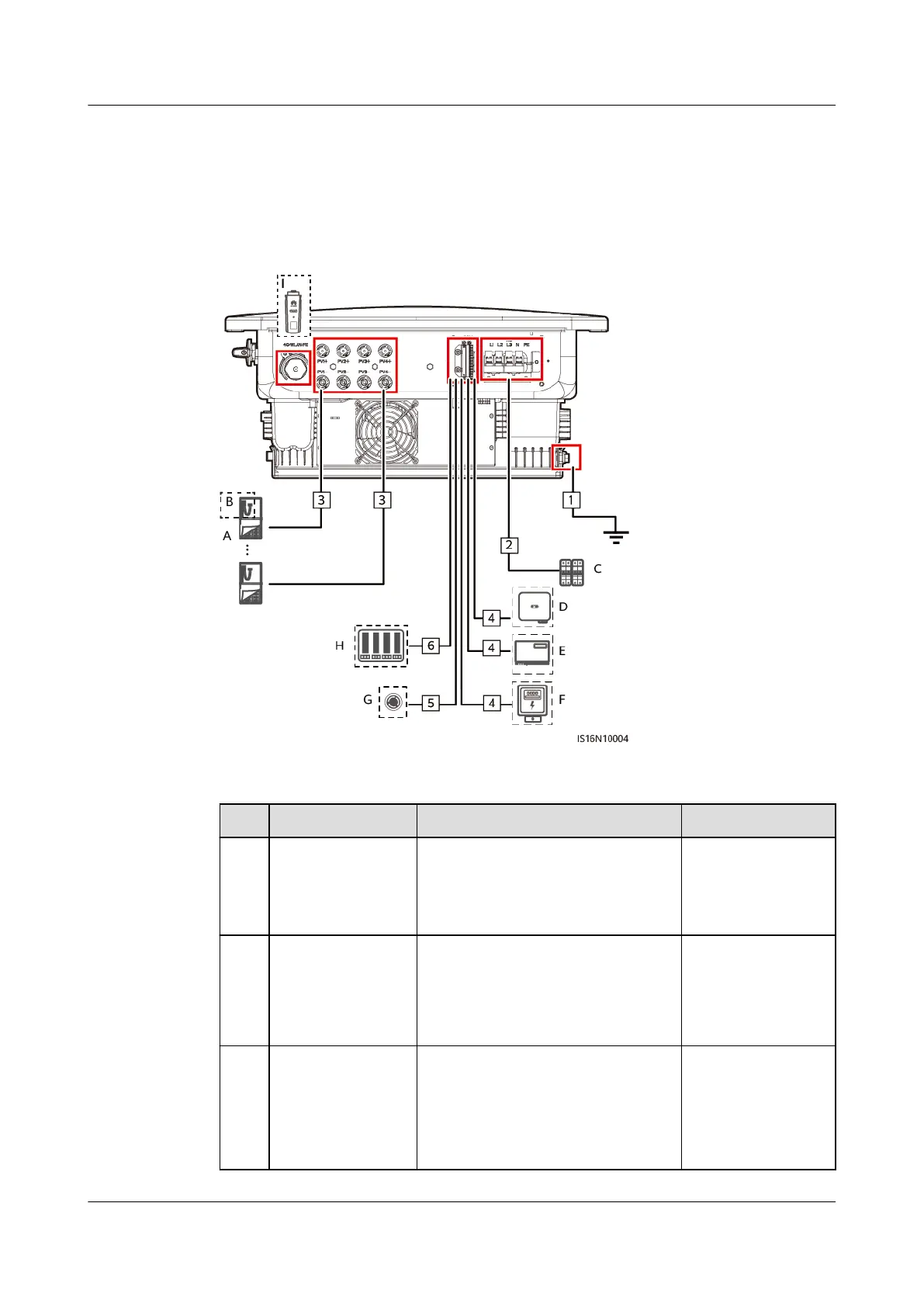
Figure 5-1 SUN2000 cable connections (Components in the dashed boxes are
optional.)
Table 5-1 Component description
No.
Component Description Source
A PV module ● A PV string consists of PV
modules connected in series.
● The inverter supports the
input from four PV strings.
Prepared by the
customer
B Smart PV
optimizer
Supported optimizer models:
● SUN2000-600W-P
● SUN2000-450W-P
● SUN2000-450W-P2
Purchased from
the Company
C AC switch Recommended: three-phase AC
circuit breaker, rated voltage ≥
415 V AC, rated current:
● 12KTL–20KTL: 40 A
● 25KTL: 50 A or 63 A
Prepared by the
customer
SUN2000-(12KTL-25KTL)-M5 Series
User Manual 5 Electrical Connections
Issue 01 (2022-06-15) Copyright © Huawei Digital Power Technologies Co., Ltd. 26
Bekijk gratis de handleiding van Huawei SUN2000-25KTL-M5, stel vragen en lees de antwoorden op veelvoorkomende problemen, of gebruik onze assistent om sneller informatie in de handleiding te vinden of uitleg te krijgen over specifieke functies.
Productinformatie
| Merk | Huawei |
| Model | SUN2000-25KTL-M5 |
| Categorie | Niet gecategoriseerd |
| Taal | Nederlands |
| Grootte | 9842 MB |



