Handleiding
Je bekijkt pagina 8 van 24

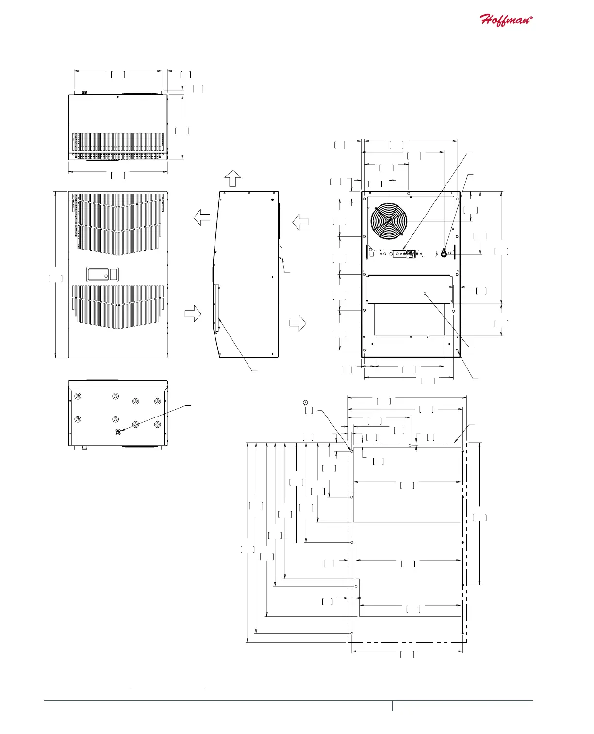
Sealed encloSure cooling Air Conditioners
Spec-00728 G
PH 763.422.2211 • FAX 763.576.3200 • HOFFMANONLINE.COMEQUIPMENT PROTECTION cooling 8
:$50
$,5287
&22/
$,5287
(1&/2685(
$,5287
5(029$%/(
+$1*,1*
7$%6
$0%,(17
$,5,1
&/($1$%/(5(86$%/(
$/80,180,1/(7),/7(5
$&&(66+2/(72>@
2876,'(',$0(7(5'5$,1678%
&22/,1*+($7,1*
7+(50267$76
32:(5
,1/(7
237,21$/
$&&(663$1(/
21/<)2581,76
:,7++($7(5
81&
02817,1*
+2/(6
;
;
;
[
;
;
;
$&287/,1(
&XWRXW'LPHQVLRQV
127(
02817,1**$6.(76833/,('1276+2:1
81,76LQ>PP@
*0RGHOV%78+U9:DWW
Visit www
.HoffmanOnline.com to download 2D and 3D CAD drawings into the overall design of your electr
onic system.
Bekijk gratis de handleiding van Hoffman G280646G050, stel vragen en lees de antwoorden op veelvoorkomende problemen, of gebruik onze assistent om sneller informatie in de handleiding te vinden of uitleg te krijgen over specifieke functies.
Productinformatie
| Merk | Hoffman |
| Model | G280646G050 |
| Categorie | Airco |
| Taal | Nederlands |
| Grootte | 3657 MB |
Caratteristiche Prodotto
| Kleur van het product | Grijs |
| Gewicht | 38000 g |
| Breedte | 431.1 mm |
| Diepte | 256.6 mm |
| Hoogte | 725.1 mm |

