Handleiding
Je bekijkt pagina 23 van 24

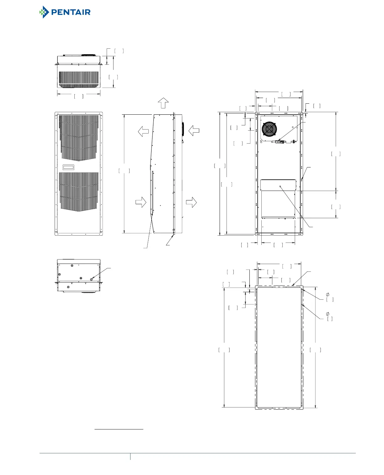
Sealed encloSure cooling Air Conditioners
Spec-00728 G
EQUIPMENT PROTECTIONSUBJECT TO CHANGE WITHOUT NOTICEcooling23
(1&/2685(
$,5,1
&22/
$,5287
$0%,(17
$,5,1
:$50
$,5287
&/($1$%/(5(86$%/(
$/80,180,1/(7),/7(5
,1&/8'('02817,1**$6.(7.,7
72%($'+(5('727+,66,'(2)
02817,1*5$,/6%()25(,167$//,1*
$,5&21',7,21(572&$%,1(7
7<3
7<3
&22/,1*
+($7,1*
7+(50267$7
02817,1*
+2/(6
237,21$/
$&&(663$1(/
21/<)25
81,76:,7+
+($7(5
$&&(66+2/(72
>@2876,'(
',$0(7(5'5$,1
678%
;
;
;
;
;
;
02817,1*
5$,/287/,1(
&XWRXW'LPHQVLRQV
*0RGHOV%78+U:DWW:LWK3DUWLDO5HFHVV
127(
02817,1**$6.(76833/,('1276+2:1
81,76LQ>PP@
Visit www
.HoffmanOnline.com to download 2D and 3D CAD drawings into the overall design of your electr
onic system.
Bekijk gratis de handleiding van Hoffman G280446G050, stel vragen en lees de antwoorden op veelvoorkomende problemen, of gebruik onze assistent om sneller informatie in de handleiding te vinden of uitleg te krijgen over specifieke functies.
Productinformatie
Merk | Hoffman |
Model | G280446G050 |
Categorie | Airco |
Taal | Nederlands |
Grootte | 3657 MB |
Caratteristiche Prodotto
Kleur van het product | Grijs |
Ingebouwd display | Ja |
Gewicht | 38000 g |
Breedte | 431.1 mm |
Diepte | 256.6 mm |