Handleiding
Je bekijkt pagina 17 van 45

www.heinner.com
16
5. INSTALARE
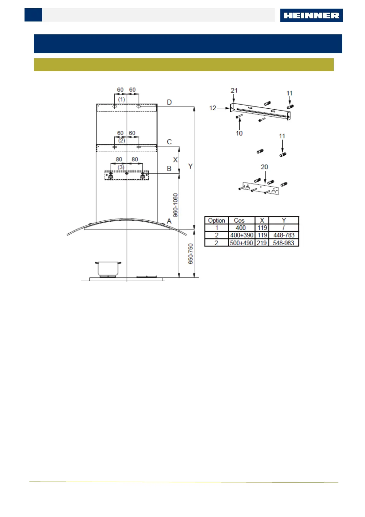
GĂURIREA PERETELUI ȘI FIXAREA SUPORTULUI
Ca prim pas, efectuați următoarele desene:
O linie verticală până la tavan sau până la limita superioară, în centrul zonei în care urmează să fie montată
hota.
Pentru o funcționare optimă, hota trebuie amplasată la o distanță de 650-750 mm (linia orizontală A )
deasupra plitei mașinii de gătit.
O linie orizontală B la minimum 960-1060
O linie orizontală C la X mm deasupra liniei B.
O linie orizontală D la Y mm deasupra hotei. (opțional: Instalați coșul de fum superior)
Marcați punctele:
Marcați un punct (1) pe linia orizontală D, la 60 mm de linia verticală de referință.
Repetați această operație pe cealaltă parte, asigurându-vă că cele trei marcaje sunt la același nivel.
Marcați un punct (2) pe linia orizontală C, la 60 mm de linia verticală de referință.
Repetați această operație pe cealaltă parte, asigurându-vă că cele trei marcaje sunt la același nivel.
Marcați un punct (3) pe linia orizontală B, la 80 mm de linia verticală de referință.
Repetați această operație pe cealaltă parte, asigurându-vă că cele trei marcaje sunt la același nivel.
Fixați suporturile:
Efectuați găuri în punctele marcate, utilizând un burghiu cu diametrul de 10 mm.
Introduceți diblurile 11 în orificii.
Fixați suportul 20 cu 3 șuruburi 10 (ST5x50) furnizate împreună cu hota, pe linia orizontală B.
Fixați suportul coșului de fum 21 cu 2 șuruburi 10 (ST5x50) furnizate împreună cu hota, pe linia orizontală D.
Bekijk gratis de handleiding van Heinner HDCH-MD650GIX, stel vragen en lees de antwoorden op veelvoorkomende problemen, of gebruik onze assistent om sneller informatie in de handleiding te vinden of uitleg te krijgen over specifieke functies.
Productinformatie
| Merk | Heinner |
| Model | HDCH-MD650GIX |
| Categorie | Afzuigkap |
| Taal | Nederlands |
| Grootte | 9364 MB |







