Haws 3612 handleiding
Handleiding
Je bekijkt pagina 11 van 11

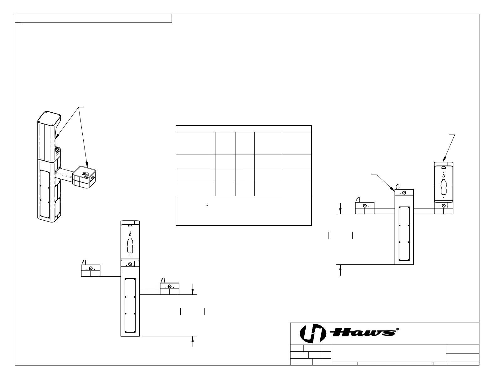
BOTTLE FILLER AND
FOUNTAINS CAN BE
INSTALLED TO FACE
ANY DIRECTION
22 1/4"
564mm
CHILD ADA
POSITION
27"
687mm
WHEELCHAIR ADA
POSITION
BOTTLE FILLER CAN
BE INSTALLED ON ARMS
ADA STANDING
HEIGHT FOUNTAIN
INSTALLED ON
PEDESTAL
NOTES ON OPTIONAL CONFIGURATIONS
HAWS 3600/3600F SERIES OUTDOOR FOUNTAINS ARE MODULAR AND CAN
BE ASSEMBLED AND CONFIGURED MANY DIFFERENT WAYS. DISPLAYED
HERE ARE A FEW EXAMPLES. CONFIGURATIONS OTHER THAN THAT SHOWN
IN THE INSTALLATION INSTRUCTIONS FOR THE 3612/3612F MAY AFFECT
COMPLIANCE WITH ADA REGULATIONS. IT IS THE RESPONSIBILITY OF THE
INSTALLER TO UNDERSTAND LOCAL, STATE, AND FEDERAL REGULATIONS
AS APPLICABLE IF INSTALLING THIS FOUNTAIN IN CONFIGURATIONS OTHER
THAN THAT INDICATED ON SHEET 1 (PAGE 6 OF 11).
ADA ARM HEIGHT POSITION OPTIONS
LEFT
SIDE*
RIGHT
SIDE*
ARM
HEIGHT
(LOWER
EDGE)
BUBBLER
NOZZLE
HEIGHT
STANDING
ADA
YES
(STD)
NO
31-7/8
[809 mm]
39-3/8
[999 mm]**
WHEELCHAIR
ADA
YES
YES
(STD)
27
[687 mm]
34-5/8
[878 mm]
CHILD ADA
YES YES
22-1/4
[566 mm]
29-7/8
[757 mm]
* RIGHT AND LEFT CAN BE REVERSED IF PEDESTAL IS
ROTATED 180
.
**NOZZLE HEIGHT IS 41-1/2" WHEN FOUNTAIN IS INSTALLED
ON TOP OF PEDESTAL.
© 2021 Haws Corporation - All Rights Reserved. HAWS® and other trademarks used in these materials are the exclusive property of Haws Corporation.
THIS DOCUMENT IS TRUE AND CORRECT AT TIME OF PUBLICATION. CONTINUED PRODUCT
IMPROVEMENTS MAKE SPECIFICATIONS AND MEASUREMENTS SUBJECT TO CHANGE WITHOUT NOTICE.
APPROVED:
DRAWN:
PART NUMBER
SCALE:
REVISION
DHP
6/11/20
2
1:24
FV
09/16/21
DRAWING TYPE:
SIZE: A
5666
BY:
BJM
INSTALLATION
DATE:
DATE:
REV. ECN:
5719
CHK'D.:
MODEL(S)
1455 KLEPPE LANE
SPARKS, NEVADA 89431
(775) 359-4712 FAX (775) 359-7424
E-MAIL: HAWS@HAWSCO.COM
WEBSITE: WWW.HAWSCO.COM
DP
ECN:
SHEET 6 OF 6
0580001180.D
3612 & 3612F
PAGE 11 OF 11
PAGE 11 OF 11
Bekijk gratis de handleiding van Haws 3612, stel vragen en lees de antwoorden op veelvoorkomende problemen, of gebruik onze assistent om sneller informatie in de handleiding te vinden of uitleg te krijgen over specifieke functies.
Productinformatie
| Merk | Haws |
| Model | 3612 |
| Categorie | Niet gecategoriseerd |
| Taal | Nederlands |
| Grootte | 1576 MB |







