Haws 1201SFH handleiding
Handleiding
Je bekijkt pagina 21 van 21

© 2020 Haws Corporation - All Rights Reserved. HAWS® and other trademarks used in these materials are the exclusive property of Haws Corporation.
THIS DOCUMENT IS TRUE AND CORRECT AT TIME OF PUBLICATION. CONTINUED PRODUCT
IMPROVEMENTS MAKE SPECIFICATIONS AND MEASUREMENTS SUBJECT TO CHANGE WITHOUT NOTICE.
APPROVED:
DRAWN:
PART NUMBER
SCALE:
REVISION
JL
07/25/18
6
1:8
TM
09/29/20
DRAWING TYPE: SIZE: A
5343
BY:
DHP
INSTALLATION
DATE:
DATE:
REV. ECN:
5595
CHK'D.:
MODEL(S)
1455 KLEPPE LANE
SPARKS, NEVADA 89431
(775) 359-4712 FAX (775) 359-7424
E-MAIL: HAWS@HAWSCO.COM
WEBSITE: WWW.HAWSCO.COM
DHP
ECN:
SHEET 7 OF 7
0510000866.D
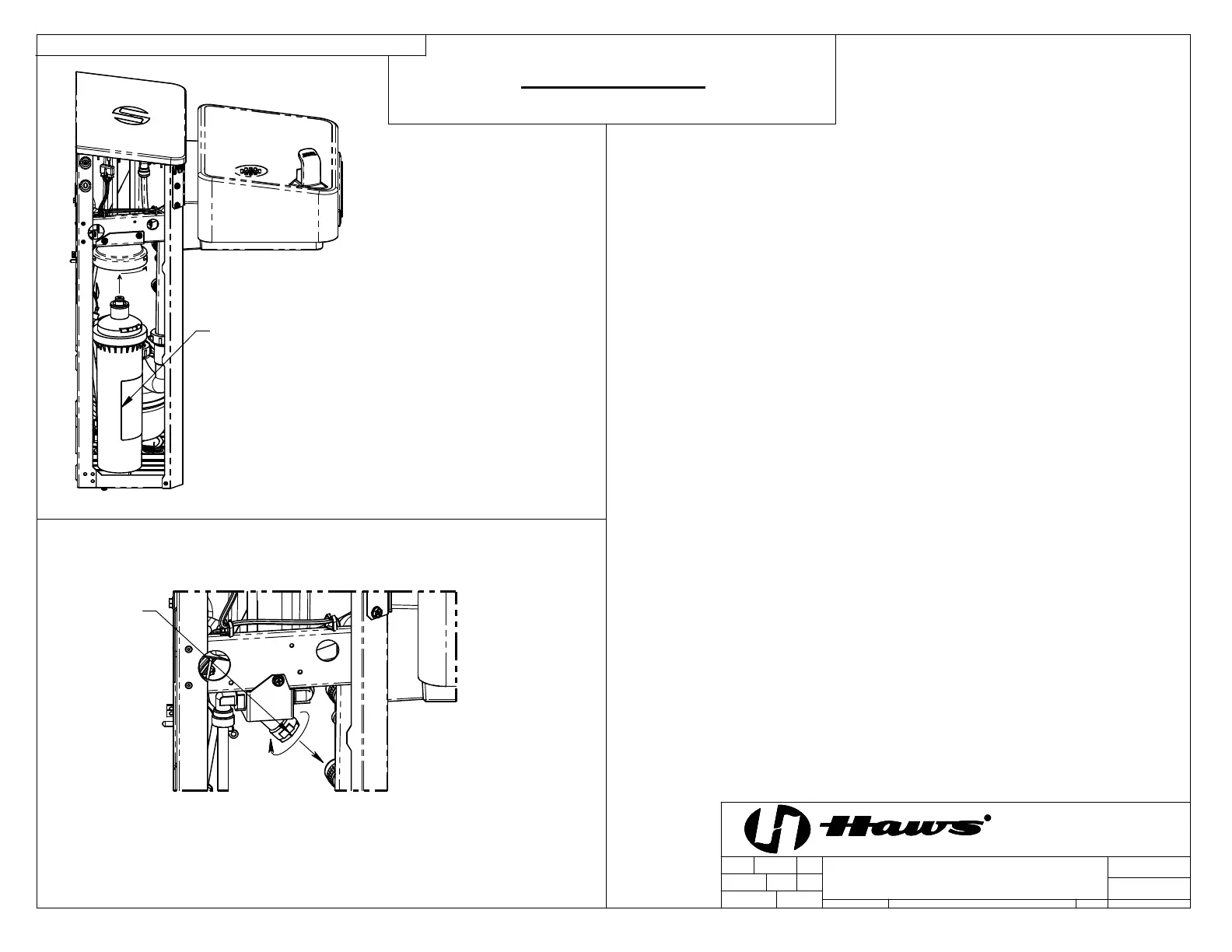
12XX ELECTRIC WATER COOLERS
NOTE THE LEFT EDGE
OF THE LABEL FACING
OUT THE SIDE DURING
INSERTION OF FILTER
INTO FILTER HEAD
7/8"
WRENCH
FLATS
Y-STRAINER CLEANING
PAGE 21 OF 21
MAINTENANCE
FILTER REPLACEMENT
PAGE 21 OF 21
Bekijk gratis de handleiding van Haws 1201SFH, stel vragen en lees de antwoorden op veelvoorkomende problemen, of gebruik onze assistent om sneller informatie in de handleiding te vinden of uitleg te krijgen over specifieke functies.
Productinformatie
Merk | Haws |
Model | 1201SFH |
Categorie | Niet gecategoriseerd |
Taal | Nederlands |
Grootte | 3610 MB |