Hanwha QNV-C8013R handleiding
Handleiding
Je bekijkt pagina 26 van 43

26_ bullet camera
bullet camera
INSTALLATION
J
`
The camera jack connected to the external cable is not waterproof. You are recommended to install this product below the
edge of eaves to prevent the cable from being externally exposed.
Precautions before installation
Ensure you read out the following instructions before installing the camera:
~
Select an installation site that can hold at least 5 times the camera’s weight.
~
Stuck-in or peeled-off cables can cause damage to the product or a fire.
~
For safety purposes, keep anyone else away from the installation site.
And put aside personal belongings from the site, just in case.
~
If the product is installed with excessive force, it may cause damage to the camera due to malfunction.
Forcing assembly using non-compliant tools may damage the product.
~
Do not use the sunshield hole for any purpose other than for connecting the sunshield.
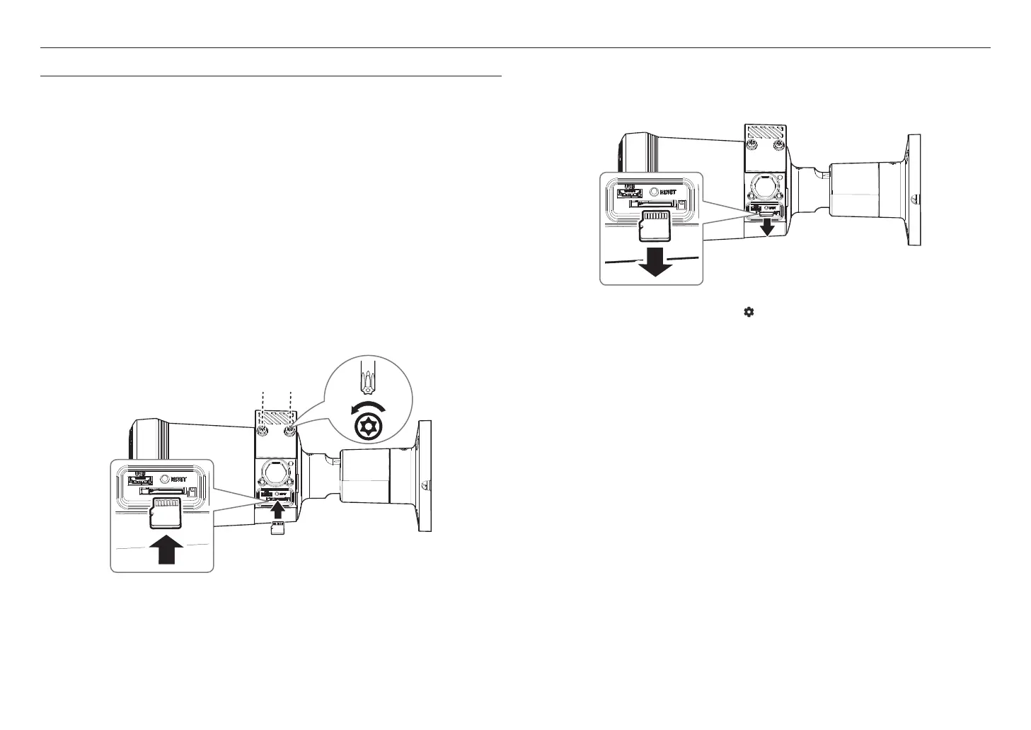
Inserting a Micro SD card
1. Turn the screws of the port box cover of the camera body counterclockwise to remove the cover.
2. Insert the micro SD card into the micro SD card slot in the direction of the arrows as shown in the picture.
2x
TR20
J
`
Before installing the camera, the Micro SD card should be inserted while the power source and the body are separated.
`
Do not forcefully insert it in the reverse direction. It might damage your Micro SD card and your product.
`
When it rains or the humidity is high, insertion or ejection of a Micro SD card is not recommended.
`
When installing/removing the Micro SD card, make sure you put the product body on a flat ground before working on it in order
to prevent accidents due to loss or drop of any parts.
`
Disassembly of the product cover should be finished within 5 minutes, or there will be the risk of internal dew condensation.
Removing a Micro SD card
Gently press down on the exposed end of the Micro SD card as shown in the diagram to eject the Micro SD
card from the slot.
J
`
Before removing the Micro SD card, in <Setup ( )>-<Event>-<Storage>, set the device to <Off> and press the [Apply]
button and turn the camera off.
`
If you turn off the camera or remove the Micro SD card that contains data from the product, the data may be lost or damaged.
`
When removing the port box cover, be careful not to lose the rubber gasket of the cover.
Bekijk gratis de handleiding van Hanwha QNV-C8013R, stel vragen en lees de antwoorden op veelvoorkomende problemen, of gebruik onze assistent om sneller informatie in de handleiding te vinden of uitleg te krijgen over specifieke functies.
Productinformatie
Merk | Hanwha |
Model | QNV-C8013R |
Categorie | Bewakingscamera |
Taal | Nederlands |
Grootte | 6663 MB |