Handleiding
Je bekijkt pagina 44 van 60

AssemblyPage EN-14
Assembly
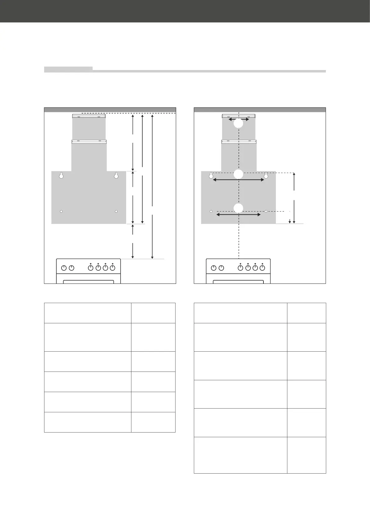
Space requirements
(a)
(b)
(c)
(d)
(e)
Important units:
Dimensions
in cm
(a) Minimum distance be-
tween cooker and lower
edge of exhaust hood
65–75
(b) Height of the exhaust
hood (rear wall)
44.0
(c) Height of the entire duct
cover (12) and (13)*
30.0–58.0
(d) Height of the entire appli-
ance, (12) and (13)*
74.0–102.0
(e) Space required above
the cooker*
139.0–177.0
The images and tables show the minimum
distances that must be complied with and
how much leeway you have while installing.
*For circulation air operation, the vents on the
upper duct cover must not be obstructed.
Dimensions for mounting
(g)
(f)
(i)
(j)
(h)
Calculating drill holes:
Dimensions
in cm
(f) Height at which the safety
screws (13) for the exhaust
hood must be installed
24.8
(g) Height at which the fixing
screws (12) for the exhaust
hood must be installed
42.8
(h) Distance between the safe-
ty screws (13) for the ex-
haust hood
24.0
(i) Distance between the fix-
ing screws (12) for the ex-
haust hood
50.0
(j) Distance between the fix-
ing screws (11) for the wall
mount (18) for the upper
duct cover (12)
16.0
Bekijk gratis de handleiding van Hanseatic SY-103A8-E4-C118-L52-900, stel vragen en lees de antwoorden op veelvoorkomende problemen, of gebruik onze assistent om sneller informatie in de handleiding te vinden of uitleg te krijgen over specifieke functies.
Productinformatie
| Merk | Hanseatic |
| Model | SY-103A8-E4-C118-L52-900 |
| Categorie | Afzuigkap |
| Taal | Nederlands |
| Grootte | 6641 MB |





