Handleiding
Je bekijkt pagina 31 van 60

31
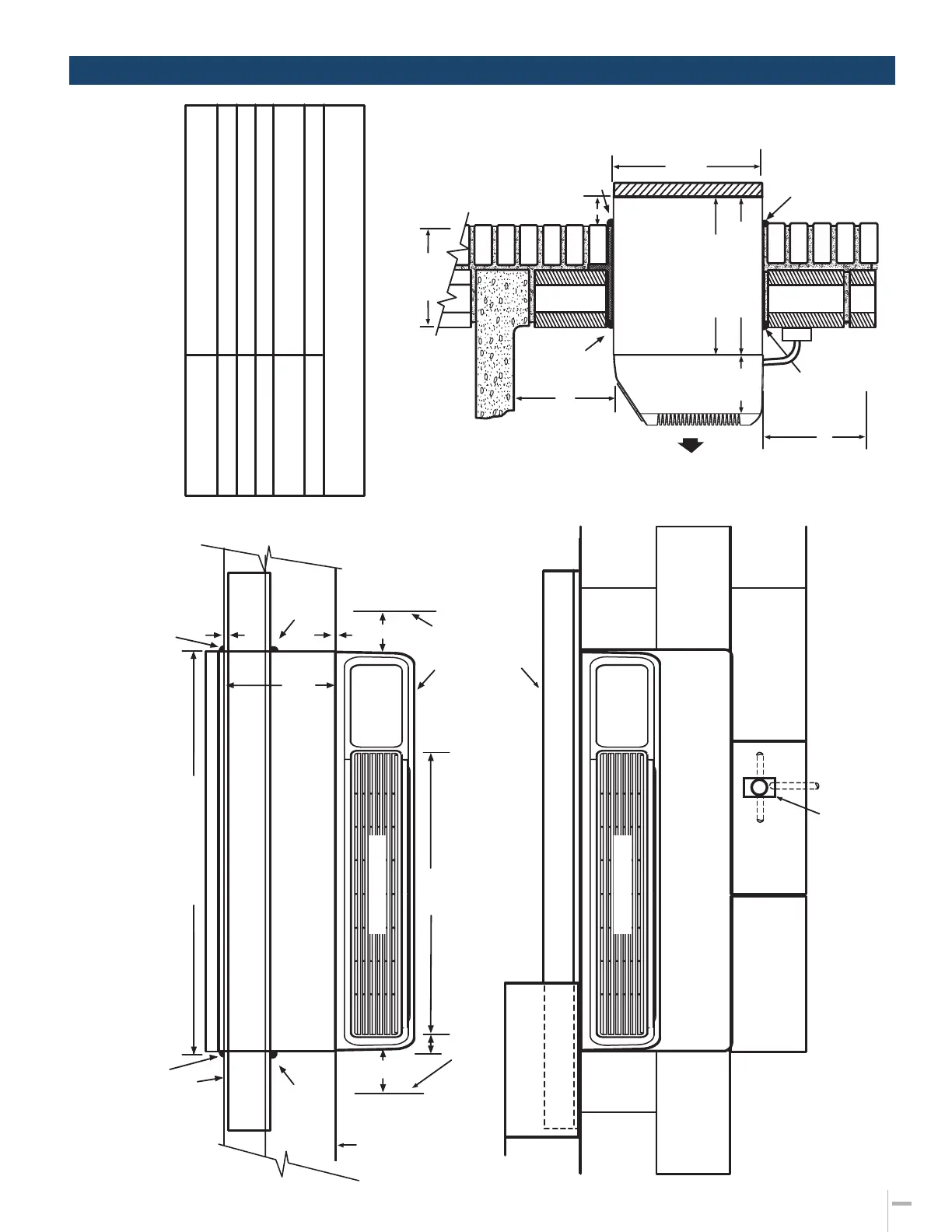
WALL SLEEVE INSTALLATION DATA (CONTINUED)
WALL SLEEVE INSTALLATION – CORD-SET CONNECTED
Example: block and veneer – dimensional data and comments
are also applicable to other types of construction
Manufacturer Required
Minimum Installation Clearance
1/4" (See note 1)
Allow For Electrical Wiring 0" Min. (See page 29)
0" Minimum
0" Minimum 2" Recommended
See pages 39-40 for ducted application.
3" Minimum
FINISHED
EXTERIOR WALL
Dimension
A
B
C
D
E
NOTE:
1. FOR OUTSIDE FLUSH MOUNTING SEE PAGE 35 FOR DRAIN INSTALLATION.
CAULK*
CAULK*
CAULK*
CAULK*
CAULK*
CAULK*
Sleeve
RAB71B 42"
RAB78B 42"
FINISHED
EXTERIOR
WALL
RAB71B 13-3/4"
RAB78B 14"
ADJACENT WALL
ADJACENT WALL
D
A
C
D
27-1/4"
TOP VIEW
2-1/2"
*Caulk around perimeter of wall sleeve all four sides
where it joins the building - Interior and Exterior.
LINTEL
FRONT VIEW
ELECTRICAL RECEPTACLE (BY OTHERS).
FLUSH MOUNTED.
WALL OPENING
16-1/4" x 42-1/4" MIN.
See page 45 for line cord length.
INSIDE
MAX. WALL THICKNESS
13-1/8"
E
B
A
CAULK*
FINISH FLOOR
*Caulk around
perimeter of wall sleeve
all four sides where it
joins the building -
Interior and Exterior.
ROOM
CABINET
7-1/16"
RAB71B 13-3/4"
16" RAB71B
16" RAB78B
SIDE VIEW OF
ALTERNATE
HIGH MOUNT
With conduit
power supply.
CONDUIT
FIELD
SUPPLIED
RAB78B 14"
ROOM CABINET
ROOM CABINET
WALL SLEEVE INSTALLATION DATA (CONTINUED)
Bekijk gratis de handleiding van GE AZ65H12DAC, stel vragen en lees de antwoorden op veelvoorkomende problemen, of gebruik onze assistent om sneller informatie in de handleiding te vinden of uitleg te krijgen over specifieke functies.
Productinformatie
Merk | GE |
Model | AZ65H12DAC |
Categorie | Airco |
Taal | Nederlands |
Grootte | 11688 MB |