Handleiding
Je bekijkt pagina 32 van 60

32
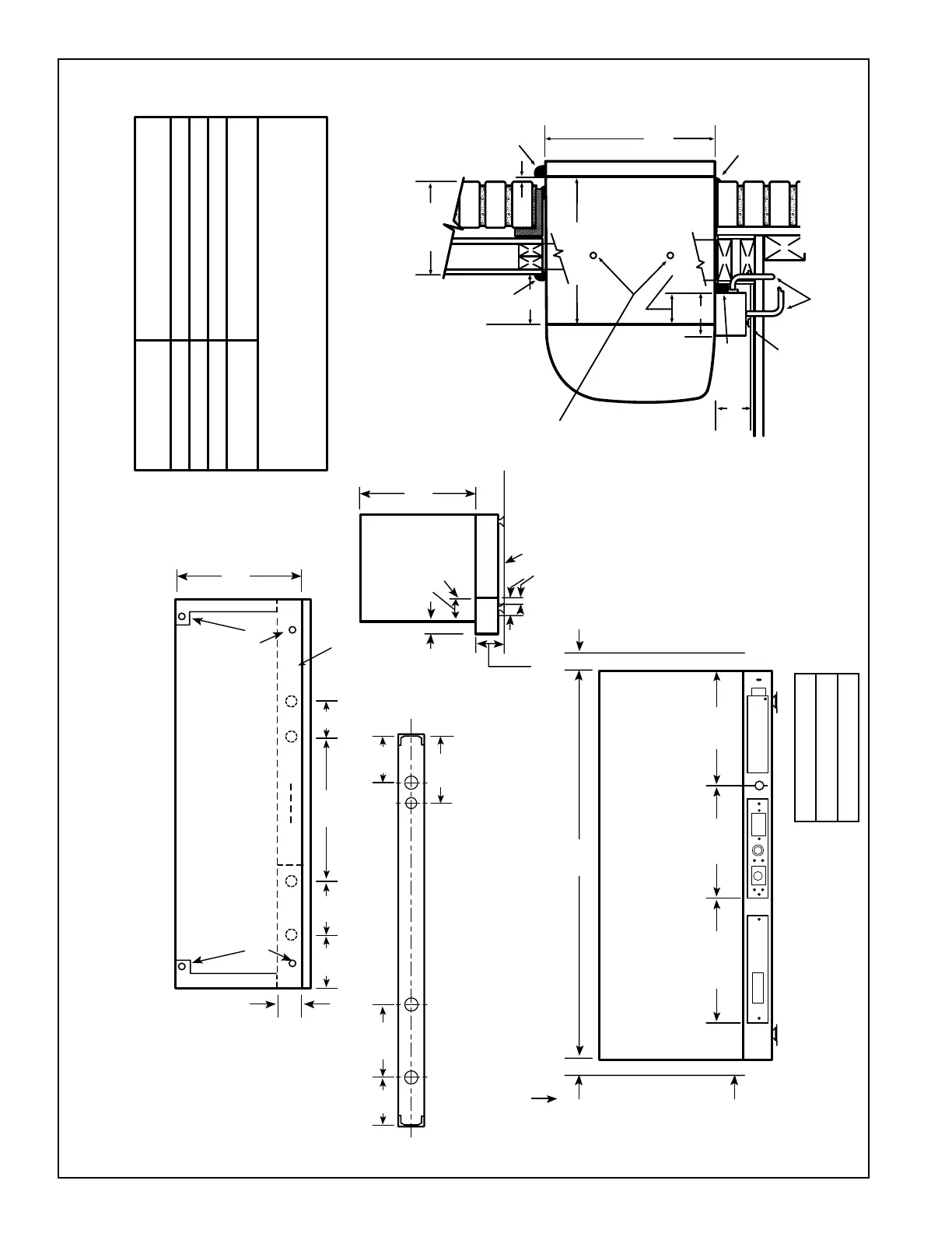
RAB71/77 WALL CASE INSTALLATION - RAK204 SERIES SUB-BASE CONNECTED
EXAMPLE: FRAME & BRICK VENEER - DIMENSIONAL DATA AND COMMENTS
ARE ALSO APPLICABLE TO OTHER TYPES OF CONSTRUCTION
TOP VIEW
Manufacturer Required
Minimum Installation Clearance
1/4" (See note 1)
3" Min. (5" MAX.)
2-3/8" Minimum
0" Minimum 2" Recommended
See pages 38-39 for ducted application.
Dimension
A
B
C
D
NOTE:
1. FOR OUTSIDE FLUSH MOUNTING SEE PAGE 31 FOR
DRAIN INSTALLATION.
2-3/8"
MIN.
FINISHED
INTERIOR
WALL
LEVELING SCREW
LEVELING SCREW
RAB71 13-3/4"
RAB77 13-7/8"
5.15" 7.70" 18.86" 1.5"
5.15" 7.70"
10.30"
8.80"
BACK VIEW
FRONT VIEW
42"
D
D
SEE NOTE
LEFT SIDE
INTERIOR
ADJACENT
WALL
12-3/4" 12-7/8" 13"
LEVELING SCREW
KNOCKOUT SIZE
LARGE 1-1/8" DIA.
SMALL 7/8" DIA.
KNOCKOUTS
(ENCLOSURE)
4 REAR; 4 BOTTOM
*SHOWN WITH ACCESS COVERS REMOVED.
NOTE: CAUTION - REMOVE KNOCKOUTS FROM INSIDE OUT.
SIDE VIEW
WITH WALL
CASE SHOWN
IN PLACE
FINISHED FLOOR
3" MIN.
ADJUSTABLE
TO 5"
1-5/16" 2-3/8"
INTERIOR
WALL
RAB71 16"
RAB77 16-1/4"
7/8"
1-1/2"
FINISHED FLOOR
RAB71 16"
RAB77 16-1/4"
SIDE VIEW
MAX. WALL THICKNESS
11-1/8"
MOUNTING SCREWS
AND HOLES BY
INSTALLER
LEVELING SCREWS
(2) SUB-BASE BODY
(2) SIDE EXTENSIONS
CONDUIT ENTRY
(ALTERNATES)
CAULK*
ROOM
CABINET
C
A
B
CAULK*
3-11/16"
2-3/8" MIN. CASE
EDGE TO FINISHED
WALL
13-3/4"
CAULK*
*Caulk around
perimeter of
wall case all
four sides
where it joins
the building -
Interior and
Exterior.
RECOMMEND 2" TO
INTERIOR ADJACENT
WALL BOTH SIDES.
2020 Data Manual 2002 11/7/02 3:19 PM Page 32
Bekijk gratis de handleiding van GE AZ25E12D2C, stel vragen en lees de antwoorden op veelvoorkomende problemen, of gebruik onze assistent om sneller informatie in de handleiding te vinden of uitleg te krijgen over specifieke functies.
Productinformatie
Merk | GE |
Model | AZ25E12D2C |
Categorie | Airco |
Taal | Nederlands |
Grootte | 12182 MB |