Frigidaire FCVW3662SS handleiding
Handleiding
Je bekijkt pagina 27 van 56

27
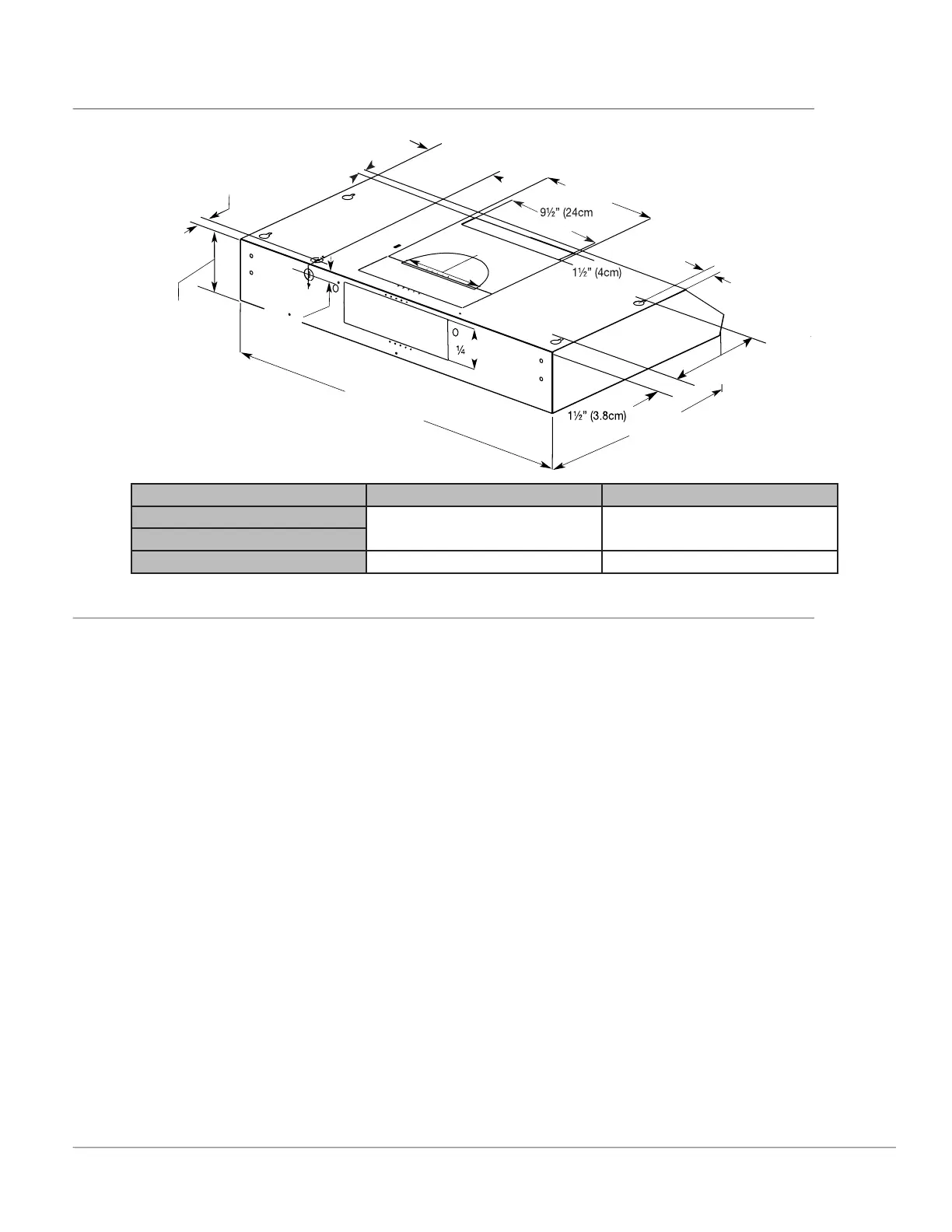
DIMENSIONS DU PRODUIT
3
”( 8
.25
c
m
)
10” (25.4cm
)
1” (2.5cm)
typical both sides
9” (22.9cm)
typical both sides
19
3
/
4
”
(50.2cm)
7
/
8
”
(2.2cm)
7
/
8
”
(2.2cm)
4
15
/
16
”
(
12.5cm)
typical both sides
recirculating cover
7” (17.8cm
)
recirculating cover
9
/
16
”
(1.4cm)
Dim A
Dim B
Dim A Dim B
FCVW3062AS
30” (76.2 cm) 6 /” (16.7 cm)
FCVW3062AD
FCVW3662AS 36” (91.4 cm) 9 /” (24.3 cm)
EXIGENCES CONCERNANT L’ÉVACUATION
• Le système d’évacuation doit se terminer à
l’extérieur.
• Ne terminez pas le système d’évacuation dans
un grenier ou un autre endroit fermé.
• N’utilisez pas de capuchon mural de 4” (10,2
cm) de type buanderie.
• Utilisez un évent métallique rond de 7” (17,8
cm). La longueur du système d’évacuation
et le nombre de coudes doivent être réduits
au minimum pour assurer un fonctionnement
ecace.
Pour un fonctionnement ecace et silencieux:
• N’utilisez pas plus de trois coudes à 90°.
Assurez-vous qu’il y a un minimum de 24” (61
cm) d’évacuation droite entre les coudes si plus
d’un coude est utilisé.
• N’installez pas deux coudes ensemble.Utilisez
des colliers ou du ruban adhésif pour sceller
tous les joints du système d’évacuation.
• Le système d’évacuation à la sortie doit être
muni d’un registre d’air froid.Utilisez un produit
de calfeutrage pour sceller l’ouverture du mur
extérieur ou du toit autour du capuchon.
• Les meilleures performances sont atteintes
avec une tuyauterie droite, sans coudes et en
utilisant un tuyau lisse.
• Longueur équivalente calculée recommandée
pour le système d’évacuation: 35 pi (10,7 m) et
conduits circulaires de 50 ft (15,2 m).
Installations par temps froid
Un clapet anti-retour supplémentaire doit être
installé pour minimiser le flux d’air froid vers
l’arrière et une coupure thermique doit être
installée pour minimiser la conduction des
températures extérieures dans le cadre du système
de ventilation.
Le registre doit être placé du côté de l’air froid de
la coupure thermique, aussi près que possible de
l’endroit où le système de ventilation pénètre dans
la partie chauée de la maison.
Air de maquillage
Les codes de construction locaux peuvent exiger
l’utilisation de systèmes d’air d’appoint en cas
d’utilisation de systèmes de ventilation dont le
débit d’air est supérieur au CFM spécifié. Le CFM
spécifié varie d’un endroit à l’autre. Consultez votre
professionnel du chauage, de la ventilation et
de la climatisation pour connaître les exigences
spécifiques à votre région.
Bekijk gratis de handleiding van Frigidaire FCVW3662SS, stel vragen en lees de antwoorden op veelvoorkomende problemen, of gebruik onze assistent om sneller informatie in de handleiding te vinden of uitleg te krijgen over specifieke functies.
Productinformatie
| Merk | Frigidaire |
| Model | FCVW3662SS |
| Categorie | Afzuigkap |
| Taal | Nederlands |
| Grootte | 6901 MB |







