Handleiding
Je bekijkt pagina 10 van 63

-
10
-
Once proper temperature is reached the solenoid valve closes and shuts off the refrigeration flow to the unit
and initiates a pump down cycle. This will allow the remote low pressure switch to open and shut off
remote compressor. The solenoid will remain closed until the electronic control probe reaches its “cut in”
set point. The electronic control will also sense a frosted coil that requires a defrost cycle and closes
solenoid until defrost is complete. There are also a defined number of scheduled defrosts that also insures a
full defrost occurs.
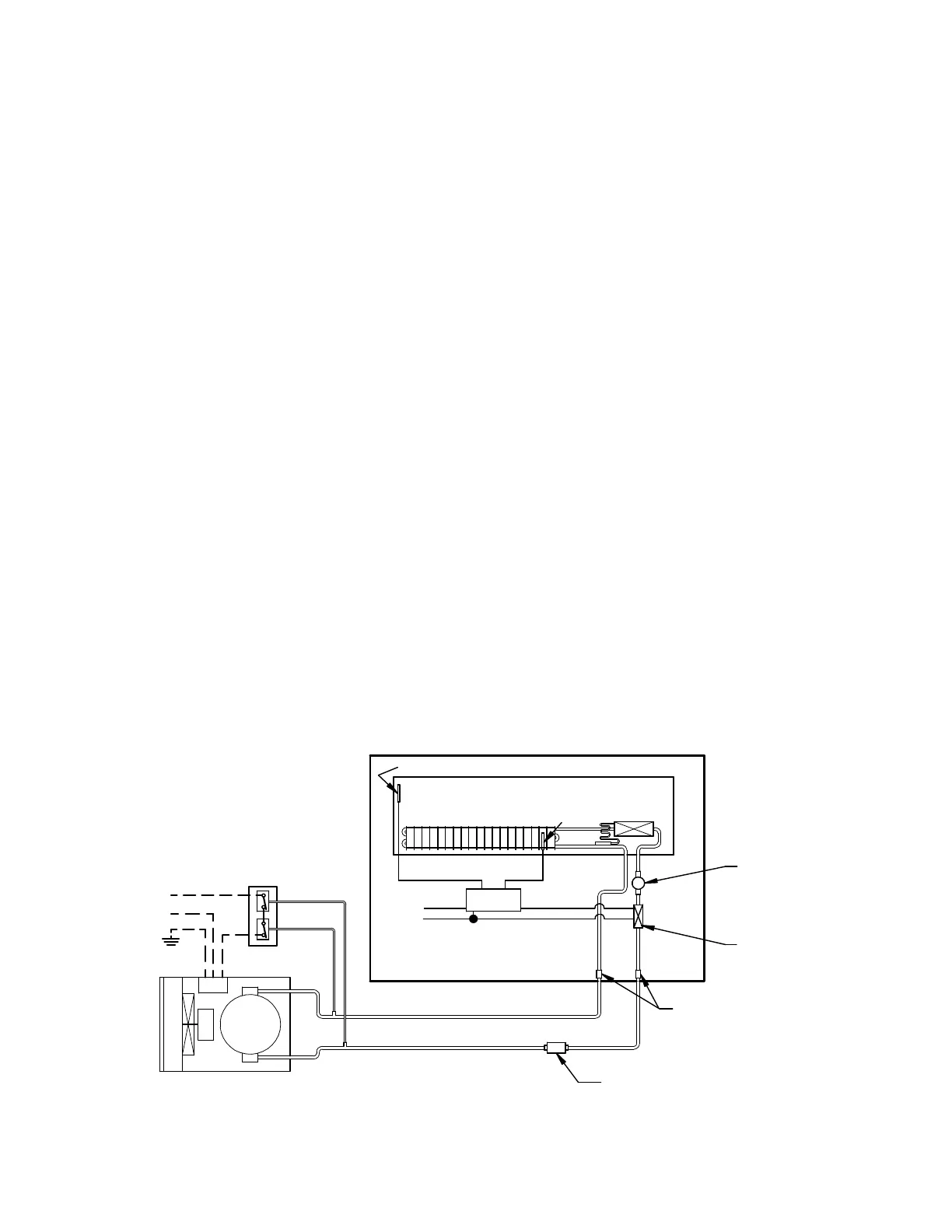
Remote Refrigeration Installation
The condensing unit and pressure control are optionally supplied from the factory for remote location
installation. A remote high low-pressure switch must be mounted and wired by the installer. The high low-
pressure switch must be wired in series with the compressor power supply as shown in diagram below.
1. Mount condensing unit as close to the remote display case as practical. All refrigeration and/or
electrical materials between the condensing unit and display case are to be supplied by installing
contractor.
2. Route properly sized and designed refrigeration lines from the condensing unit to the cabinet. Follow
line sizing charts and piping instructions in the condenser unit’s manufacturers instruction manual.
Horizontal suction lines should be pitched downward towards the condensing unit at least ½” per 10’
run to aid the oil drainage. A “P” trap must be installed in the suction line at the foot of every riser to
insure oil return. Dry nitrogen must be used to flow through tubing while brazing refrigeration lines.
3. Suction line must be insulated the entire length with Armaflex (or equivalent). Do not run liquid line
inside insulation with suction line.
4. The remote high/low-pressure control must be mounted, wired and set by the installer.
5. Leak check condensing unit, cabinet, and all connecting tubing. Cabinet and condensing unit tubing
should be checked to insure no leaks occurred during shipping or from rough handling.
Make certain all refrigeration valves are opened and evacuate system below 500 microns. System must
hold below 500 microns for 1 minute with pump isolated. Charge the system with refrigerant type
specified on the data plates.
REMOTE
HIGH LOW
PRESSURE
CONTROL
LIQUID LINE
SUCTION LINE (INSULATED)
REMOTE
CONDENSING
UNIT
EVAPORATOR
COILS
DISPLAY CASE
EXPANSION
VALVE
HIGH
LOW
LIQUID LINE
SOLENOID VALVE
SIGHT GLASS
DRIER/FILTER
FIELD CONNECTION
HOT
FUSED
POWER
SUPPLY
DEFROST
TERMINATE
PROBE
ELECTRONIC
CONTROL
AIR TEMP. CONTROL PROBE
FUSED
CASE
POWER
Bekijk gratis de handleiding van Federal ITRSS4834, stel vragen en lees de antwoorden op veelvoorkomende problemen, of gebruik onze assistent om sneller informatie in de handleiding te vinden of uitleg te krijgen over specifieke functies.
Productinformatie
Merk | Federal |
Model | ITRSS4834 |
Categorie | Koelkast |
Taal | Nederlands |
Grootte | 10063 MB |