Fantini Cosmi ASPIRLIGHT BP handleiding
Handleiding
Je bekijkt pagina 11 van 24

ASPIRLIGHT BP
11
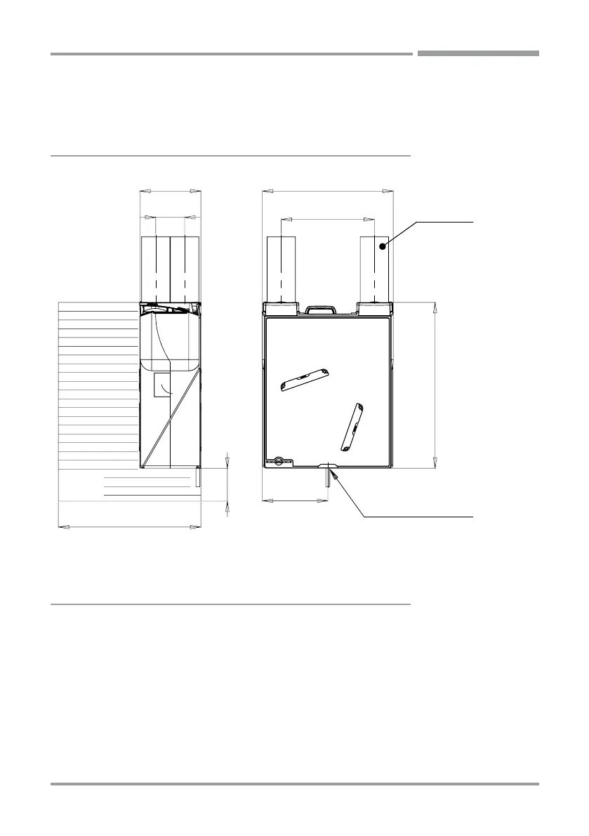
5.2 SPAZI RICHIESTI
5.3 REQUISITI PER IL MONTAGGIO A PARETE / PAVIMENTO / SOFFITTO
L'installazione deve essere esguita da personale professionalmente qualificato.
Installare e fissare l'unità di ventilazione su parete o soffitto con densità di almeno 200 kg/m
3
, utilizzando accessori
idonei al sostegno del carico e alla tipologia della parete o soffitto.
425
760
597
298.5
Ducts (4x):
Ø
125 mm
Condensate drain & hose:
Ø 14 mm (inside)
Ø 18 mm (outside)
150
650
132
280
Free
space
5.2 Clearances required
5.3 Wall/floor/ceiling requirements
It is important to fit the bracket on a wall with at least
200 kg/m
3
density, to ensure that the sound exposure is
not too high for dwelling requirements.
5.4 Unpacking the unit
Open the carton on the marked side.
Pull out the unit from the carton by the handle on the
unit.
The package contents:
- Advance unit.
- Two side bars.
- Installer manual.
ITHO
|
advance
13
211.0107 Advance 226-0047 A4 Installer ENGELS.indd 13 14-02-11 15:39
Condotti
Spazio
libero
Scarico condensa
(interno)
(esterno)
Bekijk gratis de handleiding van Fantini Cosmi ASPIRLIGHT BP, stel vragen en lees de antwoorden op veelvoorkomende problemen, of gebruik onze assistent om sneller informatie in de handleiding te vinden of uitleg te krijgen over specifieke functies.
Productinformatie
| Merk | Fantini Cosmi |
| Model | ASPIRLIGHT BP |
| Categorie | Ventilator |
| Taal | Nederlands |
| Grootte | 2343 MB |
