Handleiding
Je bekijkt pagina 11 van 16

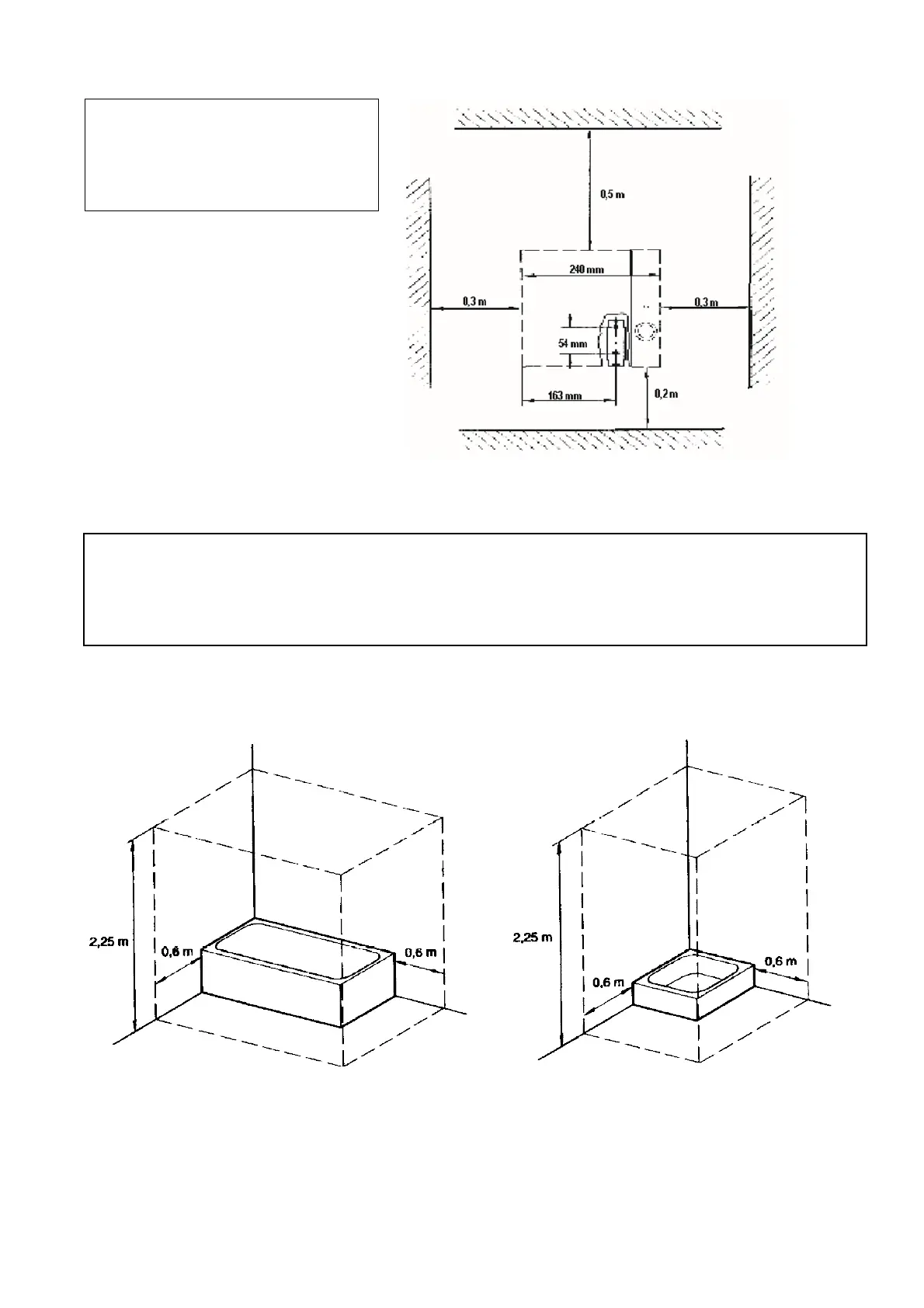
(D) Mindestabstände
(GB) Minimum distances
(F) Distances minimums
(NL) Minimumafstand
(D) Nicht innerhalb der dargestellten Bereiche montieren. Nationale Vorschriften beachten!
(GB) Do not mount within the depicted areas. Comply with national regulations!
(F) Ne pas installer dans les espaces représentés ci-dessous. Respecter les normes nationales!
(NL) In de bereiken zoals afgebeeld niet monteren. Neem de landelijke voorschriften in acht!
Bekijk gratis de handleiding van Fakir Prestige HF 500, stel vragen en lees de antwoorden op veelvoorkomende problemen, of gebruik onze assistent om sneller informatie in de handleiding te vinden of uitleg te krijgen over specifieke functies.
Productinformatie
Merk | Fakir |
Model | Prestige HF 500 |
Categorie | Heater |
Taal | Nederlands |
Grootte | 1779 MB |
Caratteristiche Prodotto
Soort bediening | Draaiknop |
Kleur van het product | Grey, Steel |
Aantal vermogenniveau's | 1 |
Breedte | 250 mm |
Diepte | 100 mm |