Handleiding
Je bekijkt pagina 14 van 36

14
• Make sure that there are no flammable
or combustible materials in the close
vicinity, such as curtains, oil, cloth etc.
which may catch fire.
• The countertops and furniture
surrounding the appliance must be
made of
materials resistant to
temperatures above 212 ºF.
• The appliance should not be installed
next to a dishwasher, fridge, freezer,
washing machine or clothes dryer.
• The appliance can be placed close to
other furniture on condition that in the
area where the appliance is set up, the
furniture’s height does not exceed the
height of the cooktop.
2.2
inStallation of the Cooker
• A qualified installer must perform
installation and service.
• Important: Save for use by the
neighborhood electrical inspector.
• Read and capture these guidelines for
later reference.
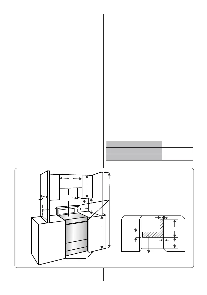
Dimensions and Clearances
• Make sure there is enough space
between the range and any nearby
flammable materials.
• Location-Confirm the installation site for
the range. Verify the stability of the floor
and the appropriateness of the electrical
supply.
• The specified dimensions must be used.
Minimum clearance is provided by the
given dimensions. A stable and flat
contact surface is required.
• Avoid cabinet storage space located
above the surface units to eliminate
the risk of burns or fire by reaching
over heated surface units. The risk can
be reduced by installing a range hood
that projects horizontally a minimum
of 5" (127 mm) beyond the bottom of
the cabinets if cabinet storage is to be
provided.
• If the kitchen furniture is higher than the
cooktop, the kitchen furniture must be
at least 4 inches (10 cm) away from the
sides of appliance for air circulation.
• If a cooker hood or any cupboard is to
be installed above the appliance, the
safety distance between cooktop and
any cupboard/cooker hood should be as
shown below.
A (min) 20"
B (min) 17"
D Product Width
Cabined
C
30 in
(762 mm)
Install with zero
clearance sides
and back
5,9" (15 cm)
10/16" (1,5 cm)
2" (5,1 cm)
Proper positioning of the gas and electric outlet must be
flush.Nothing located in shaded area can extend more
than 2" (5.1 cm) form wall or range will not slide all the
way back.
19.7" (50 cm)
11.8" (30 cm)
84 in
(2.13 m)
Sidewalls extend at least
6 in (152 mm) beyond
oven door surface
18 in
(457mm)
maximum
36 in
(914 mm)
24 in
(610 mm)
30 in
(762 mm)
minimum
13 in
(330 mm)
minimum
D
A
B
Bekijk gratis de handleiding van Element EGR244MCCS, stel vragen en lees de antwoorden op veelvoorkomende problemen, of gebruik onze assistent om sneller informatie in de handleiding te vinden of uitleg te krijgen over specifieke functies.
Productinformatie
| Merk | Element |
| Model | EGR244MCCS |
| Categorie | Fornuis |
| Taal | Nederlands |
| Grootte | 3261 MB |





