Daikin VAM2000J8VEB handleiding

32 pagina's
PDF beschikbaar

Handleiding

Je bekijkt pagina 28 van 32
17 Technical data
Installation and operation manual
28
VAM350~2000J8VEB
Heat reclaim ventilation unit
4P664011-1 – 2021.08
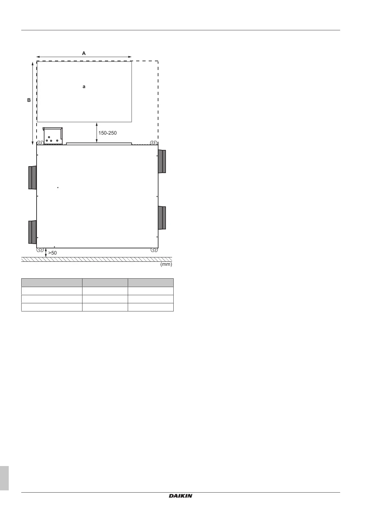
17.2 Service space
>50
a
150-250
(mm)
A
B
a Service space
Models A B
VAM350+500 900mm 675mm
VAM650 1100mm 700mm
VAM800~2000 1100mm 850mm

Bekijk gratis de handleiding van Daikin VAM2000J8VEB, stel vragen en lees de antwoorden op veelvoorkomende problemen, of gebruik onze assistent om sneller informatie in de handleiding te vinden of uitleg te krijgen over specifieke functies.

Productinformatie

MerkDaikin
ModelVAM2000J8VEB
CategorieNiet gecategoriseerd
TaalNederlands
Grootte4596 MB