Handleiding
Je bekijkt pagina 35 van 52

9 Technical data
Installation and operation manual
35
SERHQ020~032BAW1 + SEHVX20~64BAW
Split packaged air-cooled water chiller
4P508019-1D – 2019.11
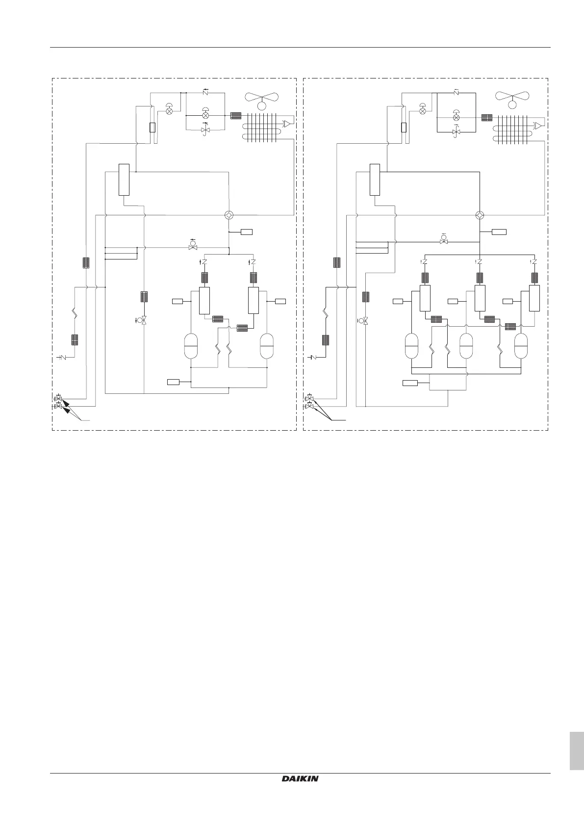
9.3 Piping diagram: Outdoor unit
M
SENPH
HPS
STDINV
SENPL
HPS
sv
sv
M
SENPH
SENPL
sv
sv
HPS HPS HPS
INV STD1 STD2
a
b
b
c
d
f
e
g
h
i
a
a
j
j
k
k
m
l l
m
m
o
n
n
d
d
d
d
p
d
d
d
20 kW
a
b
b
c
d
f
e
g
h
i
aa a
l
o
l l
k
k
m
m m m
d
d
n n
n
d
d
d d d
j
j j
d
p
d
32 kW
a Check valve
b Electronic expansion valve
c Pressure regulating valve
d Filter
e Fan
f Heat exchanger
g Accumulator
h 4-way valve
i High pressure sensor
j High pressure switch
k Solenoid valve
l Compressor
m Capillary tube
n Oil separator
o Low pressure sensor
p Stop valve (with service port on on-site piping side 7.9mm
flare connection)
Bekijk gratis de handleiding van Daikin SEHVX40BAW, stel vragen en lees de antwoorden op veelvoorkomende problemen, of gebruik onze assistent om sneller informatie in de handleiding te vinden of uitleg te krijgen over specifieke functies.
Productinformatie
Merk | Daikin |
Model | SEHVX40BAW |
Categorie | Airco |
Taal | Nederlands |
Grootte | 8378 MB |