Handleiding
Je bekijkt pagina 32 van 40

12 Technical data
Installer reference guide
32
RZAG71~140L7V1B
Split system air conditioners
4P418663-1 – 2016.02
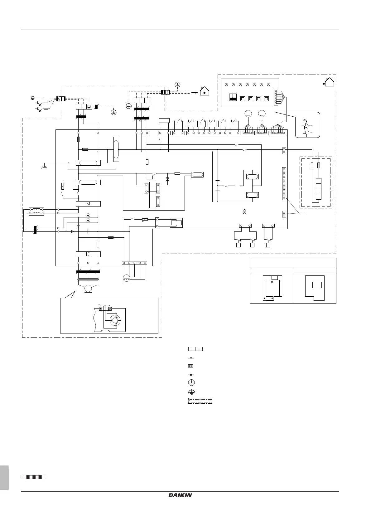
12.6 Wiring diagram: Outdoor unit
The wiring diagram is delivered with the unit, located at the inside of
the service cover.
RZAG71
+
-
220-240 V
1N~ 50 Hz
N
L
L N
X1M
RED BLU
NALA
F2U
F1U
Z6C
N=1
GRN/YLW
Z1C
N=5
X11A X12A X13A X21A
X803A
X5A
X26A
X22A
BLK
WHT
RED
Z3C
N=1
Z2C
N=3
2
3
1
R3T
R1T R6T
R2T R4T R5T
t°t° t°t° t° t°
M M
Y2S
K2R
K14R
K2R
X6A
X28A
A1P
A2P
Y3E
Y1E
(Y1E,Y3E)
Y1E
Y3E
ON
OFF
BS1 BS2 BS3 BS4
X205A
H1P H3P H5P H7P
H2P H4P H6P
2D099152-1
Z1F
Z2F
Z3F
GRN
E1
WHT
BRN
PPL
RED
HR1
HR3
HR4
HR2
Z5C
N=6
C1
V3D
V1T
V2T
V2D
R2
+
RED
WHT BLU
M1C
WV
U
U
V W
MS
M1F
X502A
Z4C
N=4
X25A
K1R
R8T
+t°
Y1S
PS
X804A
X806A
X805A
R6
K15R
C2
C3
TC
RC
X31A
X32A
X77A
S1PH-M
S1PL
S1PH-A
P>
P<
P>
L1R
A1P
X1M
HAP
A2P
F8U
F7U
E1H
HAP
L1R
K10R
K11M
V2R
R7T
F6U
K13R
R4
V1D
R5
X106A
V1R
21
6
8
6
Q1DI
DS1
X1M
+t°
+ -
3~
MS
W
V
U
Electronic component assembly
Position of elements
Rear viewFront view
See note 7
Position of compressor terminal
Notes:
1 Symbols (see below).
2 Colours (see below).
3 This wiring diagram applies only to the outdoor unit.
4 Refer to the wiring diagram sticker (on the back of the service
cover) for how to use the BS1~BS4 and DS1 switches.
5 When operating, do not short-circuit protective devices S1PH
and S1PL.
6 Refer to the service manual for instructions on how to set the
selector switches (DS1). The factory setting of all switches is
OFF.
7 Refer to the combination table and the option manual for how
to connect the wiring to X6A, X28A and X77A.
Symbols:
L Live
N Neutral
Field wiring
Terminal strip
Terminal
Connector
Connection
Protective earth
Noiseless earth
Option
Colours:
BLK Black
BLU Blue
BRN Brown
GRN Green
PPL Purple
RED Red
WHT White
YLW Yellow
Bekijk gratis de handleiding van Daikin RZAG125L7V1B, stel vragen en lees de antwoorden op veelvoorkomende problemen, of gebruik onze assistent om sneller informatie in de handleiding te vinden of uitleg te krijgen over specifieke functies.
Productinformatie
Merk | Daikin |
Model | RZAG125L7V1B |
Categorie | Airco |
Taal | Nederlands |
Grootte | 6272 MB |