Daikin RXYSA8AMY1B handleiding
Handleiding
Je bekijkt pagina 53 van 56

24 Technical data
Installation and operation manual
53
RXYSA8~12AMY1B
VRV 5-S system air conditioner
4P752781-1C – 2024.10
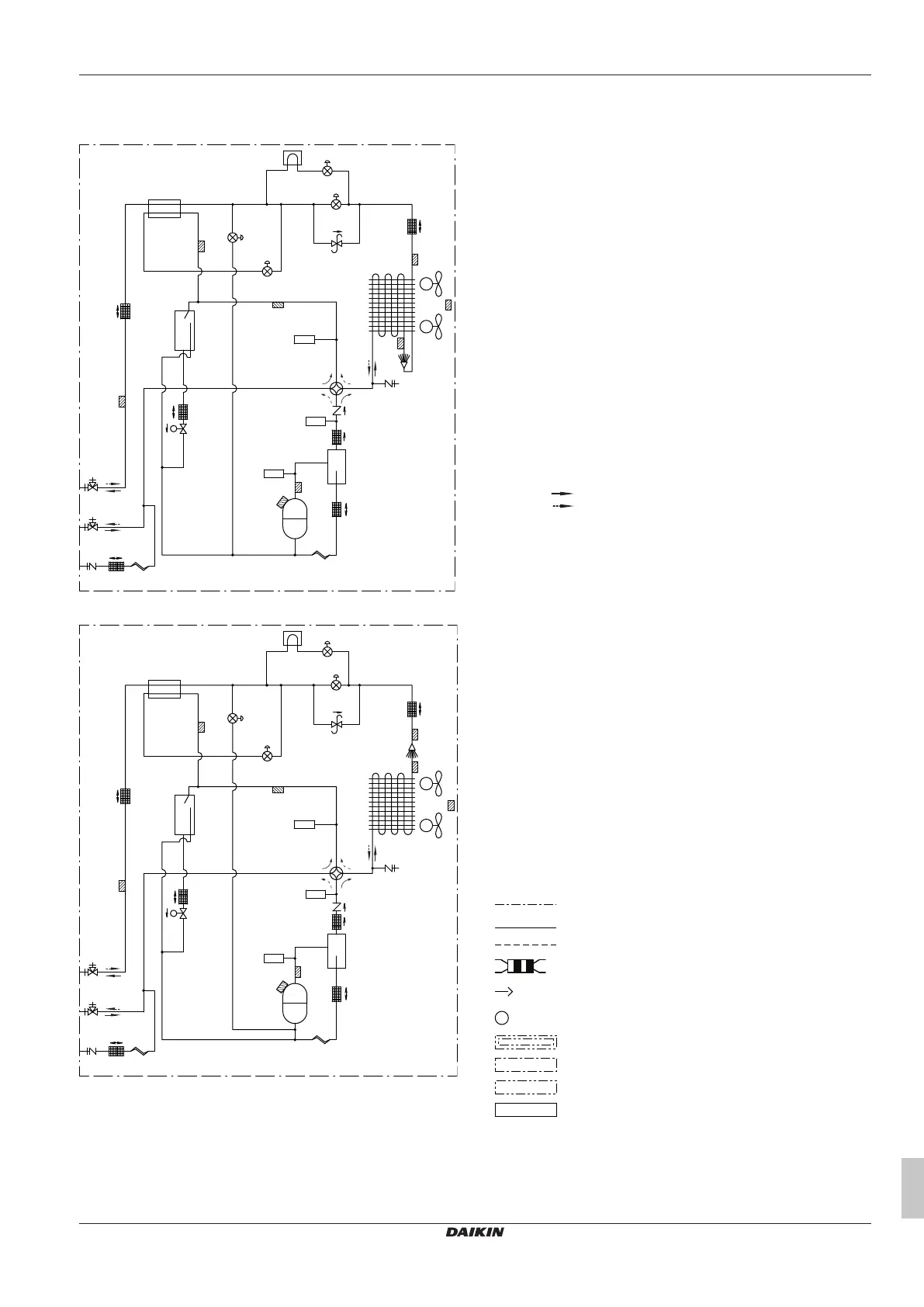
24.2 Piping diagram: Outdoor unit
Piping diagram: 8HP
k
c
d
e
f
l
h
i
Y2S
S1NPL
S1PH
R1T
g
M1F
M2F
R4T
R6T
R7T
a
b
Y3E
Y1E
Y2E
Y4E
Y1S
S1NPH
INV
M1C
R8T
R5T
R3T
R21T
j
j
Piping diagram: 10+12HP
k
c
d
e
f
h
i
Y2S
S1PH
R1T
g
M1F
M2F
R4T
R7T
R6T
a
b
Y3E
Y1E
Y2E
Y4E
Y1S
S1NPH
INV
M1C
R5T
j
j
R8T
R21T
S1NPL
R3T
l
Legend:
a Stop valve (gas)
b Stop valve (liquid)
c Filter (6×)
d Accumulator
e Subcool tube heat exchanger
f Pressure regulating valve
g Heat exchanger
h Service port
i Oil separator
j Capillary tube (2×)
k Charge port
l Heat sink
M1C Compressor
M1F-M2F Fan motor
R1T Thermistor (air)
R3T Thermistor (suction accumulator)
R4T Thermistor (heat exchanger, liquid)
R5T Thermistor (liquid)
R6T Thermistor (subcool heat exchanger, gas)
R7T Thermistor (de-icer)
R8T Thermistor (M1C body)
R21T Thermistor (M1C discharge pipe)
S1NPH High pressure sensor
S1NPL Low pressure sensor
S1PH High pressure switch
Y1E Electronic expansion valve (main)
Y2E Electronic expansion valve (subcool heat exchanger)
Y3E Electronic expansion valve (inverter cooling)
Y4E Electronic expansion valve (liquid injection)
Y1S Solenoid valve (4-way valve)
Y2S Solenoid valve (accumulator oil return)
Cooling
Heating
24.3 Wiring diagram: Outdoor unit
The wiring diagram is delivered with the unit, located at the inside of
the service cover.
Notes:
1 Symbols (see below).
2 Refer to the installation or service manual on how to use the
BS1~BS3 push buttons and DS1~DS2 switches.
3 Do not operate the unit by short-circuiting protection device
S1PH.
4 Refer to the installation manual for indoor-outdoor
transmission F1-F2 wiring.
5 When using the central control system, connect outdoor-
outdoor transmission F1-F2.
6 The capacity of the contact is 220~240VAC – 0.5A. (Rush
current needs 3A or less)
7 Use dry contact for micro-current (1mA or less 12VDC).
Symbols:
X1M Main terminal
Earth wiring
15
Wire number 15
Field wire
Field cable
**
/12.2
Connection ** continues on page 12 column 2
1
Several wiring possibilities
Option
Not mounted in switch box
Wiring depending on model
PCB
Colours:
BLK Black
BLU Blue
BRN Brown
Bekijk gratis de handleiding van Daikin RXYSA8AMY1B, stel vragen en lees de antwoorden op veelvoorkomende problemen, of gebruik onze assistent om sneller informatie in de handleiding te vinden of uitleg te krijgen over specifieke functies.
Productinformatie
| Merk | Daikin |
| Model | RXYSA8AMY1B |
| Categorie | Niet gecategoriseerd |
| Taal | Nederlands |
| Grootte | 9612 MB |







