Curtis 1268 handleiding
Handleiding
Je bekijkt pagina 14 van 66

8
Curtis 1268 Manual, Rev. D
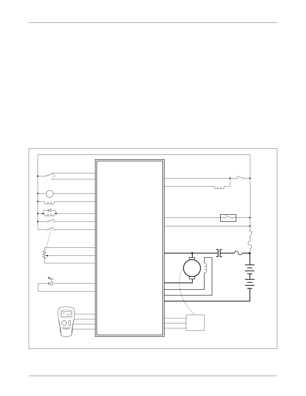
WIRING: Standard Configuration
Figures 3a and 3b show typical wiring. The system can include an electromag
-
netic brake or a WalkAway
™ relay, but not both. Figure 3a shows a system with
an EM brake; Figure 3b shows a system with a WalkAway
™ relay.
Standard Power Wiring
Motor armature winding is straightforward, with the armature’s A1 connection
going to the controller’s B+ bus bar and the armature’s
A2 connection going
to the controller’s M- bus bar.
The motor’s field connections (
F1 and F2) to the controller are less
obvious. The direction of vehicle travel with the forward direction selected
will depend on how the
F1 and F2 connections are made to the controller’s
two field terminals and how the motor shaft is connected to the drive wheels
through the vehicle’s drive train.
Fig. 3a Standard wiring configuration for Curtis 1268 controller,
in an application with an EM brake.
2 — INSTALLATION & WIRING: Controller
1268 CONTROLLER
PEDAL INTERLOCK
BRAKE LIGHT RELAY
J1-20
MODE (M1, M2)
J1-18
REVERSE ALARM
J1-19
EM BRAKE
J1-23
POT HIGH
J1-13
POT WIPER
J1-15
POT LOW
J1-14
THROTTLE POT
A
MAIN
REVERSE
FORWARD
J1-1
KSI
SPEED
SENSOR
J2-4
J2-5
J2-6
BATTERY
RUN/
STORE
SWITCH
(10 A)
B+
GROUND
+15V
M-
INPUT
B-
A1
A2
J3-1
J3-2
J3-3
PROGRAMMER
RX DATA
TX DATA
B-
J3-4
+15V
F1
F2
F1
F2
KEYSWITCH
J1-10
F
R
N
J1-11
J1-17
MAIN CONTACTOR
J1-16
J1-22
LED DRIVER
+ -
J1-2
J1-4
LOGIC ENABLE
LOGIC POWER
CHARGER INTERLOCK
SWITCH
(optional)
J1-8
GROUND
Bekijk gratis de handleiding van Curtis 1268, stel vragen en lees de antwoorden op veelvoorkomende problemen, of gebruik onze assistent om sneller informatie in de handleiding te vinden of uitleg te krijgen over specifieke functies.
Productinformatie
Merk | Curtis |
Model | 1268 |
Categorie | Niet gecategoriseerd |
Taal | Nederlands |
Grootte | 7778 MB |