Handleiding
Je bekijkt pagina 4 van 40

electricista cualificado o técnico de servicio que instale una toma cerca del aparato. El uso de un cable de extensión
puede afectar negativamente al rendimiento de la unidad.
El uso incorrecto del enchufe puesto a tierra puede provocar riesgo de descarga eléctrica. Si el cable de alimentación
está dañado, haga que lo reemplace un centro de servicio autorizado.
Rango de clima
La información sobre el rango de clima del aparato se indica en la placa de características. Allí se indica la temperatura
ambiente (es decir, la temperatura ambiente en la que funciona el aparato) a la que el funcionamiento del aparato es
óptimo (apropiado).
Rango de clima Temperatura ambiente permitida
SN de +10 °C a +32 °C
N de +16 °C a +32 °C
ST de +16 °C a +38 °C
T de +16 °C a +43 °C
Nota:Teniendo en cuenta los valores límite del rango de temperatura ambiente para las clases de clima para las que está
diseñado el frigorífico y el hecho de que las temperaturas internas pueden verse afectadas por factores como la ubicación
del aparato, la temperatura ambiente y la frecuencia con que se abra la puerta, quizá deba modificarse el ajuste de
cualquier dispositivo de control de la temperatura para permitir que estos factores puedan variarse y emitirse un aviso, si
es apropiado.
Nota: Cuando se opere en un entorno diferente al tipo de clima especificado (es decir, fuera del rango de
temperatura ambiente indicado), quizá el aparato no pueda mantener las temperaturas convenientes en los
compartimentos.
Cerraduras
Si su frigorífico tiene cerradura, conserve la llave en un lugar alejado del aparato, para evitar que los niños puedan
quedar atrapados. Cuando elimine un frigorífico antiguo, rompa las cerraduras o los pestillos antiguos como medida de
seguridad.
Sin freón
En el frigorífico se utilizan refrigerante sin freón (R600a) y material aislante de espuma (ciclopentano) que es ecológico,
que no causa daños en la capa de ozono y tiene muy poco impacto sobre el calentamiento global. El R600a es inflamable
y está sellado en un sistema de refrigeración, sin fugas durante el uso normal. Pero si hay fugas de refrigerante porque el
circuito está dañado, debe asegurarse de mantener el aparato apartado de las llamas abiertas y abrir las ventanas para
ventilar lo antes posible.
II. Características del producto
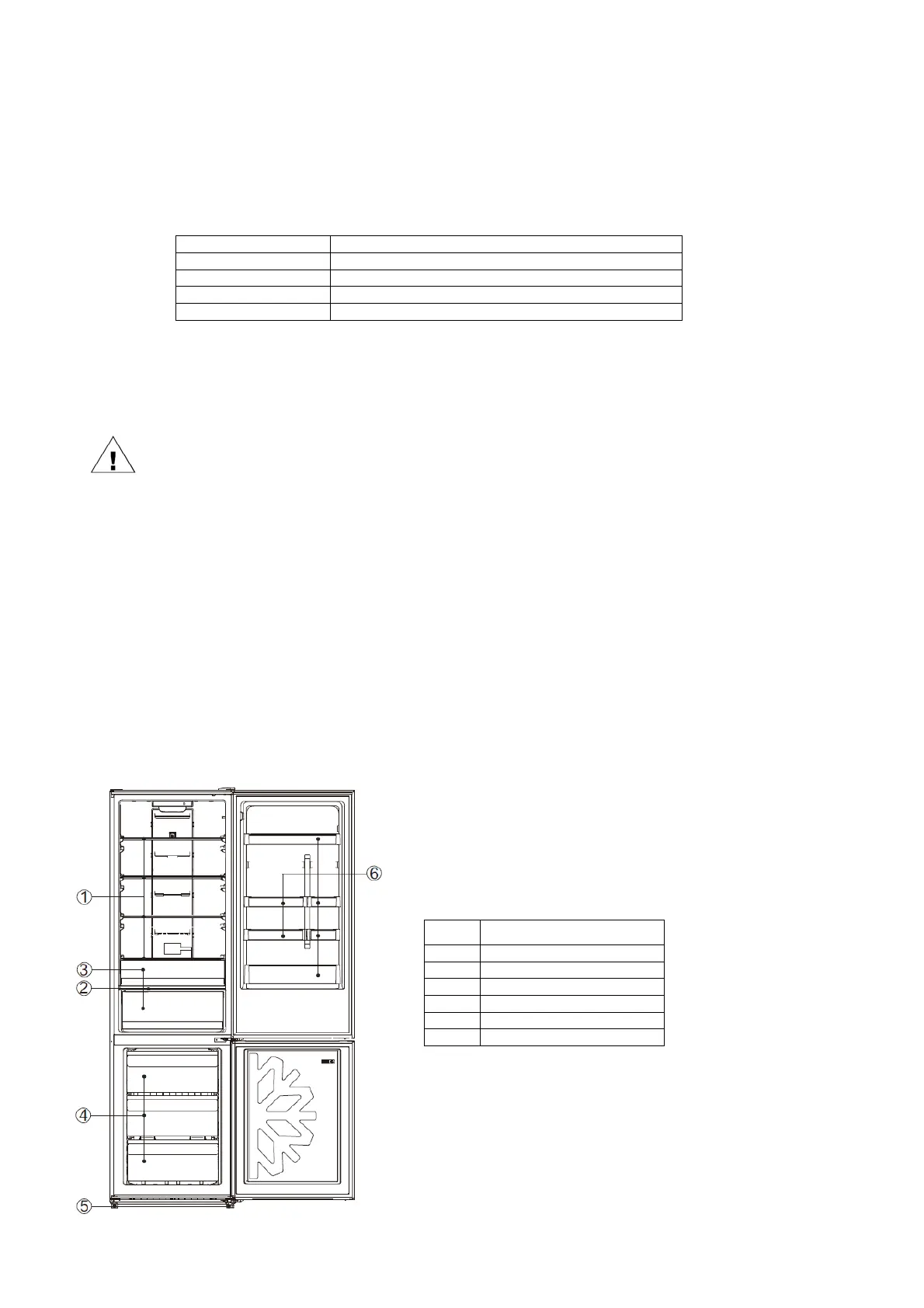
Nombre de las partes
No Descripción
1 Estantes del frigorífico
2 Tapa del verdulero
3 Verdulero
4 Cajones del congelador
5 Patas ajustables
6 Estantes de puerta
Bekijk gratis de handleiding van Corberó CCGLML201725NFN, stel vragen en lees de antwoorden op veelvoorkomende problemen, of gebruik onze assistent om sneller informatie in de handleiding te vinden of uitleg te krijgen over specifieke functies.
Productinformatie
Merk | Corberó |
Model | CCGLML201725NFN |
Categorie | Koelkast |
Taal | Nederlands |
Grootte | 5667 MB |