Handleiding
Je bekijkt pagina 50 van 58

IT - 6
4.3 Collegamento aeraulico
Nessun collegamento deve esercitare sollecitazioni meccaniche sulla centrale
Utilizzare dei manicotti flessibili per l'aspirazione e la mandata
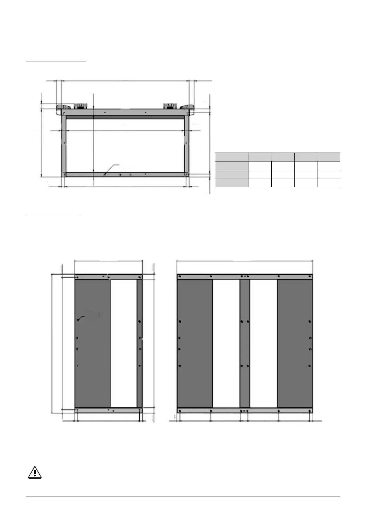
Aspirazione o mandata:
Dimensione A B C D
025 750 694 3 238
040 1310 1254 6 212.3
060 1880 1824 8 230.5
Cella di miscelazione:
4.4 Collegamento idraulico
Rispettare il senso dei collegamenti idraulici
Assicurarsi che l'acqua di condensa sia correttamente scaricata
Il deterioramento di una batteria dovuto a congelamento non è di responsabilità del fabbricante.
28
28
18
400 31
34428 28
A 28
28
18
18 18
2 x 182
B
∅ 4,2
C x D
2 vie 3 vie
400
800
18
36
18218218 182 182 18
800
400
28
18
2 x 182
28
18C x D
A
∅ 4,2
B
∅ 4,2
Bekijk gratis de handleiding van Carrier 39CQ, stel vragen en lees de antwoorden op veelvoorkomende problemen, of gebruik onze assistent om sneller informatie in de handleiding te vinden of uitleg te krijgen over specifieke functies.
Productinformatie
Merk | Carrier |
Model | 39CQ |
Categorie | Airco |
Taal | Nederlands |
Grootte | 9883 MB |