Handleiding
Je bekijkt pagina 42 van 58

DE - 12
Ventilatoren:
- Die Versorgungsspannung sowie die Stärke der Sicherungen entsprechend der Stromaufnahme der verschiedenen Elemente
prüfen.
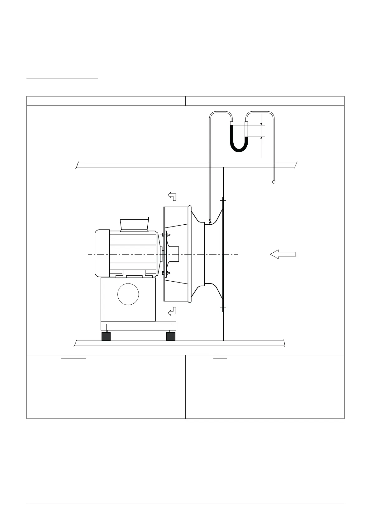
- Prüfen, ob die Masse angeschlossen ist und das Rad frei dreht.
- Den Luftvolumenstrom und den verfügbaren Druck überprüfen
Berechnung der Luftmenge:
Frei laufendes Rad mit Asynchronmotor Frei laufendes Rad mit EC-Motor
3
Q K
=
√
2
—
ρ
. (ΔP)
x Nombre de GMV
Q: Luftvolumenstrom (m
3
/h)
ρ: Dichte der Luft (kg/m
3
)
P: Druck (Pa)
K = 60 (bei Ventilator NPL 280)
Q K
=
√
(ΔP) x Nombre de GMV
Q: Luftvolumenstrom (m
3
/h)
ρ: Dichte der Luft (kg/m
3
)
P: Druck (Pa)
K = 93 (bei Ventilator K3G 280)
Bekijk gratis de handleiding van Carrier 39CQ, stel vragen en lees de antwoorden op veelvoorkomende problemen, of gebruik onze assistent om sneller informatie in de handleiding te vinden of uitleg te krijgen over specifieke functies.
Productinformatie
Merk | Carrier |
Model | 39CQ |
Categorie | Airco |
Taal | Nederlands |
Grootte | 9883 MB |