Carel Hecu handleiding
Handleiding
Je bekijkt pagina 15 van 60

15
Hecu +0300023EN rel. 1.2 - 14.12.2021
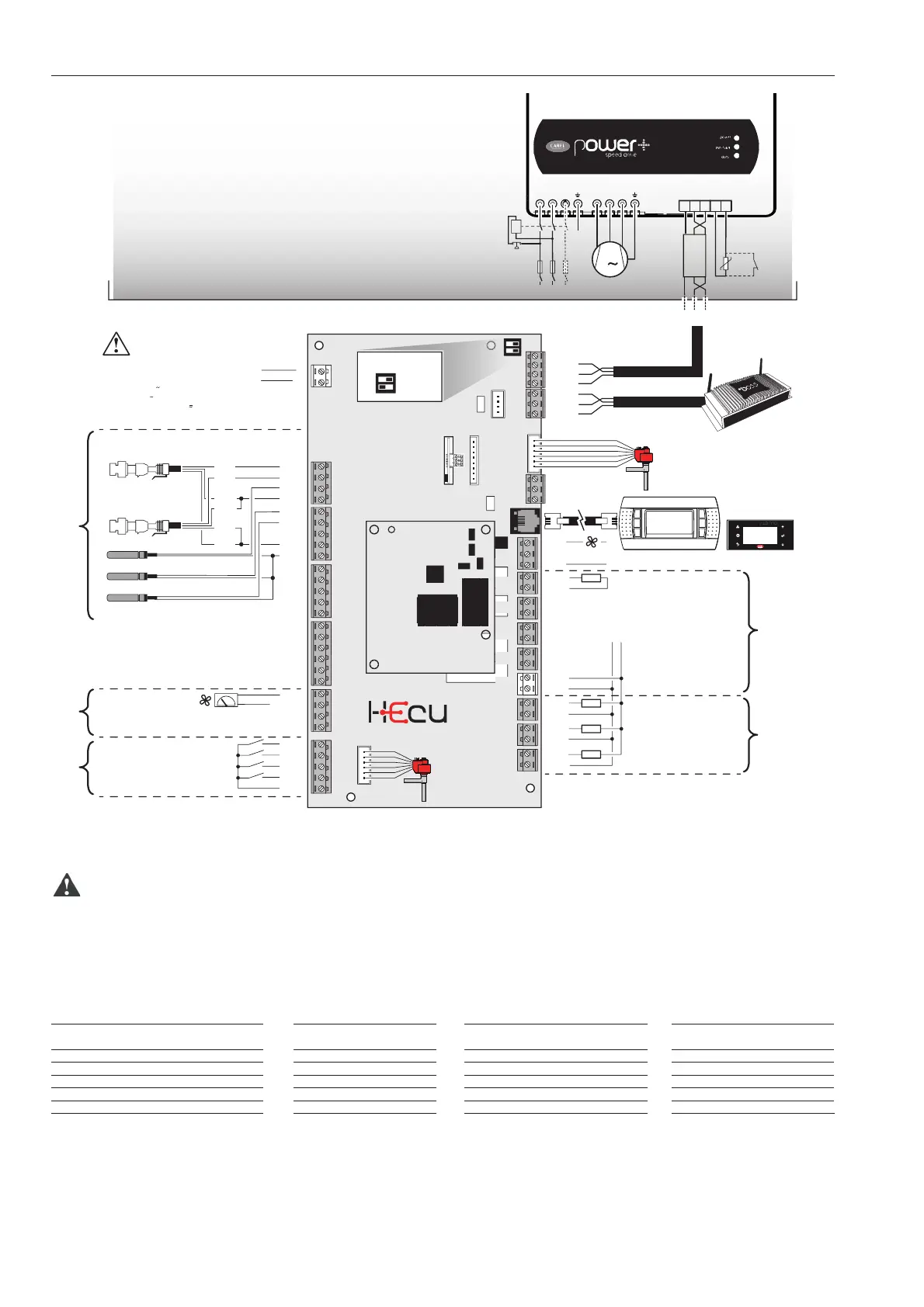
2.8 General connection diagram
PAY ATTENTION
TO THE POWERSUPPLY!
L N
Fan 1
pGDe Terminal pLD PRO
Liquid/Vapour Injection
(Unipolar valve ONLY)
boss
Analog Input
B1
B2
B3
B4
B5
Power supply
Analog Output (0-10V)
Digital Input (free voltage)
RS485 serial card
to connect
supervisory system
Discharge temp. probe (CAREL NTC-HT)
Liquid temp. probe (CAREL NTC)
Suction temp. probe (CAREL NTC)
Digital Output
(POWERED)
Digital Output
(NOT POWERED)
Oil Injection
(Unipolar
valve ONLY)
Suction press. probe
(*)
White
Black
Green
Discharge press. probe
(*)
0...10 Vdc Fan
White
Black
Green
L
N
J1
J9
J11
J12
J14
J16
J17
J18
J19
J20
J21
J22
J23
J24
J10
J13
J2
J3
J4
J5
J6
J8
J7
HECU configuration
ON
1
2
OFF
DIP1=ON
DIP2=OFF
G
G0
Out2
C2
Out3
C2
Out4
C2
Out5
C2
C2
V-IN
N06
C6
N07
C7
N08
C8
U8
U9
U10
+Vdc
+5VR
GND
RX-/TX-
RX+/TX+
GND
RX-/TX-
RX+/TX+
GND
Vout
RX-/TX-
RX+/TX+
GND
N01
NC1
C1
U4
U5
+Vdc
+5VR
GND
U6
U7
+Vdc
+5VR
GND
DI1
DI2
DI3
DI4
GND
U1
U2
U3
GND
GND
(A01) Y1
(A02) Y2
(A03) Y3
- for ECU70*: 230 Vac 50/60 Hz, +10%/-15%;
- for ECU80*: 24 Vac +10%/-15% 50/60 Hz,
28 to 36 Vdc +10%/-15%;
to power+, MPXPRO, Ultracella
L2/N L3 U V W
L1/L
PTC Klixon
M
3
Fuse or
HP switch
MCB
L
K
N
PE
GND STO
+
-
Fig. 2.l
(*) The 4-20 mA pressure probes are connected by attaching white to Ux and black to +Vdc, green is not used
Caution: if the PEC version inverters (with class B software structure) are not used, the thermal protection devices for overload and high pressure must
act directly on the compressor actuator, and must therefore be wired in series with the compressor contactor coil control. For the types of cable to be used,
see the power+ manual ( +0300094EN).
I/O selection tables (example for MT unit)
Analogue inputs Digital inputs Analogue outputs Digital outputs
Suction temperature High pressure alarm Modulating fans Fan 1
Discharge temperature Low pressure alarm Fan 2
Outside temperature BLDC compressor alarm Equalising solenoid valve
Liquid temperature Fan alarm
Suction pressure Remote ON/OFF
Condensing pressure
Bekijk gratis de handleiding van Carel Hecu, stel vragen en lees de antwoorden op veelvoorkomende problemen, of gebruik onze assistent om sneller informatie in de handleiding te vinden of uitleg te krijgen over specifieke functies.
Productinformatie
| Merk | Carel |
| Model | Hecu |
| Categorie | Niet gecategoriseerd |
| Taal | Nederlands |
| Grootte | 10743 MB |



