Café GXSHC40N handleiding
Handleiding
Je bekijkt pagina 98 van 132

10
REQUISITOS DE PLOMERÍA INTERIOR/
EXTERIOR
Siempre instale una válvula de desviación simple
(provista), como se muestra en la Figura 4, o, si lo
desea, puede adquirir y ensamblar piezas para un
sistema de desviación de 3 válvulas (no incluido),
como se muestra en la Figura 5. Las válvulas
de desviación le permiten cerrar el agua en el
suavizante para el mantenimiento si es necesario,
pero aún tener agua en las tuberías de la casa.
Los accesorios para tubería deberán ser como
mínimo de 1/2”. Uso:
Tubería de cobre
Tubería roscada
Tubería PEX (Polietileno Entrecruzado)
Tubería de plástico de CPVC
Otra tubería aprobada para uso con agua potable
IMPORTANTE: No suelde con la tubería adjunta
a los adaptadores de instalación y a la válvula de
desviación simple. El calor de la soldadura dañará
los adaptadores y la válvula.
ADVERTENCIA
Una tubería de
cobre o galvanizada de agua fría podría usarse
para conectar a tierra los tomacorrientes
eléctricos en la casa. No mantener esta conexión
a tierra podría resultar en descargas eléctricas
peligrosas. Si la tubería de agua fría es usada
para conectar a tierra los tomacorrientes, por
favor refiérase a la sección de Cómo instalar el
cable a tierra antes de cortar la tubería.
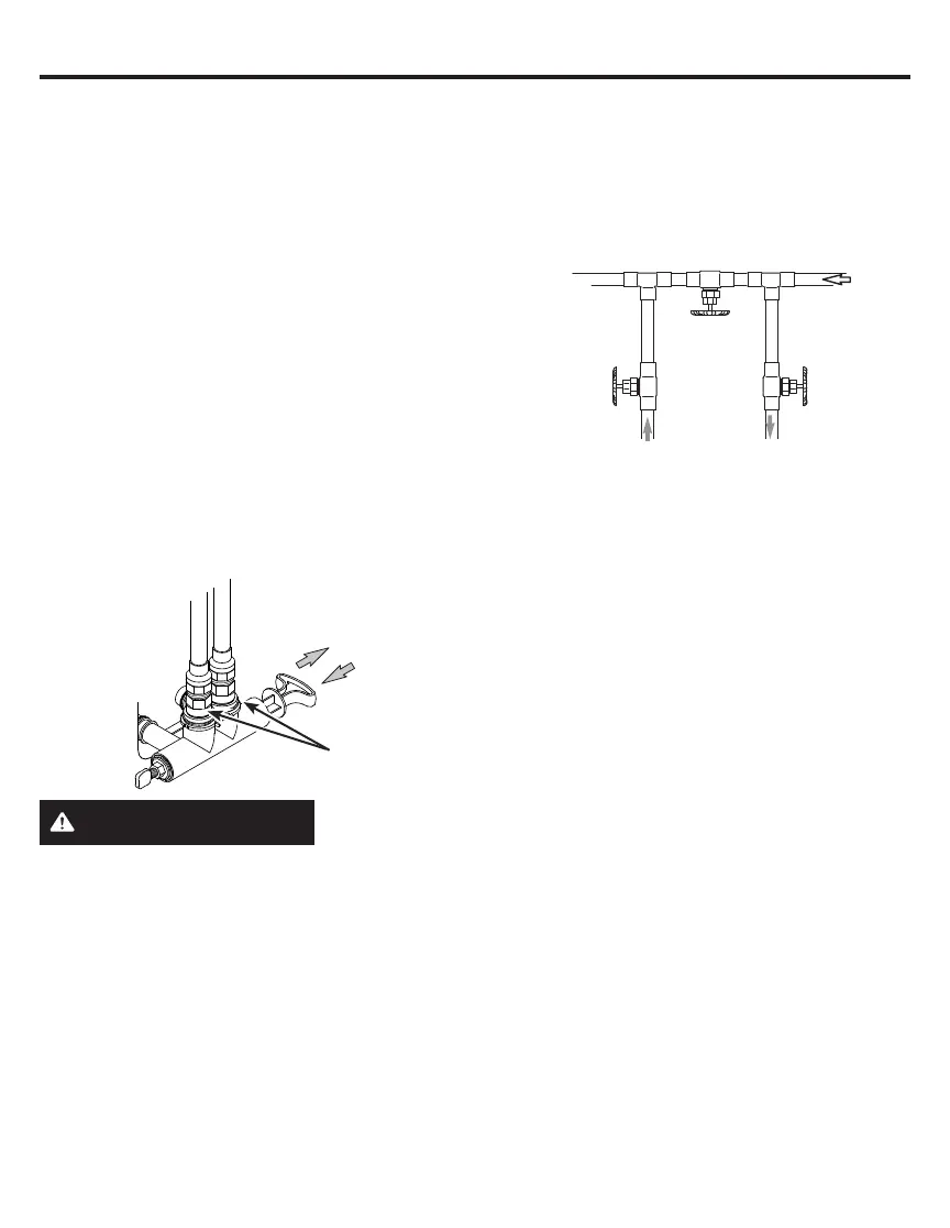
3-SISTEMA DE DESVIACIÓN CON
VÁLVULA
Para el servicio con agua suave: Abra las válvulas
internas y externas y cierre la válvula de desviación.
Para desviar agua dura: Cierre las válvulas internas
y externas y abra la válvula de desviación.
3 DESVIACIÓN CON VÁLVULA
Válvula del
Tubo de
Desviación
Válvula de
Salida
Válvula
de
Entrada
Desde el Suavizante
de Agua
Al Suavizante
de Agua
Figura 5
Requisitos de Instalación
VÁLVULA DE DESVIACIÓN SIMPLE
Empuje hacia afuera
para el “Servicio” (Agua
suave)
Empuje hacia
adentro
para la
“Desviación
”
Figura 4
Adaptadores para
la instalación
Bekijk gratis de handleiding van Café GXSHC40N, stel vragen en lees de antwoorden op veelvoorkomende problemen, of gebruik onze assistent om sneller informatie in de handleiding te vinden of uitleg te krijgen over specifieke functies.
Productinformatie
| Merk | Café |
| Model | GXSHC40N |
| Categorie | Niet gecategoriseerd |
| Taal | Nederlands |
| Grootte | 13228 MB |

