Handleiding
Je bekijkt pagina 7 van 36

KOOK60 - KOOK80 - KOOK90 - SMART60 - SMART80 - FRIDA 80
7
4 COMBUSTION AIR
4.1 AIR INLET
It is mandatory to provide an adequate external air inlet that supplies the combustion air required for the product to work properly.
The flow of air between the outside and the installation room can take place with a free air inlet or by channelling the air directly
to the outside (***).
The free air inlet must be:
• be made at floor level and in any case not higher than the height of the appliance;
• always be protected with an outer grille and in such a way that it cannot be obstructed by any object;
• have a minimum total free area of 80 cm
2
(net of the grille);
The presence of other suction devices (e.g.: vmc, electric fan for stale air extraction, kitchen hood, other stoves, etc.), in the same
room,or in communicating rooms of the same housing unit, could cause negative pressure in the room. In this case, with the
exception of sealed installations, one must verify that, with all the equipment on, no more than 4 Pa of negative pressure is created
inside the installation room with respect to the outside. If necessary, increase the air inlet section.
It is possible to duct the air required for combustion to the outside by connecting the external air inlet directly with the combustion
air inlet which is usually found on the back of the appliance.
The external ducted air vents must be:
• made close to the floor and anyway not higher than the appliance
• protected by a grille that guarantees a clear surface equal to the cross-section of the duct and made so that it cannot be ob-
structed by any object
• The air vent can be made directly on a wall of the installation room communicating with the outside, or indirectly in adjacent
rooms that permanently communicate with the installation room, according to that set forth by standards in force.
The duct must comply with the following dimensions (each 90° bend is equivalent to one linear metre):
(***) In the event the combustion air is ducted on unsealed products, still verify that no more than 4 Pa of negative pressure is created
inside the installation room with respect to the outside, otherwise provide for an additional air intake in the room.
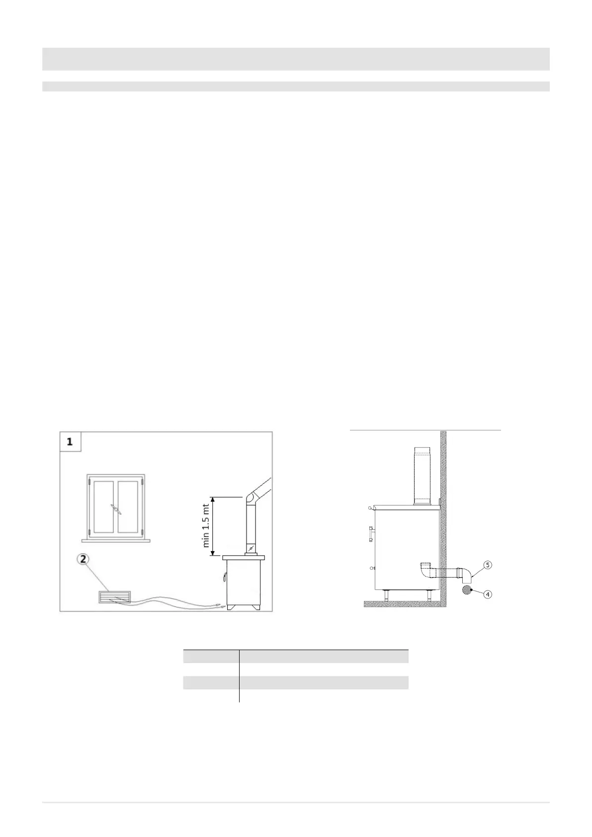
Fig. 6 - Direct air inow Fig. 7 - installation
LEGEND Fig. 6|Fig. 7
1 Room to ventilate
2 External air inlet
4 Shield grid
5 Curve inlet to turn downwards
Bekijk gratis de handleiding van Cadel Kook 80, stel vragen en lees de antwoorden op veelvoorkomende problemen, of gebruik onze assistent om sneller informatie in de handleiding te vinden of uitleg te krijgen over specifieke functies.
Productinformatie
Merk | Cadel |
Model | Kook 80 |
Categorie | Fornuis |
Taal | Nederlands |
Grootte | 10998 MB |
Caratteristiche Prodotto
Apparaatplaatsing | Vrijstaand |
Kleur van het product | Anthracite, Stainless steel |
Ingebouwd display | Nee |
Gewicht | 126000 g |
Breedte | 800 mm |