Handleiding
Je bekijkt pagina 52 van 63

INSTRUCCIONES DE INSTALACIÓN, USO Y CUIDADO
INSTALACIÓN
10
PREPARACIÓN DEL GABINETE (cont)
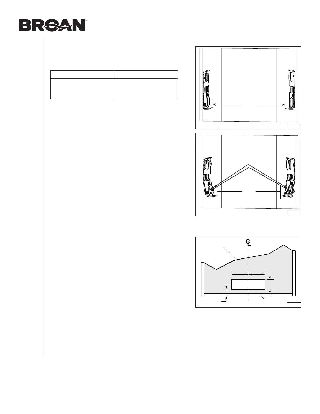
7. Medir la distancia entre ambos bordes inferiores de los
soportes (F) (FIG. 13). La tabla siguiente indica la distancia
adecuada.
borDe estrecHo borDe aMplio
F
De 19-3/8 pulg.
a < 19-9/16 pulg.
F
De 19-9/16 pulg.
a 19-13/16 pulg.
Si la distancia medida debe acortarse, atornille dos
tornillos no. 8-32 x 1/4 pulg. en cada orificio en relieve
inferiores de los soportes del gabinete; esto doblará
ligeramente la parte inferior de los soportes (FIG. 14).
Atornille ambos soportes para obtener la distancia
adecuada.
5¼"5¼"
3½"
3/4"
HH0318A
FIG. 15
PARED TRASERA
DEL GABINETE
BASE DEL GABINETE
nstalación con salida horizontal solaMente
Esta campana empotrable se entrega de fábrica con una
evacuación vertical; sin embargo, es posible cambiar por
una evacuación horizontal (conducto de 3¼ pulg. x 10 pulg.
solamente).
8. Corte el orificio para la salida horizontal a través de la pared
trasera del gabinete usando las dimensiones indicadas.
(FIG. 15).
F
HD1376
FIG. 13
F
HD1377
FIG. 14
Tornillos en orificios
inferiores en relieve
Bekijk gratis de handleiding van Broan PMA400SS, stel vragen en lees de antwoorden op veelvoorkomende problemen, of gebruik onze assistent om sneller informatie in de handleiding te vinden of uitleg te krijgen over specifieke functies.
Productinformatie
| Merk | Broan |
| Model | PMA400SS |
| Categorie | Afzuigkap |
| Taal | Nederlands |
| Grootte | 8839 MB |







