Handleiding
Je bekijkt pagina 5 van 20

5
1. TECHNICAL DATA (CONT’D)
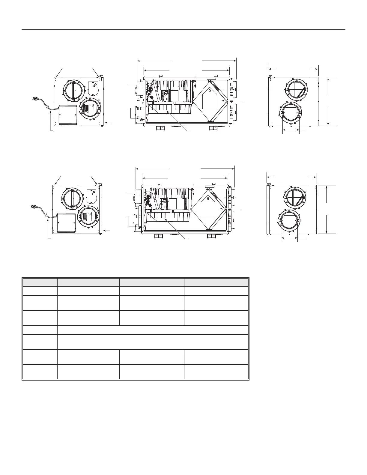
1.4 DIMENSIONS
1.5 SPECIFICATIONS
MODEL HRV150S HRV190S ERV180S
W
EIGHT 65 LB. 65 LB.76 LB.
PORT
DIAMETER
6˝ 6˝ 6˝
D
RAIN
DIAMETER
1/2˝ 1/2˝ 1/2˝
I
NSTALLATION CHAINS AND SPRINGS (PROVIDED WITH THE UNIT)
M
OTOR
SPEED
HIGH AND LOW SPEED FACTORY SET (OPTIONAL INCREASED LOW SPEED)
E
LECTRICAL
SUPPLY
120 V, 60 HZ 120 V, 60 HZ 120 V, 60 HZ
POWER
C
ONSUMPTION
160 WATTS 195 WATTS 200 WATTS
17”
(432 mm)
17¼” (438 mm)
6”
(152 mm)
Power Cord
36” (914 mm)
Door
30¼” (768 mm)
35” (891 mm)
Terminal
Block
Location
Blower
Assembly
Motorized
Damper
Hooks Location
for Hanging Chains
Heat
Recovery
Core
VK0077A
17”
(432 mm)
17¼” (438 mm)
6”
(152 mm)
Door
34” (864 mm)
39” (991 mm)
Blower
Assembly
Hooks Location
for Hanging Chains
Energy
Recovery
Core
VK0078A
Terminal
Block
Location
Motorized
Damper
Power Cord
36” (914 mm)
1.4.1 HRV150S AND HRV190S
1.4.2 ERV180S
Bekijk gratis de handleiding van Broan HRV190S, stel vragen en lees de antwoorden op veelvoorkomende problemen, of gebruik onze assistent om sneller informatie in de handleiding te vinden of uitleg te krijgen over specifieke functies.
Productinformatie
Merk | Broan |
Model | HRV190S |
Categorie | Airco |
Taal | Nederlands |
Grootte | 3032 MB |