Handleiding
Je bekijkt pagina 11 van 36

11
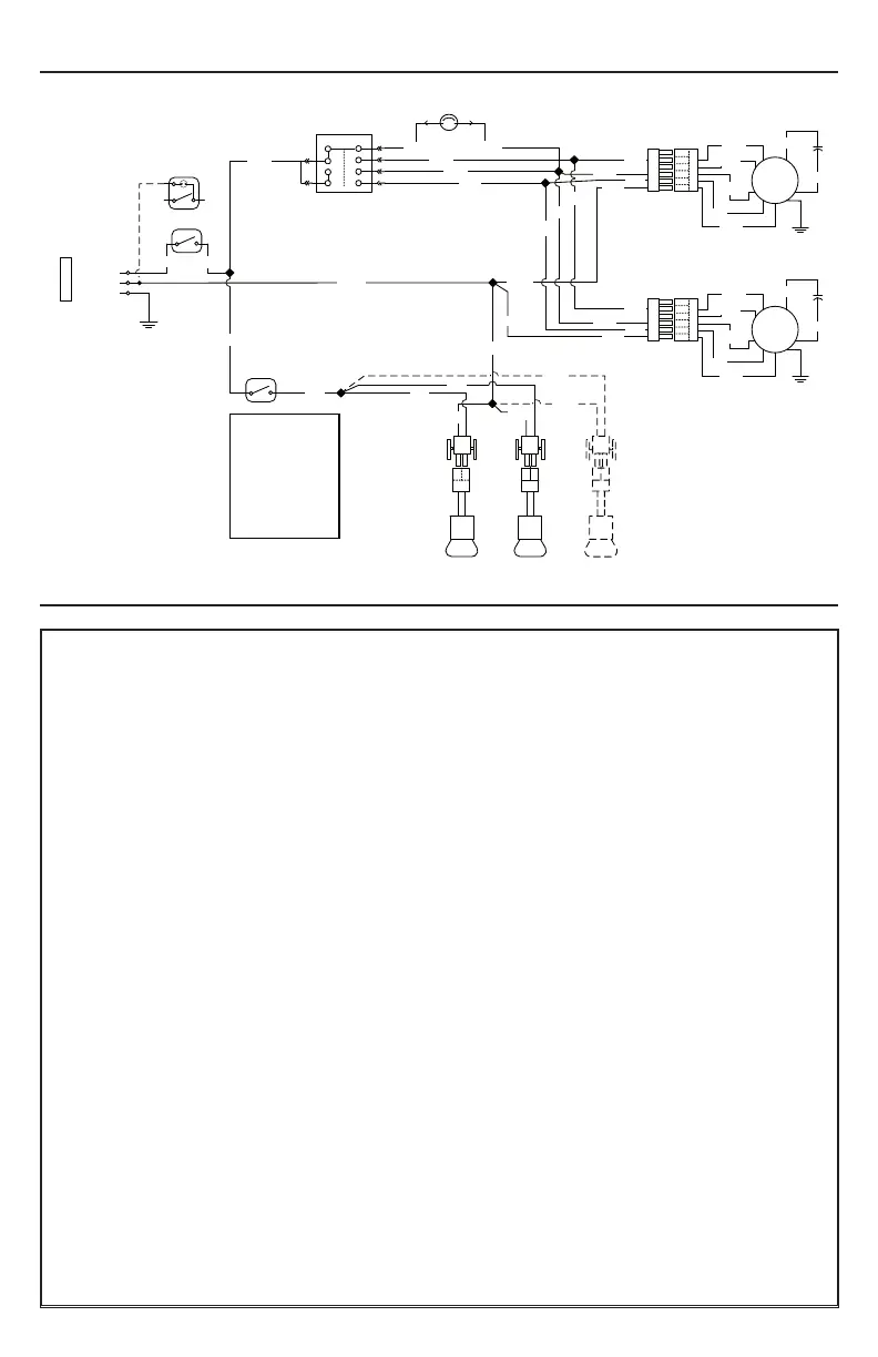
15. WIRING DIAGRAM
16. WARRANTY
ONE YEAR LIMITED WARRANTY FOR BROAN ELITE PRODUCTS
Broan-NuTone LLC (Broan-NuTone) warrants to the original consumer purchaser of Broan Elite products that
such products will be free from defects in materials or workmanship for a period of one year from the date
of original purchase. THERE ARE NO OTHER WARRANTIES, EXPRESS OR IMPLIED, INCLUDING, BUT
NOT LIMITED TO, IMPLIED WARRANTIES OR MERCHANTABILITY OR FITNESS FOR A PARTICULAR
PURPOSE.
During this one-year period, Broan-NuTone will, at its option, repair or replace, without charge, any product
or part which is found to be defective under normal use and service.
THIS WARRANTY DOES NOT EXTEND TO FLUORESCENT LAMP STARTERS, TUBES, HALOGEN
AND INCANDESCENT BULBS, FUSE, FILTERS, DUCTS, ROOF CAPS, WALL CAPS AND OTHER
ACCESSORIES FOR DUCTING. This warranty does not cover (a) normal maintenance and service or (b)
any products or parts which have been subject to misuse, negligence, accident, improper maintenance or
repair (other than by Broan-NuTone), faulty installation or installation contrary to recommended installation
instructions.
The duration of any implied warranty is limited to the one-year period as specified for the express warranty.
Some states or provinces do not allow limitation on how long an implied warranty lasts, so the above limitation
may not apply to you.
BROAN-NUTONE’S OBLIGATION TO REPAIR OR REPLACE, AT BROAN-NUTONE’S OPTION, SHALL
BE THE PURCHASER’S SOLE AND EXCLUSIVE REMEDY UNDER THIS WARRANTY. BROAN-NUTONE
SHALL NOT BE LIABLE FOR INCIDENTAL, CONSEQUENTIAL OR SPECIAL DAMAGES ARISING OUT
OF OR IN CONNECTION WITH PRODUCT USE OR PERFORMANCE. Some states or provinces do not
allow the exclusion or limitation of incidental or consequential damages, so the above limitation or exclusion
may not apply to you.
This warranty gives you specific legal rights, and you may also have other rights, which vary from state to
state or province to another. This warranty supersedes all prior warranties.
To qualify for warranty service, you must (a) notify Broan-NuTone at one of the addresses or telephone
number stated below, (b) give the model number and part identification and (c) describe the nature of any
defect in the product or part. At the time of requesting warranty service, you must present evidence of the
original purchase date.
USA - Broan-NuTone LLC; 926 W. State Street, Hartford, Wisconsin 53027 www.broan.com 800-558-1711
Canada - Venmar Ventilation ULC; 550 Lemire Blvd., Drummondville, QC J2C 7W9 www.broan.ca 877-896-1119
LINE
NEUTRAL
GROUND
120 VAC
HE0137A
M
BLU
WHT
ORA
BLK
RED
GRY
BRN
M
BLU
WHT
ORA
BLK
RED
GRY
BRN
COLOR CODE
BLK BLACK
BLU BLUE
BRN BROWN
GRY GREY
ORA ORANGE
RED RED
WHT WHITE
YEL YELLOW
HEAT SENTRY
THERMOSTAT
RED RED
BLU
ORA
BLK
BLK
BLK
YEL
LAMP
SWITCH
MAIN SWITCH
MAIN SWITCH
OR
BLK BLK
BLK
WHT
WHT
WHT
LAMP LAMP
LAMP
WHT
WHT
WHT
WHT
YEL
YEL
YEL
A
B
1
2
3
4
BLU
ORA
BLK
BLU
BLU
WHT
WHT
BLK
BLK
ORA
ORA
OFF
Bekijk gratis de handleiding van Broan Elite EPD6142SS, stel vragen en lees de antwoorden op veelvoorkomende problemen, of gebruik onze assistent om sneller informatie in de handleiding te vinden of uitleg te krijgen over specifieke functies.
Productinformatie
| Merk | Broan |
| Model | Elite EPD6142SS |
| Categorie | Afzuigkap |
| Taal | Nederlands |
| Grootte | 4887 MB |







