Beverage-Air WTRCS72HC-76 handleiding
Handleiding
Je bekijkt pagina 25 van 28

User Manual for WTRCS 48" - 112" Refrigerators Beverage-Air
Rev. 04/25 Beverage-Air 25
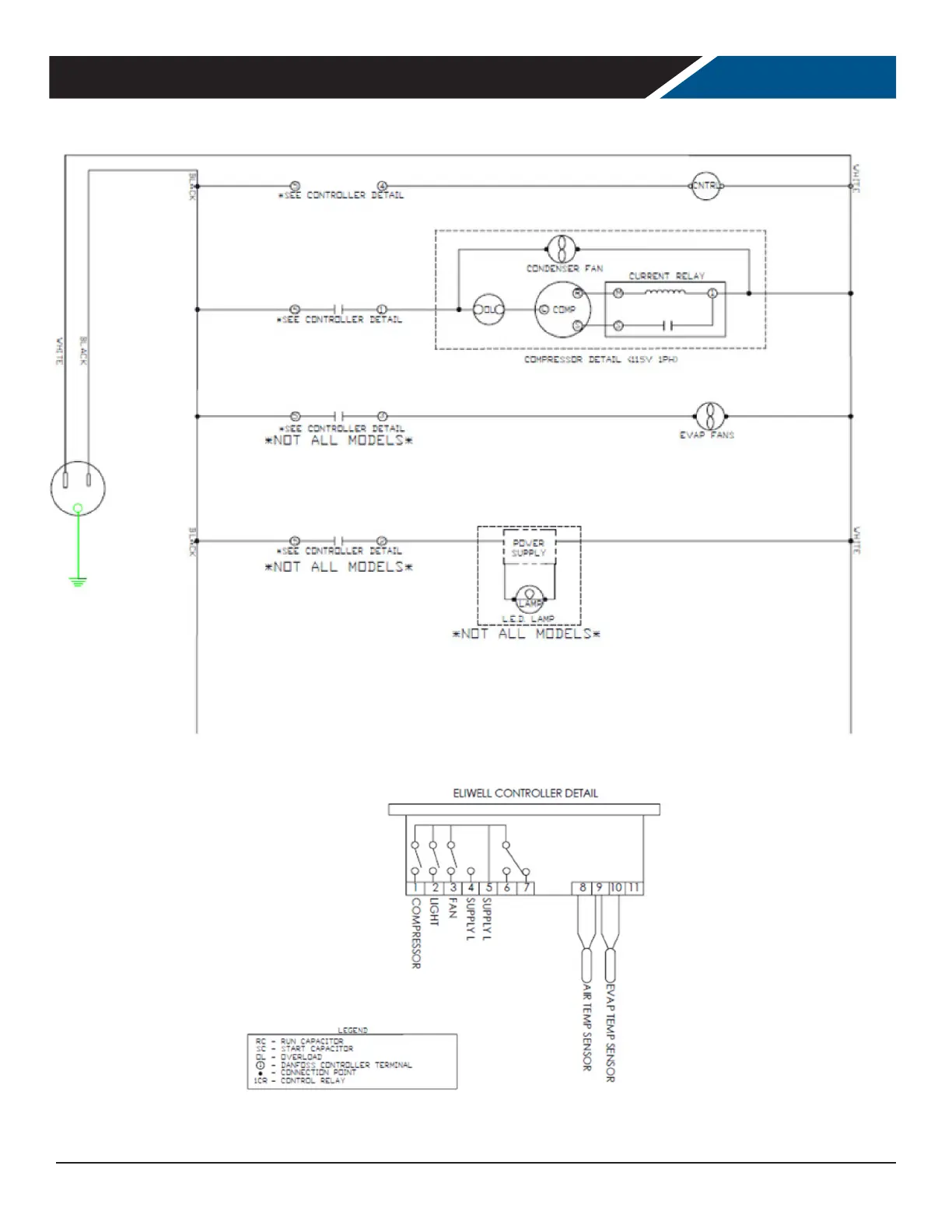
FOR THE SERVICE TECH - WIRING DIAGRAM - ELIWELL CONTROLLER
0123ÿ567869ÿ3ÿÿ22ÿ299ÿ2323631ÿ223623
ÿ !"#"$%&"'()$*+
,-.ÿ012ÿ32.4562ÿ0261ÿ7ÿ85.59:ÿ;5<:.<=ÿ2>582>>ÿ6-90.->>2.
Bekijk gratis de handleiding van Beverage-Air WTRCS72HC-76, stel vragen en lees de antwoorden op veelvoorkomende problemen, of gebruik onze assistent om sneller informatie in de handleiding te vinden of uitleg te krijgen over specifieke functies.
Productinformatie
| Merk | Beverage-Air |
| Model | WTRCS72HC-76 |
| Categorie | Niet gecategoriseerd |
| Taal | Nederlands |
| Grootte | 4037 MB |







