Beverage-Air UCRD67AHC-4 handleiding
Handleiding
Je bekijkt pagina 27 van 31

User Manual for UCR Refrigerators Beverage-Air
Rev. 04/25 Beverage-Air 27
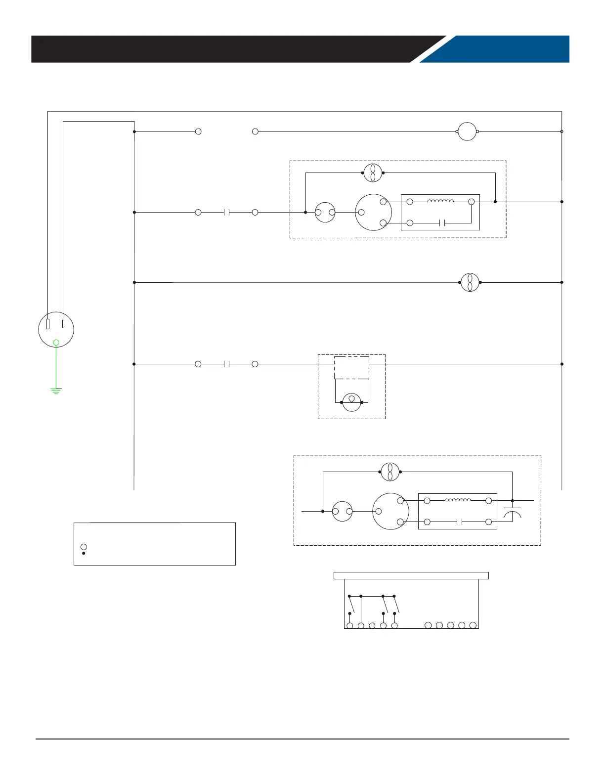
FOR THE SERVICE TECH - WIRING DIAGRAM DANFOSS CONTROLLER
WHITE
2
1
BLACK
EVAP FANS
*SEE CONTROLLER DETAIL
2
3
*SEE CONTROLLER DETAIL
WHITE
BLACK
BLACK
WHITE
COMPRESSOR DETAIL (115V 1PH)
COMP
CONDENSER FAN
C
OL
R
S
S
CURRENT RELAY
1
M
COMPRESSOR DETAIL SOME MODELS
CURRENT RELAY
2
COMP
CONDENSER FAN
C
R
S
S
M
OL
1
S.C.
1
2
3 4
S2
DANFOSS CONTROLLER DETAIL
COMPRESSOR
SUPPLY-L
SUPPLY-N
5
LIGHT (NOT ALL MODELS)
S1
S3 S4
DI
LEGEND
RC - RUN CAPACITOR
SC - START CAPACITOR
OL - OVERLOAD
- DANFOSS CONTROLLER TERMINAL
- CONNECTION POINT
- CONTROL RELAY
1
1CR
AIR SENSOR
2
4
*SEE CONTROLLER DETAIL
POWER
SUPPLY
LAMP
L.E.D. LAMP
*NOT ALL MODELS*
*NOT ALL MODELS*
EVAP SENSOR (NOT ALL MODELS)
CNTRL
Bekijk gratis de handleiding van Beverage-Air UCRD67AHC-4, stel vragen en lees de antwoorden op veelvoorkomende problemen, of gebruik onze assistent om sneller informatie in de handleiding te vinden of uitleg te krijgen over specifieke functies.
Productinformatie
Merk | Beverage-Air |
Model | UCRD67AHC-4 |
Categorie | Koelkast |
Taal | Nederlands |
Grootte | 4718 MB |