Beverage-Air MT06-1H6B handleiding
Handleiding
Je bekijkt pagina 23 van 69

User Manual for MT Beverage-Air
Rev. 04/25 Beverage-Air 23
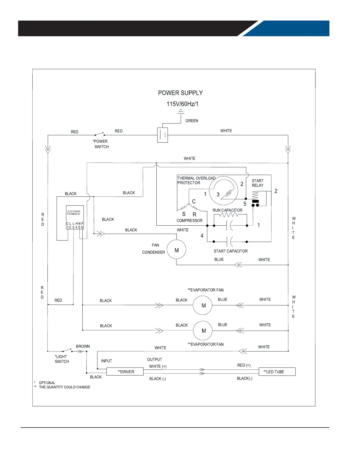
FOR THE SERVICE TECH - WIRING DIAGRAM FOR MT49 SLIDING DOOR
01234ÿ62378ÿ922
3ÿ2328
ÿ21ÿÿ87024ÿÿ !"ÿ
####$"#!!ÿÿ%2&'ÿ ($"($"ÿ
ÿ*+,+-./+ÿÿ01-
ÿ*+,+-./+ÿÿ01-
6234ÿ056667ÿ
"89(!:;9 ÿ
<<38=624=>24ÿ%=
653
653
<<63ÿ>53
6=?
9
:@>3
:@>3
23034ÿ
6=?
9
:@>3
:@>3
:@>3
:@>3ÿABC
43
%=ÿ
<6@D:>
0@>:
<<4@834
43ÿABC
6=?AC
@65>
25>65>
<62 34
0@>:
<ÿÿÿÿ26>@2=6
<<ÿÿÿ>:3ÿE5=>@>7ÿ256ÿ:=D3
43
43
6=?ÿAC
4
3
4
3
42
D433
:@>3
6
6
:
$
"
%
(
363>42@
>:34920>=>
6=?
6=?
:
@
>
3
:
@
>
3
0>=4>
436=7
296430024
4
0
$
>:349=6ÿ283462=
642>3>24
0>=4>ÿ=6=@>24
45ÿ=6=@>24
"
6=?
:@>3
6=?
6=?
<<38=624=>24ÿ%=
653
6=?
9
:@>3
6=?
Bekijk gratis de handleiding van Beverage-Air MT06-1H6B, stel vragen en lees de antwoorden op veelvoorkomende problemen, of gebruik onze assistent om sneller informatie in de handleiding te vinden of uitleg te krijgen over specifieke functies.
Productinformatie
Merk | Beverage-Air |
Model | MT06-1H6B |
Categorie | Koelkast |
Taal | Nederlands |
Grootte | 9822 MB |