Beverage-Air MT06-1H6B handleiding
Handleiding
Je bekijkt pagina 22 van 69

User Manual for MT Beverage-Air
Rev. 04/25Beverage-Air22
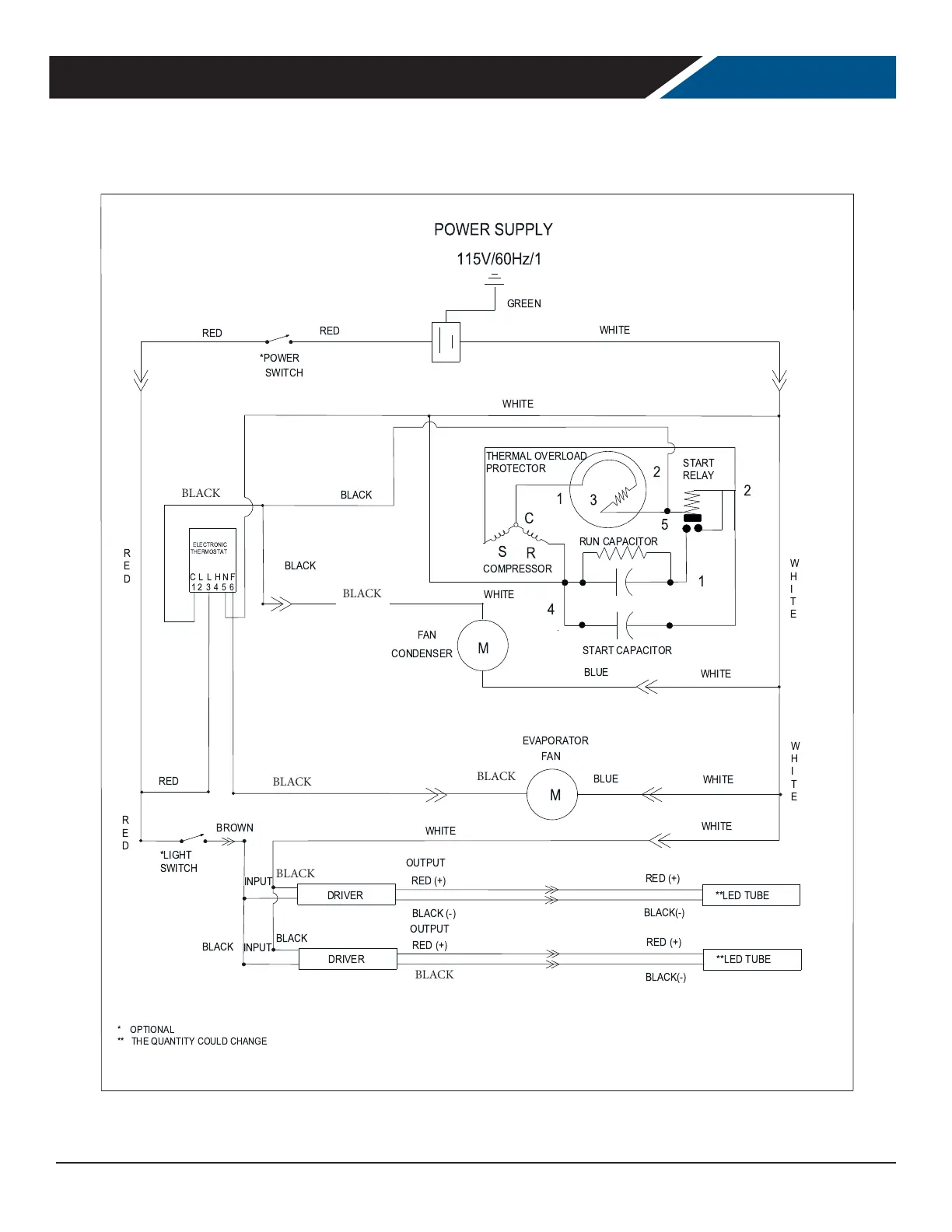
FOR THE SERVICE TECH - WIRING DIAGRAM FOR MT49 HINGED DOOR
01234ÿ62378ÿ922
3ÿ2328
6ÿ066ÿ
ÿ
6 !
"
"
##ÿ!"
" $%
9
&!
&!
$''0ÿ
" $%
9
&!
&!
&!
ÿ()*
+ 'ÿ
+ 'ÿ
#&,!
0&!$
&
ÿ()*
" $%(-*
&'6!
!6!
#6
0&!$
#ÿÿÿÿ6!&'
##ÿÿÿ!ÿ. '!&!ÿ$ÿ$ ',
" $%ÿ(-*
" '
,'
&!
$
/
0
1
'
+
$!'&$
!90! !
" $%
" $%
&
!
&
!
0! !
" $%
$9600
0
1
$
/
0
!9 ÿ
6!$!
0! !ÿ$ 6 $&!
/
'ÿ$ 6 $&!
" $%
&!
" $%
##ÿ!"
ÿ()*
&
ÿ()*
" $%(-*
&'6!
!6!
" $%ÿ(-*
" $%
" $%
0223ÿ$4215ÿ"6789ÿ875-0249ÿ'$ÿ/2ÿ
-:::-:1-3:ÿÿ+2;<ÿ-00-/1-10ÿ
ÿ>?@?ABC?ÿÿDEA
ÿ>?@?ABC?ÿÿDEA
BLACK
BLACK
BLACK
BLACK
BLACK
BLACK
Bekijk gratis de handleiding van Beverage-Air MT06-1H6B, stel vragen en lees de antwoorden op veelvoorkomende problemen, of gebruik onze assistent om sneller informatie in de handleiding te vinden of uitleg te krijgen over specifieke functies.
Productinformatie
Merk | Beverage-Air |
Model | MT06-1H6B |
Categorie | Koelkast |
Taal | Nederlands |
Grootte | 9822 MB |