Best HBN1366SS handleiding
Handleiding
Je bekijkt pagina 5 van 8

FR
INSTRUCTIONS D’INSTALLATION, D’UTILISATION ET DE DÉMARRAGE RAPIDE
HOTTES ENCASTRÉES SÉRIE HBN1
LIRE ET CONSERVER CES INSTRUCTIONS
Conçu pour usage domestique seulement
!
!
AVERTISSEMENT AVERTISSEMENT ATTENTION
AFIN DE RÉDUIRE LES RISQUES D’INCENDIE,
D’ÉLECTROCUTION OU DE BLESSURES
CORPORELLES, SUIVEZ LES DIRECTIVES SUIVANTES :
• N’utilisez cet appareil que de la façon prévue par le manufacturier. Si vous
avez des questions, contactez le manufacturier à l’adresse ou au numéro
de téléphone indiqués dans la garantie.
• Avant de réparer ou de nettoyer l’appareil, couper l’alimentation électrique
en verrouillant le panneau de distribution afin d’éviter sa remise en marche
accidentelle. Si le panneau de distribution ne peut être verrouillé, y fixer un
avertissement en évidence, telle qu’une étiquette de couleur vive.
• Les travaux d’installation et de raccordement électrique doivent être effectués
par une personne qualifiée, conformément aux codes et aux standards de
construction, incluant ceux concernant la protection contre les incendies.
• Une quantité d’air adéquate est requise afin d’assurer une bonne combustion
et l’évacuation des gaz par la cheminée dans le cas des équipements
alimentés au gaz afin de prévenir les retours de cheminée. Conformez-vous
aux instructions et aux standards de sécurité des manufacturiers d’équipement
de chauffage, tel qu’ils sont publiés par la National Fire Protection Association
(NFPA) et l’American Society for Heating, Refrigeration and Air Conditioning
Engineers (ASHRAE) ainsi que les responsables des codes locaux.
• Veillez à ne pas endommager le câblage électrique ou d’autres équipements
non apparents lors de la découpe ou du perçage du mur ou du plafond.
• Les ventilateurs avec conduits doivent toujours évacuer l’air à l’extérieur.
• Ne pas utiliser cet appareil avec une commande de vitesse à semi-conducteur
additionnelle.
• Afin de réduire les risques d’incendie, n’utilisez que des conduits de métal.
• Cet appareil doit être mis à la terre.
• Il est recommandé de porter des lunettes et des gants de sécurité lors de
l’installation, de l’entretien ou de la réparation de cet appareil.
• Lorsqu’une réglementation est en vigueur et qu’elle comporte des exigences
d’installation et/ou de certification plus restrictives, lesdites exigences
prévalent sur celles de ce document et l’installateur entend s’y conformer
à ses frais.
AFIN DE RÉDUIRE LES RISQUES DE FEU DE CUISINIÈRE :
A. Ne jamais laisser les appareils de cuisson sans surveillance lorsqu’ils sont réglés
à feu vif. Les débordements engendrent de la fumée et des déversements
graisseux pouvant s’enflammer. Chauffez l’huile lentement, à feu doux ou moyen.
B. Mettez toujours la hotte en marche lorsque vous cuisinez à feu vif ou que vous
cuisinez des mets flambés (par ex. : crêpes Suzette, cerises jubilé, steaks au
poivre flambés).
C. Nettoyez régulièrement la roue du ventilateur. Ne laissez pas la graisse s’accumuler
sur le ventilateur, le filtre ou les conduits d’évacuation.
D. Utilisez le bon format de casserole. Servez-vous toujours de casseroles et
d’ustensiles appropriés à la dimension de la surface chauffante.
AFIN DE RÉDUIRE TOUT RISQUE DE BLESSURES LORS
D’UN FEU DE CUISINIÈRE, SUIVEZ CES DIRECTIVES* :
1. ÉTOUFFEZ LES FLAMMES avec un couvercle hermétique, une tôle à
biscuits ou un plateau métallique et ensuite, éteignez le brûleur. PRENEZ
SOIN D’ÉVITER les brûlures. SI LES FLAMMES NE S’ÉTEIGNENT PAS
IMMÉDIATEMENT, ÉVACUEZ LES LIEUX ET APPELEZ LES POMPIERS.
2. NE PRENEZ JAMAIS UNE CASSEROLE EN FLAMMES DANS VOS
MAINS. Vous pourriez vous brûler.
3. N’UTILISEZ PAS D’EAU, incluant un linge à vaisselle ou une serviette
mouillée, cela pourrait occasionner une violente explosion de vapeur.
4. N’utilisez un extincteur QUE DANS LE CAS OÙ :
A. Vous possédez un extincteur de classe ABC et vous en connaissez le
fonctionnement.
B. Le feu est petit et limité à l’endroit où il a débuté.
C. Les pompiers ont été avisés.
D. Vous pouvez combattre l’incendie en ayant accès à une sortie de secours.
* Tirées du Kitchen Fire Safety Tips publié par la NFPA.
• Pour une utilisation résidentielle et à l’intérieur seulement.
• Afin de réduire les risques d’incendie et évacuer l’air adéquatement,
assurez-vous que les conduits évacuent l’air à l’extérieur. Ne pas
évacuer l’air dans des espaces restreints comme l’intérieur des
murs ou plafond ou dans le grenier, faux plafond ou garage.
• Soyez prudents lors de l’utilisation d’agents nettoyants ou de
détergents.
• Évitez d’utiliser sous la hotte des produits alimentaires pouvant
s’enflammer.
• Pour usage domestique seulement. Ne pas utiliser pour évacuer
des vapeurs ou des matières dangereuses ou explosives.
• Afin d’éviter tout dommage au moteur et de débalancer ou de
rendre bruyante la roue du moteur, garder votre appareil à l’abri
des poussières de gypse et de construction/rénovation, etc.
• Le moteur de votre hotte possède une protection thermique qui
éteindra automatiquement le moteur s’il devient surchauffé. Le
moteur redémarrera automatiquement une fois refroidi. Si le
moteur continue à arrêter et à redémarrer, faites-le vérifier.
• Pour une meilleure évacuation des odeurs de cuisson, le bas de
votre hotte devrait être situé à UN MINIMUM de 24 po et à un
maximum recommandé de 30 po au-dessus de la surface de
cuisson.
• À utiliser seulement avec une trousse de raccordement de cordon
de hotte vérifiée et approuvée pour emploi avec ce modèle de
hotte.
• Veuillez consulter l’autocollant apposé à l’intérieur de la hotte pour
plus d’information ou autres exigences.
!
!
!
Pour connaître les lignes directrices de l’ADA (Americans with Disabilities Act) concernant l’installation, veuillez entrer votre numéro de modèle dans notre site Internet.
Aux États-Unis Au Canada
Pour obtenir l’énoncé de garantie, la liste de pièces de remplacement, ainsi que les instructions
détaillées, inscrire votre numéro de modèle sur notre site Internet ou balayer le code QR.
bestrangehoods.com bestrangehoods.ca
Pour obtenir une copie papier des instructions détaillées, appelez-nous.
1 800 558-1711 1 800 567-3855
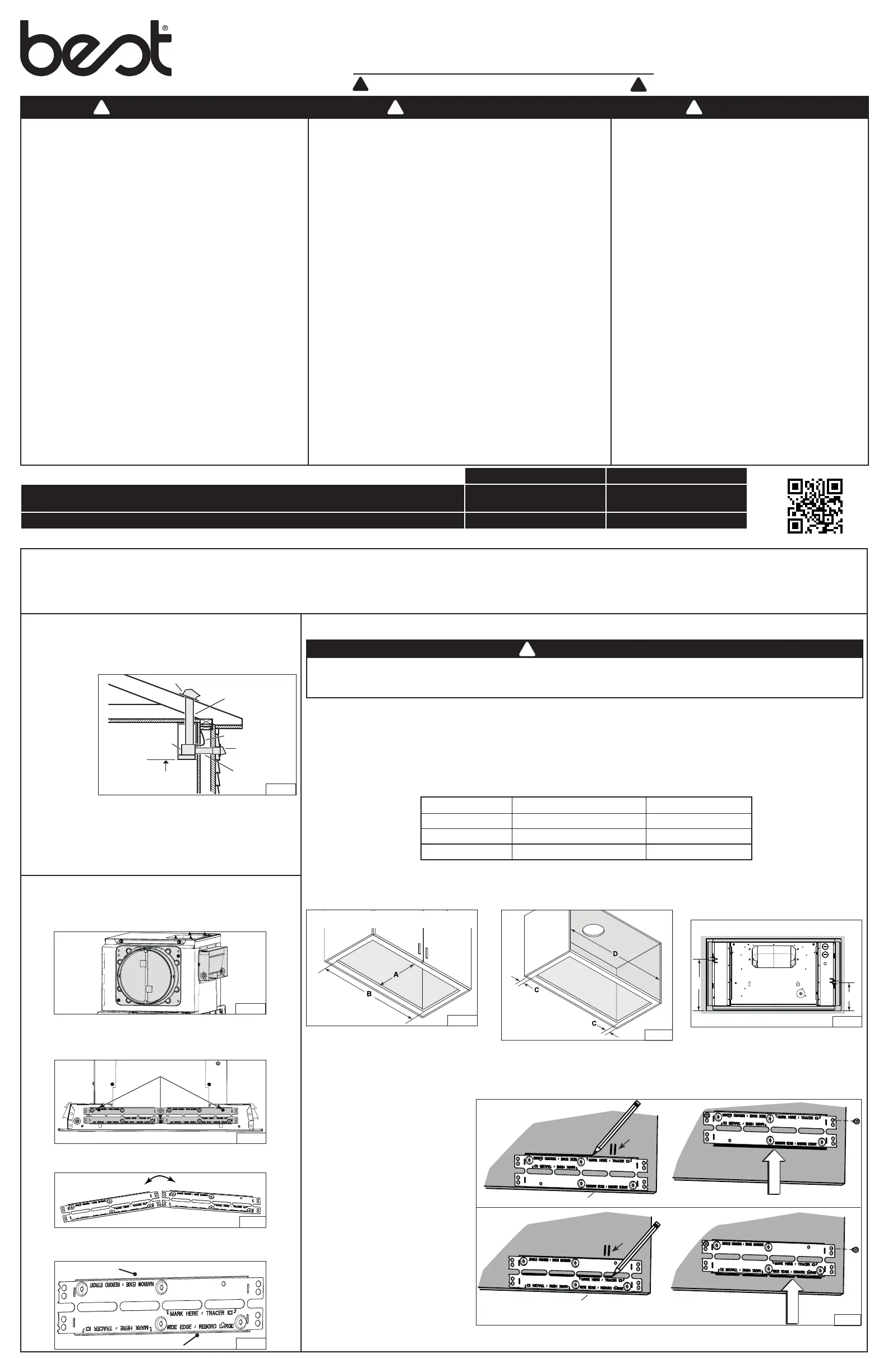
1.
INSTALLATION DES CONDUITS (INST.
AVEC CONDUITS SEULEMENT
)
NOTE : Afin de réduire les risques d’incendie, n’utilisez que des conduits de
métal.
1. Établir où le
conduit passera
entre la hotte et
l’extérieur (FIG. 1).
2. Un conduit
droit et court
permettra à
votre hotte de
fonctionner plus
efficacement.
3. Un conduit long
avec des coudes
et des transitions
réduira la performance de votre hotte. En utiliser le moins possible. Pour
une grande distance, utiliser un conduit d’évacuation d’air au diamètre
plus grand.
4. Installer un capuchon de toit ou de mur (vendus séparément). Relier
le conduit en métal au capuchon, puis acheminer le conduit jusqu’à
l’emplacement de la hotte. Sceller hermétiquement les raccords à l’aide
de ruban adhésif de métal de 2 po de largeur.
HH0319F
HOTTE ENCASTRÉE
CONDUIT ROND
DE
6 PO, DE 8 PO
OU
DE 3¼ PO X 10 PO
CONDUIT DE
3¼ PO X 10 PO
DE 24 PO MIN. À 30 PO MAX.
AU-DESSUS DE
LA SURFACE DE CUISSON
CAPUCHON
DE
MUR
C
APUCHON
DE
TOIT
CÂBLAGE DOMESTIQUE
FIG. 1
Détacher et mettre de côté l’adaptateur/volet de 3¼ po x 10 po et
l’adaptateur/volet de 6 po rond (en gris dans la FIG. 2) de l’arrière et d’un
côté de la hotte encastrée en retirant leurs 2 vis de retenue. Se défaire des vis.
Détacher les supports d’armoire (en gris dans la FIG. 3) de l’arrière de la
hotte encastrée en retirant ses 3 vis de retenue. Se défaire des vis.
Plier les supports vers le haut et le bas jusqu’à se qu’ils se détachent l’un de
l’autre (FIG. 4). Garder les supports pour un usage éventuel.
NOTE : Les deux supports d’armoire sont munis d’un rebord large et d’un
rebord étroit (FIG. 5), pour couvrir toutes les configurations
d’installation, selon les largeurs d’armoire.
2. RETRAIT DES ADAPTATEURS/VOLETS
3.
RETRAIT DES SUPPORTS D’ARMOIRE
HO0413
FIG. 4
FIG. 2
HD1459
HO0408
Rebord large
Rebord étroit
FIG. 5
4. PRÉPARATION DE L’ARMOIRE
NOTES : A. La hotte doit être installée dans l’armoire.
B. La hotte doit être installée centrée latéralement, au-dessus de la surface de cuisson.
C. Pour la position d’arrière vers l’avant, l’appareil doit être monté selon les codes de construction locaux.
1. Découper un trou dans la base de l’armoire aux dimensions indiquées (FIG. 6).
2. Mesurer ce qu’il reste de matériau des côtés de la base de l’armoire (C) (FIG. 7), s’il subsiste 1/4 po ou plus, nul besoin d’utiliser les supports d’armoire
fournis. Passer à l’étape 7 en page suivante.
3. S’il reste moins de 1/4 po de matériau (C), retirer soigneusement ces bandes. Mesurer la largeur intérieure de l’armoire (D) (FIG. 7). Consulter le tableau
ci-dessous pour savoir quelle configuration de rebords de support doit être utilisée.
AVERTISSEMENT
L’armoire doit être fixée aux montants ou autre structure derrière la cloison pour supporter le poids de cet appareil. Ne pas
suivre cette directive peut entraîner des blessures corporelles ou des dommages à la surface de cuisson ou au comptoir
de cuisine
.
!
HD1382
FIG. 7
A = 10¼ po (tous les appareils)
B = 22 ¹/16 po (HBN1246SS)
B = 28 ¹/16 po (HBN1306SS)
B = 34 ¹/16 po (HBN1366SS)
HD1381
DÉCOUPER UN TROU
DANS LA BASE DE L’ARMOIRE
FIG. 6
4. Repérer les crochets Ease of Install sur l’appareil (distance donnée à partir du rebord avant, FIG. 8). Insérer temporairement l’appareil dans l’armoire et tout
en retenant l’appareil, marquer sur les deux côtés de l’armoire l’emplacement des crochets Ease of Install (illustré en E dans la FIG. 9). Retirer l’appareil.
HD1387F
8¼ po
4½ po
FIG. 8
AVANT
VUE DU DESSUS DE L’APPAREIL
5. Installer les supports d’armoire comme suit (FIG. 9) :
Placer le support au même niveau
que le bas du panneau droit de l’armoire,
en centrant la marque de l’emplacement
des crochets (E) entre les trous en
relief inférieurs. Pour la configuration du
rebord étroit, tracer une ligne sur le
dessus du support. Pour la configuration
du rebord large, tracer une ligne à la
base des fentes centrales.
Monter le support au même niveau que
la ligne tracée.Fixer le support au
panneau de côté de l’armoire à l’aide
de 2 vis à bois n° 8 x 5/8 po (incluses
dans le sac de pièces) dans les trous
supérieurs.
NOTE : Ne pas utiliser les trous en relief pour
fixer le support.
Répéter les étapes à pour le
panneau gauche.
HO0414
HO0414
FIG. 9
HO0414
Configuration
du rebord large
MÊME NIVEAU
E
FLUSH
HO0414
Configuration
du rebord étroit
E
MÊME NIVEAU
1105015F
OUTILS ET ACCESSOIRES RECOMMANDÉS
• Ruban à mesurer
• Tournevis Phillips n° 2
• Tourne-écrou ou douille 3/8 po
• Scie (pour la découpe des trous dans l’armoire)
• Tournevis à lame plate (pour dégager les ouvertures
préamorcées)
• Cisailles à tôle
• Pinces
• Ruban adhésif de métal
• Ciseaux (pour couper le ruban adhésif de métal)
• Crayon
• Pince à dénuder
• Serre-fils de 7/8 po de diamètre (pour fixer le câble
d’alimentation électrique domestique à la hotte)
appareil rebord étroit rebord large
HBN1246SS D de 22-1/16 po à < 22-1/2 po D de 22-1/2 po à 23 po
HBN1306SS D de 28-1/16 po à < 28-1/2 po D de 28-1/2 po à 29 po
HBN1366SS D de 34-1/16 po à < 34-1/2 po D de 34-1/2 po à 35 po
HD1410
VIS
FIG. 3
• Ensembles de bandes protectrices HADTBN24
(pour 24 po), HADTBN30 (pour 30 po) ou
HADTBN36 (pour 36 po) (optionnel)
• Deux capuchons de connexion appropriés
Bekijk gratis de handleiding van Best HBN1366SS, stel vragen en lees de antwoorden op veelvoorkomende problemen, of gebruik onze assistent om sneller informatie in de handleiding te vinden of uitleg te krijgen over specifieke functies.
Productinformatie
| Merk | Best |
| Model | HBN1366SS |
| Categorie | Niet gecategoriseerd |
| Taal | Nederlands |
| Grootte | 3452 MB |







