Alto-Shaam 700-RW handleiding
Handleiding
Je bekijkt pagina 8 van 19

MN-35890 (Rev. 3) 04/16 • Round Wells • 6
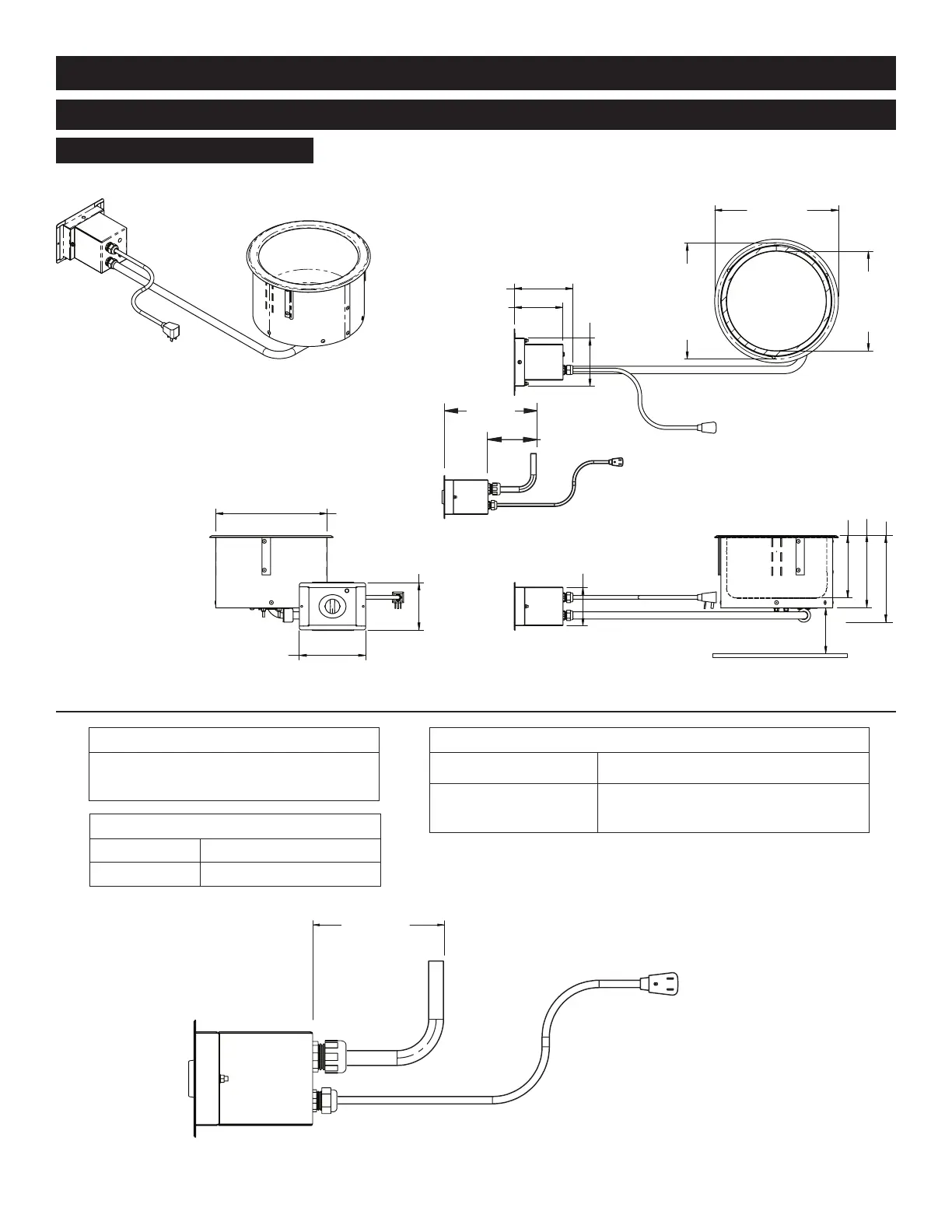
11-9/16"
(294mm)
6-7/8"
(175mm)
4-7/8" (125mm)
4" (102mm)
6-7/16" (164mm)
7-9/16" (191mm)
9" (229mm)
6-1/8" (155mm)
5-1/16" (129mm)
5" (127mm)
12-7/8"
(327mm)
10-3/8" (263mm)
Well
12-1/8" (308mm)
to standoffs
Cord Length & Flexible Control Tether
6' (1829mm)
11-1/16"
(281mm)
6" (152mm)
6" (152mm)
Optional stainless steel heat shield
(not factory supplied)
1100-RW
INSTALLATION
DIMENSIONS • CAPACITY
PRODUCT CAPACITY
Maximum Volume: 11 qt. (10.5 L)
WEIGHT
Net 13 lbs (6 kg)
Ship 17 lbs (8 kg)
ROUGH CUT OPENINGS
Counter Top Cutout 12-1/4" (311mm) Diameter
Control Box Cutout 5-5/16" x 4-1/2" x 11-1/16"
(114mm x 133mm x 281mm)
11-1/16"
(281mm)
6" (152mm)
6" (152mm)
Minimum Clearance
Bekijk gratis de handleiding van Alto-Shaam 700-RW, stel vragen en lees de antwoorden op veelvoorkomende problemen, of gebruik onze assistent om sneller informatie in de handleiding te vinden of uitleg te krijgen over specifieke functies.
Productinformatie
| Merk | Alto-Shaam |
| Model | 700-RW |
| Categorie | Niet gecategoriseerd |
| Taal | Nederlands |
| Grootte | 3177 MB |







