Alto-Shaam 300-HWI/D443 handleiding
Handleiding
Je bekijkt pagina 13 van 45

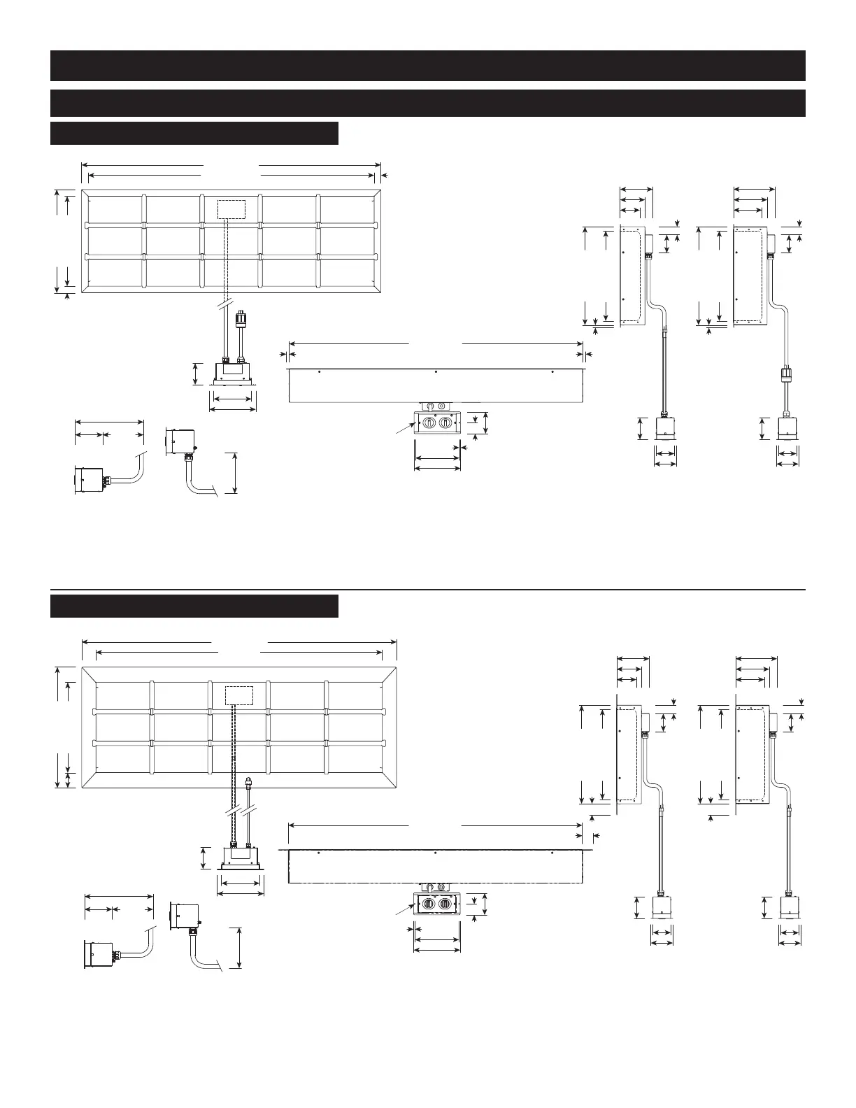
MN-37234 (Rev. 0) 03/15 • Hot Food Drop-In Well • 11
65-3/4" (1670mm)
11/16" (16mm)
FLANGE
11/16" (16mm)
FLANGE
10-7/16" (264mm)
9-15/16" (252mm)
1/4" (6mm)
Ø 1/4" (5mm)
500-HW/D6
2-1/2" (62mm)
4-15/16" (125mm)
9-5/16" (235mm)
7-9/16" (191mm)
6-3/8" (162mm)
WELL
22-1/16" (559mm)
20-3/16" (512mm)
WELL
9/16" (14mm) FLANGE
4-1/8" (104mm)
1-7/8" (46mm)
4-15/16" (125mm)
4" (102mm)
4-13/16"
(122mm)
500-HW/D6
22-1/16" (559mm)
20-3/16" (512mm)
WELL
9/16" (14mm) FLANGE
4-1/8" (104mm)
1-7/8" (46mm)
4-15/16" (125mm)
4" (102mm)
4-13/16"
(122mm)
500-HW/D4
7-5/16" (185mm)
5-9/16" (140mm)
4-3/8" (111mm)
WELL
20-3/16" (512mm)
WELL
23-1/8" (586mm)
1-1/2"
(37mm)
67-1/16" (1702mm)
63-15/16" (1625mm)
WELL
1-9/16" (39mm)
10-7/16" (264mm)
8-1/2" (216mm)
4-13/16"
(122mm)
10-13/16" (274mm)
6"
(152mm)
4-13/16"
(122mm)
CONDUIT WHEN
EXITING BACK
6" (152mm)
CONDUIT WHEN
EXITING BOTTOM
INSTALLATION
DIMENSIONS
7-5/16" (185mm)
5-9/16" (140mm)
4-3/8" (111mm)
WELL
22-1/16" (559mm)
20-3/16" (512mm)
WELL
2-1/2" (63mm) FLANGE
4-1/8" (104mm)
1-7/8" (46mm)
4-15/16" (125mm)
4" (102mm)
500-HWLF/D4
4-13/16"
(122mm)
9-5/16" (235mm)
7-9/16" (191mm)
6-3/8" (162mm)
WELL
22-1/16" (559mm)
20-3/16" (512mm)
WELL
2-1/2" (63mm) FLANGE
4-1/8" (104mm)
1-7/8" (46mm)
4-15/16" (125mm)
4" (102mm)
500-HWLF/D6
4-13/16"
(122mm)
65-3/4" (1670mm)
2-5/16" (58mm)
FLANGE
500-HWLF/D6
10-7/16" (264mm)
9-15/16" (252mm)
1/4" (6mm)
Ø 1/4" (5mm)
2-1/2" (62mm)
4-15/16" (125mm)
70-7/16" (1787mm)
64" (1625mm)
WELL
20-3/16" (512mm)
WELL
27-1/16" (686mm)
3-7/16"
(87mm)
10-7/16" (264mm)
8-1/2" (216mm)
4-13/16"
(122mm)
10-13/16" (274mm)
6"
(152mm)
4-13/16"
(122mm)
CONDUIT WHEN
EXITING BACK
6" (152mm)
CONDUIT WHEN
EXITING BOTTOM
500-HW/D4 & 500-HW/D6
500-HWLF/D4 & 500-HWLF/D6
Bekijk gratis de handleiding van Alto-Shaam 300-HWI/D443, stel vragen en lees de antwoorden op veelvoorkomende problemen, of gebruik onze assistent om sneller informatie in de handleiding te vinden of uitleg te krijgen over specifieke functies.
Productinformatie
| Merk | Alto-Shaam |
| Model | 300-HWI/D443 |
| Categorie | Niet gecategoriseerd |
| Taal | Nederlands |
| Grootte | 7955 MB |







